Büro und Praxis gebäude
immobilien.de Nr.: 9372891
Objektnummer: 413406
Preise & Kosten
| Miete für das Objekt | Auf Anfrage |
| Nebenkosten | keine Angabe |
| Maklerprovision | keine Provision, courtagefrei |
Größe & Zustand
| Gesamtfläche | 433 m² |
| Bürofläche | 433 m² |
| Baujahr | 1934 |
| Verfügbar ab | nach Absprache |
| Zustand | Teil Vollrenovierungsbed |
Objektbeschreibung
Bei der angebotenen Immobilie handelt es sich um ein ca. 1.500 m² großes Grundstück, bebaut mit einer um 1933/34 in Massivbauweise errichteten, unterkellerten Villa mit 2,5 Geschossen. In den Jahren 2008 bis 2011 wurde das Gebäude saniert, zur Büronutzung umgestaltet und mit 25 Arbeitsplätzen vorgesehen.
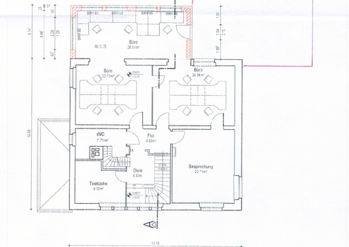
Zur Verfügung stehen insgesamt rund 433 m² Nutzfläche verteilt auf Eingangs- und Empfangsbereich, 11 Räume, eine Terrasse, eine Teeküche, Flur mit Treppenaufgang und Diele, ein Bad, separate WC's, eine Kammer sowie weitere Räumlichkeiten im Kellergeschoss.
Dieses Objekt bedarf einer Modernisierung, die Sie ganz nach Ihren Wünschen gestalten können.
Zur Verfügung stehen insgesamt rund 433 m² Nutzfläche verteilt auf Eingangs- und Empfangsbereich, 11 Räume, eine Terrasse, eine Teeküche, Flur mit Treppenaufgang und Diele, ein Bad, separate WC's, eine Kammer sowie weitere Räumlichkeiten im Kellergeschoss.
Dieses Objekt bedarf einer Modernisierung, die Sie ganz nach Ihren Wünschen gestalten können.
Ausstattung
| Inserat befindet sich im Stockwerk | 2 |
| Garage/Stellplätze | 1 |
Sonstige Informationen
Makleranfragen nicht erwünscht. Nach § 7 UWG sind unaufgeforderte Kontaktaufnahmen durch Makler ohne ausdrückliche Einwilligung des Empfängers verboten!
ohne-makler (OM) ist weder Anbieter noch Vermittler der Immobilie. OM betreibt eine Plattform für Immobilieneigentümer, die unter anderem die gleichzeitige Veröffentlichung einzelner Inserate auf mehreren Immobilienportalen ermöglicht. Die Inhalte dieser Inserate werden ausschließlich von Dritten verantwortet. Für die Richtigkeit, Vollständigkeit oder Rechtmäßigkeit der Angaben übernimmt OM keine Haftung. Hinweise auf mögliche Rechtsverstöße können jederzeit gemeldet werden und werden nach Prüfung umgehend bearbeitet.
Lage des Objektes
Gute Wohnlage ohne Lärmbelastung: Das hier betroffene Grundstück befindet sich in ca. 470 m Entfernung vom Ludolfinger und in ca. 630 m Entfernung vom Zeltinger Platz. Die S-Bahnstation „Frohnau“ (S1) befindet sich in ca. 500 m Entfernung.
