Solides Anlageobjekt
349.000 €
Kaufpreis
immobilien.de Nr.: 9291733
Objektnummer: 25-8987
Kaufpreis
| Kaufpreis | 349.000 € |
| Maklerprovision | 3,57 % |
Wohnfläche, Grundstück & Bausubstanz
| Gesamtfläche | 328 m² |
| Grundstücksfläche | 426 m² |
| Baujahr | 2003 |
| Verfügbar ab | nach Absprache |
Energie
| Energieausweistyp | Verbrauch |
| Gültig bis | 2034-09-17 |
| Energieverbrauchkennwert | 74,70 kWh/(m²*a) |
| Energieträger/Befeuerung | Öl |
Beschreibung der Immobilie
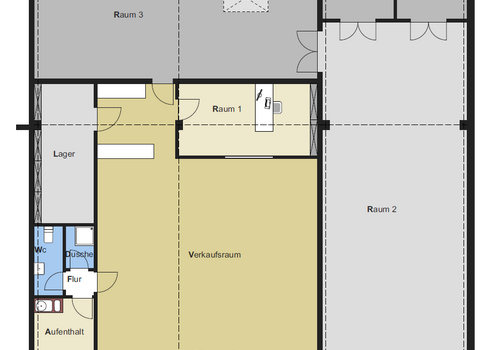
Zum Verkauf steht ein langfristig vermietetes Ladengeschäft (ca. 328 m² Gewerbefläche) in stark frequentierter Lage an der Fackenburger Allee in Lübeck. Die Immobilie bietet eine attraktive Kapitalanlage mit stabiler Rendite und einer soliden Mieterstruktur. Aktuell beträgt die Nettomiete € 18.900 p.a.
Die gepflegte Gewerbeeinheit verfügt über eine großzügige Verkaufsfläche mit guter Sichtbarkeit zur Straße. Separate Lagerräume sowie ein WC Anlage sind vorhanden und funktional in die Einheit integriert. Zwei zugeordnete Parkplätze direkt vor dem Geschäft bieten zusätzliche Annehmlichkeiten für Kunden.
Die Fackenburger Allee zählt zu den Hauptverkehrsstraßen Lübecks und verbindet das Zentrum mit der Autobahn A1 – entsprechend hoch ist die tägliche Passanten- und Fahrzeugfrequenz. Die Umgebung ist geprägt von gemischter Wohn- und Gewerbenutzung, was dem Standort eine vielseitige Kundenstruktur sichert.
Für weitere Informationen oder eine Besichtigung stehen wir Ihnen, nach Vorlage des Expose's gern zur Verfügung.
Energieausweis: Verbrauchsausweis 74,7kWh(m²a) Öl, Bj. 2003, Klasse B
Ihre Ansprechpartner für dieses Objekt sind:
Frank Hill/Katja-A. Kewitz
04531/508-75791 oder 803-75792
Mobil 0151 12212206
Die gepflegte Gewerbeeinheit verfügt über eine großzügige Verkaufsfläche mit guter Sichtbarkeit zur Straße. Separate Lagerräume sowie ein WC Anlage sind vorhanden und funktional in die Einheit integriert. Zwei zugeordnete Parkplätze direkt vor dem Geschäft bieten zusätzliche Annehmlichkeiten für Kunden.
Die Fackenburger Allee zählt zu den Hauptverkehrsstraßen Lübecks und verbindet das Zentrum mit der Autobahn A1 – entsprechend hoch ist die tägliche Passanten- und Fahrzeugfrequenz. Die Umgebung ist geprägt von gemischter Wohn- und Gewerbenutzung, was dem Standort eine vielseitige Kundenstruktur sichert.
Für weitere Informationen oder eine Besichtigung stehen wir Ihnen, nach Vorlage des Expose's gern zur Verfügung.
Energieausweis: Verbrauchsausweis 74,7kWh(m²a) Öl, Bj. 2003, Klasse B
Ihre Ansprechpartner für dieses Objekt sind:
Frank Hill/Katja-A. Kewitz
04531/508-75791 oder 803-75792
Mobil 0151 12212206
Karte wird geladen...
Objektstandort
23554 Lübeck
- Schleswig-Holstein
Kontaktanfrage senden
Über den Anbieter
SIG Holstein mbH & Co. KG
Hagenstraße 19
23843 Bad Oldesloe
Kontakt
| Telefon | 04531 508 75735 |
| Mobil | 0151 12212207 |
| Fax | 04531 508 77710 |
| Website | www.sig-holstein.de |
Ansprechpartner/in
Herr Joachim Holz
Weitere Angebote des Anbieters
34
Mietwohnung mit Balkon in Schleswig
Wohnung
24837 Schleswig
In unmittelbarer Lage zur Schlei, mit einem fantastischen Blick über die Schlei, deren Ufern und der Stadt Schleswig stehen Ihnen mit dem Quartier „Schleiblick” sieben exklusive Stadtvillen mit komfortablen ...
1.341 €
Kaltmiete (netto)
78,88 m²
Wohnfläche
2
Zimmer
14
3-Zimmer Mietwohnung im Hochparterre
Wohnung
23769 Fehmarn
3 Zimmer-Hochparterre-Wohnung in beliebter Wohnlage von Burg auf Fehmarn, Sackgassenlage, Westbalkon, E-Rollläden, Markise, Kunststofffenster mit Iso-Verglasung, Teppich, Design-Belag/Laminat, Fliesen, Duschbad/WC, ...
750 €
Kaltmiete (netto)
75,25 m²
Wohnfläche
3
Zimmer
16
Sehr gepflegtes Haus auf Traumgrundstück
Haus
21465 Reinbek
Freuen Sie sich auf einen Besichtigungstermin in diesem liebevoll gepflegten Einfamilienhaus. Die Immobilie verfügt über eine großzügige Wohnfläche von ca. 129 m² zuzüglich Vollkeller mit wohnähnlich ausgebautem ...
539.000 €
Kaufpreis
129 m²
Wohnfläche
4
Zimmer
22
Einfamilienhaus auf großem Grundstück
Haus
23738 Kabelhorst
Das ältere Wohnhaus mit 2 Garagen und weiteren Nebengebäuden liegt in dörflicher Sackgassenlage Nähe Lensahn und befindet sich seit ca. 1893 im Familienbesitz. Das Baujahr ist nicht bekannt, wird aber wohl vor 1893 ...
259.500 €
Kaufpreis
151 m²
Wohnfläche
6
Zimmer
11
Große Eigentumswohnung m. Balkon +Garten
Wohnung
23689 Pansdorf
Diese aparte 4-Zimmer-Eigentumswohnung (ca. 130 m²) befindet sich in einer ruhigen und idyllischen Lage in Pansdorf. Ideal für Familien oder Paare, die viel Platz und Komfort suchen. Die großzügige Wohnung erstreckt ...
350.000 €
Kaufpreis
130 m²
Wohnfläche
4
Zimmer