VB3911a Erstbezug - Exklusive Bürofläche am Altstadtrand / Kelheim - Zentrum
5.246 €
Kaltmiete
5.246 €
Kaltmiete (netto)
380 m²
Nutzfläche
4
Zimmer
immobilien.de Nr.: 9076095
Objektnummer: VB 3911a
Preise & Kosten
| Kaltmiete | 5.246 € |
| Kaltmiete (netto) | 5.246 € |
| Nebenkosten | 1520 € |
| Maklerprovision | Ortsübliche Provision vom Käufer/Mieter nur im Erfolgsfalle |
| Kaution | 15.738 € |
| Stellplatz Freiplatz Miete} | 40 € |
Größe & Zustand
| Nutzfläche | 380 m² |
| Bürofläche | 380 m² |
| Zimmer | 4 |
| Letzte Modernisierung | 2025 |
| Verfügbar ab | sofort |
| Zustand | Erstbezug |
Energie
| Heizungsart | Zentralheizung |
| Energieträger/Befeuerung | Elektro |
Objektbeschreibung
Die Gewerbeflächen befinden sich in reizvoller Lage am Altstadtrand von Kelheim. Es besteht eine gute Verkehrsanbindung an die Bundesstraße B 16. Eine Bushaltestelle befindet sich direkt vor dem Gebäude.
Das Wohn- und Geschäftshaus besteht aus einem komplett sanierten Bestandsgebäude und einem nebenliegenden Neubau. Die Beheizung erfolgt über eine Gas-Hybrid-Wärmepumpe. Ein Glasfaseranschluss befindet sich im Haus.
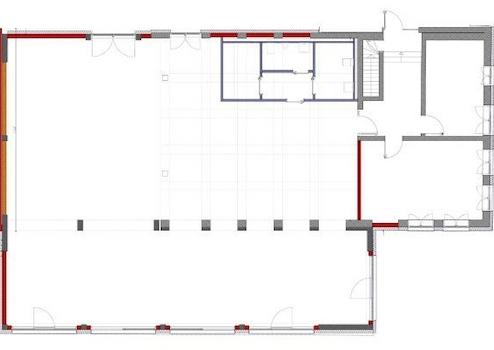
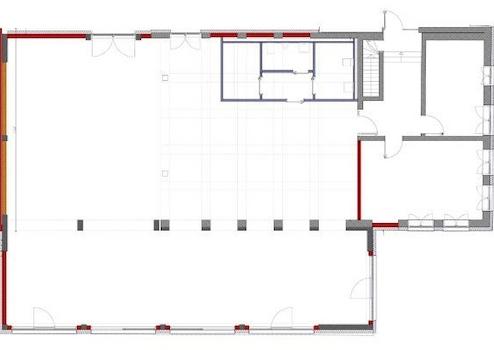
Im Erdgeschoss des sanierten Altbaus befindet sich eine Ausstellungsfläche. Sie ist sowohl über das Treppenhaus als auch über mehrere Außentüren begehbar. Von der Diele aus sind der Ausstellungsraum, zwei helle Büroräume sowie der Keller zugänglich. Die Belieferung erfolgt über zwei doppelflügelige Türen. Durch die große Fensterfront mit zwei Ausgängen nach Süden zur vorgelagerten Terrasse ist die Fläche sehr hell und freundlich. Die EDV- und Stromverkabelung verläuft in Bodentanks, in der abgehängten Decke sind LED-Leuchten integriert. Von der Ausstellungsfläche wurde in Trockenbau eine Teeküche mit Küchenanschlüssen und WCs abgetrennt. Der über eine Steintreppe erreichbare Keller hat eine Höhe von ca. 2 m und unterteilt sich in einem Abstellbereich und drei Kellerräume mit Fenstern.
Das Wohn- und Geschäftshaus besteht aus einem komplett sanierten Bestandsgebäude und einem nebenliegenden Neubau. Die Beheizung erfolgt über eine Gas-Hybrid-Wärmepumpe. Ein Glasfaseranschluss befindet sich im Haus.
Im Erdgeschoss des sanierten Altbaus befindet sich eine Ausstellungsfläche. Sie ist sowohl über das Treppenhaus als auch über mehrere Außentüren begehbar. Von der Diele aus sind der Ausstellungsraum, zwei helle Büroräume sowie der Keller zugänglich. Die Belieferung erfolgt über zwei doppelflügelige Türen. Durch die große Fensterfront mit zwei Ausgängen nach Süden zur vorgelagerten Terrasse ist die Fläche sehr hell und freundlich. Die EDV- und Stromverkabelung verläuft in Bodentanks, in der abgehängten Decke sind LED-Leuchten integriert. Von der Ausstellungsfläche wurde in Trockenbau eine Teeküche mit Küchenanschlüssen und WCs abgetrennt. Der über eine Steintreppe erreichbare Keller hat eine Höhe von ca. 2 m und unterteilt sich in einem Abstellbereich und drei Kellerräume mit Fenstern.
Ausstattung
| Boden | Teppich |
| Barrierefrei | |
| Keller |
Lage: Kelheim - Zentrum
Mietpreis: EUR 5.246,-
Nebenkosten: EUR 1.520,-
Fläche: ca. 380 m²
Zimmeranzahl: 4
letzte Modernisierung: 2025
Kaution: EUR 15.738,-
Geschoss(e): EG
Bezug: sofort
teilbar ab: nein
Stellplatzanzahl: möglich
Stellplatzpreis: EUR 40,-
Fußweg zum RVV: 2 min.
Fahrtzeit Bahnhof: 5 min.
Fahrtzeit Autobahn: 10 min.
Fahrtzeit Flughafen: 60 min.
Objekttyp: Büro
Zustand: Erstbezug nach Sanierung
Stellplatz: Außenstellplatz
Ausstattung: gehoben
Bodenbelag: Teppich
Heizung: Solar-Heizung
Energieträger: Strom
Starkstrom: ja
barrierefrei: ja
DV-Verkabelung: ja
Keller: ja
Mietpreis: EUR 5.246,-
Nebenkosten: EUR 1.520,-
Fläche: ca. 380 m²
Zimmeranzahl: 4
letzte Modernisierung: 2025
Kaution: EUR 15.738,-
Geschoss(e): EG
Bezug: sofort
teilbar ab: nein
Stellplatzanzahl: möglich
Stellplatzpreis: EUR 40,-
Fußweg zum RVV: 2 min.
Fahrtzeit Bahnhof: 5 min.
Fahrtzeit Autobahn: 10 min.
Fahrtzeit Flughafen: 60 min.
Objekttyp: Büro
Zustand: Erstbezug nach Sanierung
Stellplatz: Außenstellplatz
Ausstattung: gehoben
Bodenbelag: Teppich
Heizung: Solar-Heizung
Energieträger: Strom
Starkstrom: ja
barrierefrei: ja
DV-Verkabelung: ja
Keller: ja
Sonstige Informationen
Wir befinden uns im Betriebsurlaub. Ab dem 07.01.2026 sind wir wieder wie gewohnt für Sie erreichbar. Um eine schnelle Bearbeitung zu gewähren benötigen wir Ihre Telefonnummer sowie Ihre komplette Adresse.
Anbieter
TRUMMER Immobilien GmbH & Co. KG
Nußbergerstr. 6
93059 Regensburg
Kontakt
| Telefon | 0941/447633 |
| Fax | 0941/41793 |
| Website | www.trummer.de |
