BÜRO: ca. 257 m² - Breite Gasse
2.600 €
Kaltmiete
2.600 €
Kaltmiete (netto)
10
Zimmer
immobilien.de Nr.: 9062894
Objektnummer: 7392
Preise & Kosten
| Kaltmiete | 2.600 € |
| Kaltmiete (netto) | 2.600 € |
| Nebenkosten | keine Angabe |
| Maklerprovision | Wir berechnen dem Mieter eine Vermittlungsprovision von 3,57 Nettomonatsmieten der vertraglich vereinbarten Nettomieten inkl. MwSt. |
Größe & Zustand
| Gesamtfläche | 257 m² |
| Bürofläche | 257 m² |
| Bürofläche | 257 m² |
| Fläche teilbar ab | 257 m² |
| Zimmer | 10 |
| Baujahr | 1972 |
| Verfügbar ab | nach Absprache |
| Zustand | Projektiert |
Objektbeschreibung
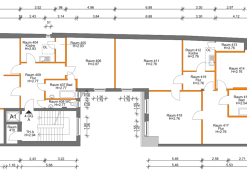
Neu renovierte Büroflächen (Erstbezug) in der Fussgängerzone nähe U-Bahn Weisser Turm.
Die Raumaufteilung kann in Absprache mit dem Mieter individuell angepasst werden.
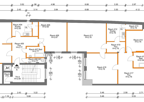
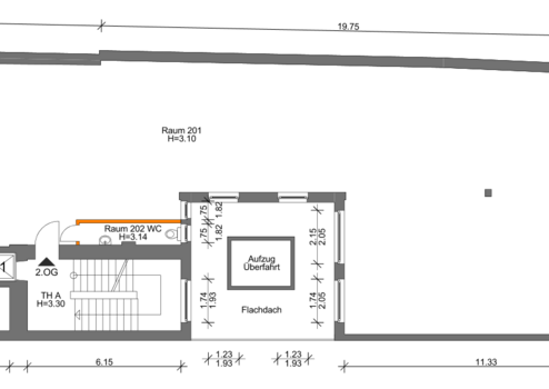
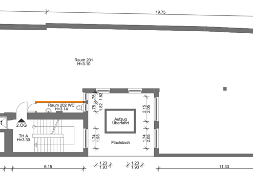
Das Grundriss-Beispiel im Anhang als Bild ist NUR EIN BEISPIEL einer möglichen Aufteilung.
Ebenso kann
- die Anzahl der Toiletten
- der Bodenbelag
- die sonstige Ausstattung
vor dem Ausbau mit den Mieterwünschen abgesprochen werden.
Besichtigungen können mit unserem Büro vereinbart werden
Die Raumaufteilung kann in Absprache mit dem Mieter individuell angepasst werden.
Das Grundriss-Beispiel im Anhang als Bild ist NUR EIN BEISPIEL einer möglichen Aufteilung.
Ebenso kann
- die Anzahl der Toiletten
- der Bodenbelag
- die sonstige Ausstattung
vor dem Ausbau mit den Mieterwünschen abgesprochen werden.
Besichtigungen können mit unserem Büro vereinbart werden
Ausstattung
| Inserat befindet sich im Stockwerk | 3 |
- gepflegtes Geschäftshaus
- Gegensprechanlage
- Personenaufzug
- Gegensprechanlage
- Personenaufzug
