BUERO.flächen im Logistikcenter Leipzig/Halle an der A9
immobilien.de Nr.: 8794160
Objektnummer: 1217/E5/Eh3
Preise & Kosten
| Miete für das Objekt | Auf Anfrage |
| Nebenkosten | keine Angabe |
| Mietpreis pro m² | 5,5 € |
| Maklerprovision | provisionsfrei |
Größe & Zustand
| Bürofläche | 956 m² |
| Bürofläche | 956 m² |
| Fläche teilbar ab | 956 m² |
| Verfügbar ab | keine Angabe |
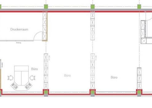
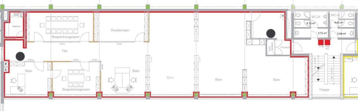
Objektbeschreibung
Das moderne Bürogebäude mit Aluminium-Fassade bietet über 3 Etagen durch die flexible Flächenaufteilung ideale Voraussetzungen für Firmen mit unterschiedlichen Anforderungenprofilen.
Die Büroflächen verfügen über folgende Grundausstattung:
- Stuhlrollenfester Teppichfußboden
- abgehängte Akustikdecke
- Cat5-Datenverkabelung
- praktische Einbauschränke
- Teeküche
- getrennte Sanitäranlagen
Aktuell stehen im Objekt folgende Flächen zur Verfügung, welche sowohl einzeln als auch zusammen angemietet werden können:
- ca. 463m² im 1. OG
- ca. 493m² im 2. OG
- ca. 206m² im 3. OG
- ca. 312m² im 3. OG
Stellplätze stehen ausreichend auf dem Gelände zur Anmietung zur Verfügung.
Die Büroflächen verfügen über folgende Grundausstattung:
- Stuhlrollenfester Teppichfußboden
- abgehängte Akustikdecke
- Cat5-Datenverkabelung
- praktische Einbauschränke
- Teeküche
- getrennte Sanitäranlagen
Aktuell stehen im Objekt folgende Flächen zur Verfügung, welche sowohl einzeln als auch zusammen angemietet werden können:
- ca. 463m² im 1. OG
- ca. 493m² im 2. OG
- ca. 206m² im 3. OG
- ca. 312m² im 3. OG
Stellplätze stehen ausreichend auf dem Gelände zur Anmietung zur Verfügung.
Sonstige Informationen
Der Mietpreis richtet sich nach Ausstattung, Lage im Gebäude und Vertragslaufzeit und liegt zwischen 5,50 EUR/ m² und 7,50 EUR/ m².
Flächenanmietung leicht gemacht?
Bitte sprechen Sie uns an, gern stellen wir Ihnen eine Auswahl geeigneter Büroflächenangebote zusammen. Für Fragen, ein persönliches Gespräch oder auch eine persönliche Terminvereinbarung stehen wir Ihnen gern telefonisch unter 0341 | 5643000 zur Verfügung.
Flächenanmietung leicht gemacht?
Bitte sprechen Sie uns an, gern stellen wir Ihnen eine Auswahl geeigneter Büroflächenangebote zusammen. Für Fragen, ein persönliches Gespräch oder auch eine persönliche Terminvereinbarung stehen wir Ihnen gern telefonisch unter 0341 | 5643000 zur Verfügung.
Lage des Objektes
Das Bürogebäude befindet sich am Rande eines Gewerbegebietes unweit von Landsberg entfernt. Über die B100 und A9 erreichen Sie mit dem Auto Leipzig in ca. 25 Minuten und Halle in 10 Minuten. Der Bahnhof liegt wenige Gehminuten entfernt und ermöglicht eine Direktverbindung nach Halle. Eine Busverbindung besteht durch die Linie 346 nach Landsberg ebenfalls.
Anbieter kontaktieren
Kontakt
| Telefon | +49(0)341-5643000 |
| Fax | +49(0)341-5643030 |
| Website | www.buero-immobilien.com |
