Repräsentatives Gewerbeobjekt mit Bürogebäude und Fertigungshalle
immobilien.de Nr.: 8746552
Objektnummer: 321119
Preise & Kosten
| Kaufpreis | Auf Anfrage |
| Nebenkosten | keine Angabe |
| Maklerprovision | 3,57 % (inkl. MwSt.) |
Größe & Zustand
| Gesamtfläche | 1.700 m² |
| Bürofläche | 625 m² |
| Grundstücksfläche | 5.200 m² |
| Baujahr | 2002 |
| Verfügbar ab | nach Absprache |
| Zustand | Gepflegt |
Energie
| Energieausweistyp | Verbrauch |
| Ausstellungsdatum | 06. 09. 2024 |
| Baujahr (laut Energieausweis) | 2002 |
| Energieeffizienzklasse | C |
| Energieverbrauchkennwert | 93.2 kWh/(m²*a) |
| Heizungsart | Zentralheizung |
| Wesentlicher Energieträger | Öl |
| Energieträger/Befeuerung | Öl |
Objektbeschreibung
Objektbeschreibung:
In zentraler Lage von Mühltroff im sächsischen Vogtland, befindet sich dieses vielseitige Gewerbeobjekt. Es besteht aus einem zweistöckigen Bürogebäude und mehreren geräumigen Fertigungshallen. Der Altbau aus den 60er Jahren dient derzeit als Lagerhalle. Der moderne Neubau von 2002 bietet großzügige Flächen für Büros und Produktion.
Grundstück:
ca. 5.200 qm mit einem Nebengebäude, einer Wiese, eine große Zufahrt und ca. 10 Parkplätzen
Bürogebäude:
Zwei Etagen mit insgesamt ca. 625 qm
Helle Räume mit großen Fenstern
Vielseitig nutzbar ideal für Büros, Praxisräume oder eine Seniorenresidenz
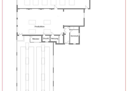
Fertigungshalle:
Ca. 1.080 qm Produktionsfläche
Hohe Decken und gute Belichtung
Perfekt für Handwerk, Produktion oder Lagerung
Ambiente:
Das Gebäude strahlt eine einladende Atmosphäre aus. Die lichtdurchfluteten Räume eignen sich ideal für repräsentative Zwecke.
Nutzungsmöglichkeiten:
Seniorenresidenz: Gestalten Sie hier ein komfortables Zuhause für ältere Menschen.
Bürorepräsentanz: Nutzen Sie die Räume als repräsentative Geschäftsadresse.
Produktion und Lager: Die Fertigungshalle bietet viel Platz für Produktion und Lagerung.
Weitere Angebote unter www.GARANT-IMMO.de
In zentraler Lage von Mühltroff im sächsischen Vogtland, befindet sich dieses vielseitige Gewerbeobjekt. Es besteht aus einem zweistöckigen Bürogebäude und mehreren geräumigen Fertigungshallen. Der Altbau aus den 60er Jahren dient derzeit als Lagerhalle. Der moderne Neubau von 2002 bietet großzügige Flächen für Büros und Produktion.
Grundstück:
ca. 5.200 qm mit einem Nebengebäude, einer Wiese, eine große Zufahrt und ca. 10 Parkplätzen
Bürogebäude:
Zwei Etagen mit insgesamt ca. 625 qm
Helle Räume mit großen Fenstern
Vielseitig nutzbar ideal für Büros, Praxisräume oder eine Seniorenresidenz
Fertigungshalle:
Ca. 1.080 qm Produktionsfläche
Hohe Decken und gute Belichtung
Perfekt für Handwerk, Produktion oder Lagerung
Ambiente:
Das Gebäude strahlt eine einladende Atmosphäre aus. Die lichtdurchfluteten Räume eignen sich ideal für repräsentative Zwecke.
Nutzungsmöglichkeiten:
Seniorenresidenz: Gestalten Sie hier ein komfortables Zuhause für ältere Menschen.
Bürorepräsentanz: Nutzen Sie die Räume als repräsentative Geschäftsadresse.
Produktion und Lager: Die Fertigungshalle bietet viel Platz für Produktion und Lagerung.
Weitere Angebote unter www.GARANT-IMMO.de
Ausstattung
| Anzahl der Etagen im Haus | 2 |
* Bürogebäude zweistöckig:
- kleine Kaffeeküche
- Büros
- Ausstellungsräume
- Küche und Pausenraum
- Fotostudio
- Lobby
- Galerie
- Archiv
- Mitarbeiterumkleiden
- Toiletten
- Zugang zur Fertigungshalle
* Neubau:
- Lichtkuppeln
- große Fenster
- Lager
- Gruben
- Rolltor
- Büro
* Lager Altbau:
- Büroräume
- Toiletten (zur Zeit ungenutzt)
- Lichtkuppeln
- Heizung
- kleiner Keller
- Werkstatt
- Umkleiden
- kleine Kaffeeküche
- Büros
- Ausstellungsräume
- Küche und Pausenraum
- Fotostudio
- Lobby
- Galerie
- Archiv
- Mitarbeiterumkleiden
- Toiletten
- Zugang zur Fertigungshalle
* Neubau:
- Lichtkuppeln
- große Fenster
- Lager
- Gruben
- Rolltor
- Büro
* Lager Altbau:
- Büroräume
- Toiletten (zur Zeit ungenutzt)
- Lichtkuppeln
- Heizung
- kleiner Keller
- Werkstatt
- Umkleiden
Sonstige Informationen
Ein vielseitiges Gewerbeobjekt mit modernem Charme und Komfort. Nutzen Sie diese Gelegenheit für Ihre individuellen Bedürfnisse!
Kontakt
| Telefon | 09281/54 01 34-0 |
| Fax | 09281/54 01 34-20 |
| Website | www.garant-immo.de |
