Kernsanierte Praxis mit Einliegerwohnung bei Ludwigsfelde
7
Zimmer
immobilien.de Nr.: 8724078
Preise & Kosten
| Miete für das Objekt | Auf Anfrage |
| Nebenkosten | keine Angabe |
| Mietpreis pro m² | 13,5 € |
| Maklerprovision | 2 NKM |
| Kaution | 3 NKM |
Größe & Zustand
| Bürofläche | 160 m² |
| Zimmer | 7 |
| Verfügbar ab | keine Angabe |
Energie
| Energietyp | Neubaustandard |
| Heizungsart | Fußbodenheizung |
| Energieträger/Befeuerung | Gas |
Objektbeschreibung
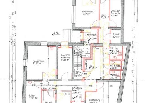
Auf ca. 170 m² bietet diese Einheit ideale Voraussetzungen für eine Praxis oder ein Büro. Die Räume wurden bereits für eine Arztpraxis konzipiert und entsprechend ausgestattet. Eine Praxiszulassung für den Standort wurde einem abgesprungenen Arzt angeblich bereits erteilt, was einen sofortigen Start erleichtern kann. Sämtliche Räume sind individuell anpassbar und können bei Bedarf mit der Einliegerwohnung im Obergeschoss verbunden werden.
Besondere Merkmale:
Barrierefreiheit: Die gesamte Praxis im Erdgeschoss ist barrierefrei zugänglich.
Ausstattung: Fußbodenheizung, Klasse 3 Brandschutz uvm.
Vielseitige Nutzungsmöglichkeiten: Ob als Arztpraxis, Physiotherapie oder Büro - die Nutzungsmöglichkeiten sind vielfältig.
Einliegerwohnung (Obergeschoss):
Im Obergeschoss entsteht eine großzügige Einliegerwohnung mit ca. 180 m² Wohnfläche. Die Räume sind offen und hell gestaltet, mit viel Potenzial für eine individuelle Raumaufteilung. Auch hier sorgt die Fußbodenheizung für hohen Wohnkomfort.
Sonstiges:
Das Gebäude ist komplett unterkellert und bietet zusätzlichen Stauraum sowie Ausweichmöglichkeiten für Praxis oder Wohnbereich.
Fazit:
Dieses Objekt bietet die einmalige Gelegenheit, eine hochwertige Gewerbefläche in einer modernen kernsanierten Immobilie zu mieten und gleichzeitig den Komfort einer großzügigen Einliegerwohnung zu genießen. Ideal für Ärzte, Therapeuten oder andere Gewerbetreibende, die Wohnen und Arbeiten unter einem Dach vereinen möchten.
Besondere Merkmale:
Barrierefreiheit: Die gesamte Praxis im Erdgeschoss ist barrierefrei zugänglich.
Ausstattung: Fußbodenheizung, Klasse 3 Brandschutz uvm.
Vielseitige Nutzungsmöglichkeiten: Ob als Arztpraxis, Physiotherapie oder Büro - die Nutzungsmöglichkeiten sind vielfältig.
Einliegerwohnung (Obergeschoss):
Im Obergeschoss entsteht eine großzügige Einliegerwohnung mit ca. 180 m² Wohnfläche. Die Räume sind offen und hell gestaltet, mit viel Potenzial für eine individuelle Raumaufteilung. Auch hier sorgt die Fußbodenheizung für hohen Wohnkomfort.
Sonstiges:
Das Gebäude ist komplett unterkellert und bietet zusätzlichen Stauraum sowie Ausweichmöglichkeiten für Praxis oder Wohnbereich.
Fazit:
Dieses Objekt bietet die einmalige Gelegenheit, eine hochwertige Gewerbefläche in einer modernen kernsanierten Immobilie zu mieten und gleichzeitig den Komfort einer großzügigen Einliegerwohnung zu genießen. Ideal für Ärzte, Therapeuten oder andere Gewerbetreibende, die Wohnen und Arbeiten unter einem Dach vereinen möchten.
Ausstattung
| Anzahl der Etagen im Haus | 1 |
Wärmepumpe
Tresen
Grundriss auf Praxis angepasst
Wünsche der Raumaufteilung noch individuell anpassbar
Tresen
Grundriss auf Praxis angepasst
Wünsche der Raumaufteilung noch individuell anpassbar
Sonstige Informationen
Die Arbeiten sind noch nicht abgeschlossen.
Die Immobilie wird in Kürze zur Verfügung stehen.
Die Immobilie wird in Kürze zur Verfügung stehen.
Lage des Objektes
Das Objekt befindet sich in der Dorfaue 1, zentral gelegen in Groß Schulzendorf. Diese ruhige und dennoch gut angebundene Lage bietet ideale Voraussetzungen für eine Praxis oder ein anderes Gewerbe. Die Umgebung verbindet ländliche Idylle mit modernen Annehmlichkeiten.
Wohnqualität: Groß Schulzendorf ist ein ruhiger, ländlicher Ortsteil von Ludwigsfelde, der durch seine grüne Umgebung und die Nähe zur Natur besticht. Die Dorfaue 1 liegt zentral im Ort und bietet eine idyllische Wohnumgebung, die besonders bei Familien und Ruhesuchenden beliebt ist.
Infrastruktur: Im direkten Umfeld finden sich lokale Versorger und kleine Geschäfte. Die Nachbarschaft ist geprägt von Einfamilienhäusern und kleineren Wohnanlagen, was eine ruhige und angenehme Atmosphäre schafft. Die Verkehrsanbindung im Ort ist gut, mit kurzen Wegen zu den nächstgelegenen Hauptstraßen und einer Bushaltestelle in unmittelbarer Nähe.
Bildung und Freizeit: In der Nähe befinden sich Kindergärten, Grundschulen sowie Freizeitmöglichkeiten wie Spielplätze und Wanderwege. Die ländliche Umgebung bietet zudem viele Möglichkeiten für Outdoor-Aktivitäten.
Makrolage (Ludwigsfelde und Umgebung):
Verkehrsanbindung: Ludwigsfelde liegt verkehrsgünstig nahe der Autobahn A10 (Berliner Ring), was eine schnelle Anbindung an Berlin und andere umliegende Städte ermöglicht. Der Bahnhof Ludwigsfelde bietet regelmäßige Zugverbindungen nach Berlin und Potsdam.
Wirtschaft: Ludwigsfelde ist ein wichtiger Industriestandort mit Unternehmen wie Mercedes-Benz, die in der Region bedeutende Arbeitgeber sind. Die wirtschaftliche Stabilität der Region sorgt für eine kontinuierlich hohe Nachfrage nach Wohn- und Gewerbeimmobilien.
Einzugsgebiet: Die Region profitiert von der Nähe zur Metropole Berlin, was sich positiv auf die Miet- und Kaufpreise auswirkt. Zudem bietet Ludwigsfelde alle wichtigen Dienstleistungen, Einkaufszentren und ein gutes Gesundheitssystem.
Lebensqualität: Die Stadt Ludwigsfelde kombiniert ländlichen Charme mit städtischem Komfort, was sie zu einem attraktiven Wohnort für Pendler und Familien macht. Die Region bietet eine hohe Lebensqualität mit zahlreichen Freizeit- und Erholungsmöglichkeiten.
Wohnqualität: Groß Schulzendorf ist ein ruhiger, ländlicher Ortsteil von Ludwigsfelde, der durch seine grüne Umgebung und die Nähe zur Natur besticht. Die Dorfaue 1 liegt zentral im Ort und bietet eine idyllische Wohnumgebung, die besonders bei Familien und Ruhesuchenden beliebt ist.
Infrastruktur: Im direkten Umfeld finden sich lokale Versorger und kleine Geschäfte. Die Nachbarschaft ist geprägt von Einfamilienhäusern und kleineren Wohnanlagen, was eine ruhige und angenehme Atmosphäre schafft. Die Verkehrsanbindung im Ort ist gut, mit kurzen Wegen zu den nächstgelegenen Hauptstraßen und einer Bushaltestelle in unmittelbarer Nähe.
Bildung und Freizeit: In der Nähe befinden sich Kindergärten, Grundschulen sowie Freizeitmöglichkeiten wie Spielplätze und Wanderwege. Die ländliche Umgebung bietet zudem viele Möglichkeiten für Outdoor-Aktivitäten.
Makrolage (Ludwigsfelde und Umgebung):
Verkehrsanbindung: Ludwigsfelde liegt verkehrsgünstig nahe der Autobahn A10 (Berliner Ring), was eine schnelle Anbindung an Berlin und andere umliegende Städte ermöglicht. Der Bahnhof Ludwigsfelde bietet regelmäßige Zugverbindungen nach Berlin und Potsdam.
Wirtschaft: Ludwigsfelde ist ein wichtiger Industriestandort mit Unternehmen wie Mercedes-Benz, die in der Region bedeutende Arbeitgeber sind. Die wirtschaftliche Stabilität der Region sorgt für eine kontinuierlich hohe Nachfrage nach Wohn- und Gewerbeimmobilien.
Einzugsgebiet: Die Region profitiert von der Nähe zur Metropole Berlin, was sich positiv auf die Miet- und Kaufpreise auswirkt. Zudem bietet Ludwigsfelde alle wichtigen Dienstleistungen, Einkaufszentren und ein gutes Gesundheitssystem.
Lebensqualität: Die Stadt Ludwigsfelde kombiniert ländlichen Charme mit städtischem Komfort, was sie zu einem attraktiven Wohnort für Pendler und Familien macht. Die Region bietet eine hohe Lebensqualität mit zahlreichen Freizeit- und Erholungsmöglichkeiten.
