Provisionsfrei I Gut angebundene Büroflächen am Aaper Wald I Ausbau nach Mieterwunsch
immobilien.de Nr.: 8568832
Objektnummer: 2031_005
Preise & Kosten
| Kaltmiete | 0 € |
| Nebenkosten | keine Angabe |
| Mietpreis pro m² | 12,5 € |
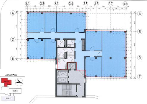
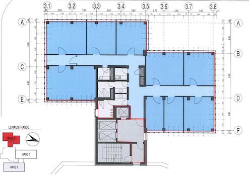
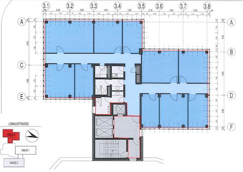
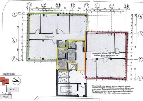
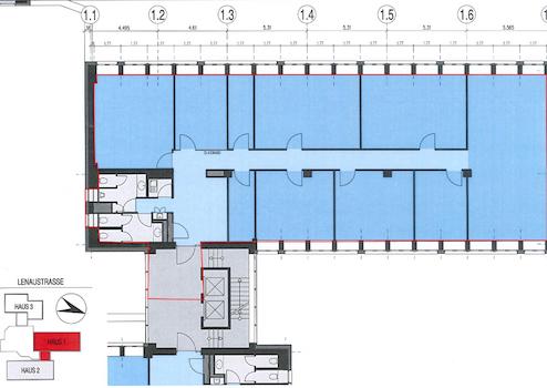
Größe & Zustand
| Gesamtfläche | 332 m² |
| Bürofläche | 332 m² |
| Verfügbar ab | kurzfristig |
Energie
| Heizungsart | Zentralheizung |
| Energieträger/Befeuerung | Gas |
Objektbeschreibung
Der Gebäudekomplex besteht aus drei Bauteilen, welche über ein repräsentatives Foyer miteinander verbunden sind. Alle Bauteile wurden im Jahre 2000 vollständig saniert und auf einen hochwertigen Gebäudestandard verbaut. Die Büroimmobilie besticht durch ein hauseigenes Restaurant, E-Ladesäulen, Leihfahrräder und Duschen mit Schließfächern. Zusätzlich steht eine Konferenzetage mit Räumen zur tageweisen Anmietung zur Verfügung.
Ausstattung
| Anzahl der Etagen im Haus | 13 |
| Inserat befindet sich im Stockwerk | 4 |
| Fahrstuhl |
- Raumaufteilung nach Mieterwunsch
- vorgerichtete Teeküchen je Mieteinheit
- getrennte Damen- und Herren WC Einheiten
- Bodenbelag nach Mieterwunsch
- Kühldecken
- vorgerichtete Teeküchen je Mieteinheit
- getrennte Damen- und Herren WC Einheiten
- Bodenbelag nach Mieterwunsch
- Kühldecken
Sonstige Informationen
- hauseigenes Bistro
- nachhaltige E-Ladesäulen
- Leihfahrräder für idyllische Touren im Grafenberger Wald
- Duschen mit Schließfächer
- Konferenzetage zur tageweisen Anmietung
- nachhaltige E-Ladesäulen
- Leihfahrräder für idyllische Touren im Grafenberger Wald
- Duschen mit Schließfächer
- Konferenzetage zur tageweisen Anmietung
Lage des Objektes
Die Liegenschaft befindet sich im Düsseldorfer Norden im Büromarkt Mörsenbroicher Ei. Durch die verkehrsgünstige Lage des Objektes erreichen Sie in 5 Minuten die Autobahn A52 Richtung Düsseldorfer Flughafen. Auch die öffentliche Anbindung ist mit der vor der Tür liegenden Haltestelle "Mörsenbroicher Weg" ideal erschlossen. So ist die Düsseldorfer Innenstadt in nur 13 Minuten mit der Bahn erreichbar.
Anbieter kontaktieren
Anbieter
corealis Commercial Real Estate GmbH
Hohe Straße 8-10
40213 Düsseldorf
Kontakt
| Telefon | +49(211) 52288470 |
| Fax | +49(211) 52288479 |
| Website | www.corealis.de |
