Malinska – neues rustikales Niedrigenergiehaus

51511 Malinska-Dubašnica, Kvarner Region [Primorsko-Goranska]
860.000 € Kaufpreis
Gesamtfläche
160 m²
Zimmer
4

Kaufpreis

Kaufpreis 860.000 €

Wohnfläche, Grundstück & Bausubstanz

Gesamtfläche160 m²
Grundstücksfläche350 m²
Zimmer4
Etagen0
Baujahr2026
Verfügbar ab Keine Angabe

Beschreibung der Immobilie

Umgebung von Malinska – neues freistehendes Steinhaus im Niedrigenergiestandard

In ruhiger Lage in der Umgebung von Malinska, etwa 2 km vom Meer entfernt, ist der Bau eines freistehenden rustikalen Steinhauses mit Swimmingpool geplant. Die Grundstücksfläche beträgt ca. 500 m², wovon nach dem Bau rund 350 m² als angelegter Garten zur Verfügung stehen.

Das Haus wird mit hochwertigen Materialien und Ausstattungen errichtet. Es verfügt über eine elektrische Fußbodenheizung, während in den Schlafzimmern hochwertiges Parkett verlegt wird. Fenster und Türen werden in einer Kombination aus PVC und Aluminium mit Fensterläden ausgeführt, und im Wohnzimmer ist ein klassischer Kamin vorgesehen. Die Fassade wird mit Naturstein verkleidet und unterstreicht den rustikalen mediterranen Stil.
Der Außenbereich umfasst einen Swimmingpool mit Elektrolysesystem und wird gärtnerisch gestaltet, inklusive der Pflanzung alter Olivenbäume.
Der Baubeginn ist für Januar 2026 vorgesehen.
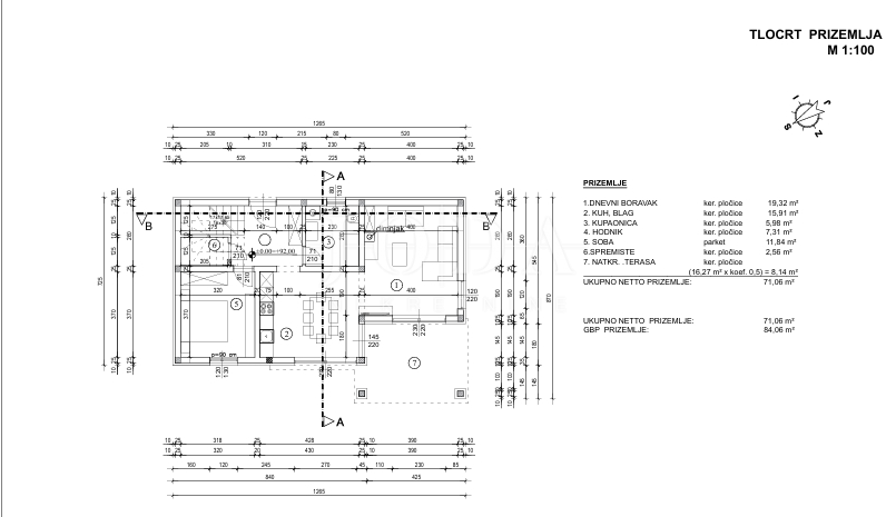
Im Erdgeschoss befinden sich ein offener Wohn-, Küchen- und Essbereich, ein Flur, ein Badezimmer, ein Schlafzimmer sowie ein Abstellraum, ergänzt durch eine großzügige überdachte Terrasse.
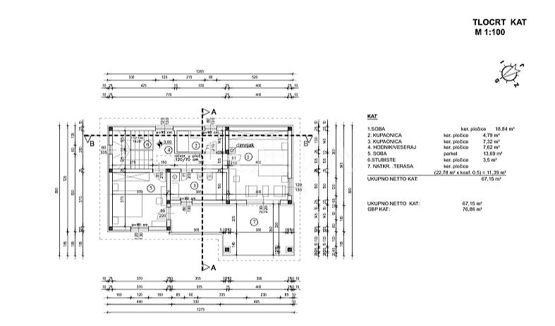
Im Obergeschoss sind zwei Schlafzimmer, zwei Badezimmer, ein Flur sowie ein großer gemeinsamer überdachter Balkon geplant.
Die gesamte Nettowohnfläche beträgt 138,21 m², die Bruttofläche 169,92 m².

Im angegebenen Preis ist die Mehrwertsteuer enthalten, sodass der Käufer keine Grunderwerbsteuer zahlt.

ID CODE: EI-7400

Ausstattungsmerkmale

Bad3

Karte wird geladen...
51511 Malinska-Dubašnica – Kvarner Region [Primorsko-Goranska]
Ansprechpartner/in: Josip Šikić, mag.oec
JO-DA REAL ESTATE AGENCY
Kralja Tomislava 112 A, 51260 Crikvenica