HRELJIN, BAKAR – 2-Zimmer-Wohnung mit Wohnzimmer, Garten, Terrasse und Meerblick – Parkplatz und Abstellraum

51226 Bakar, Kvarner Region [Primorsko-Goranska]
244.000 € Kaufpreis
Gesamtfläche
78 m²
Zimmer
3

Kaufpreis

Kaufpreis 244.000 €

Wohnfläche, Grundstück & Bausubstanz

Gesamtfläche78 m²
Zimmer3
Etagen2
Baujahr2026
Verfügbar ab Keine Angabe

Beschreibung der Immobilie

HRELJIN, BAKAR – 2-Zimmer-Wohnung mit Wohnzimmer, Garten, Terrasse und Meerblick – Parkplatz und Abstellraum

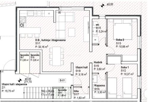
Diese moderne 2-Zimmer-Wohnung im Erdgeschoss eines Neubaus mit einer Wohnfläche von 78 m² bietet einen Garten, eine Terrasse, einen Parkplatz und einen Abstellraum. Die Wohnung verfügt über zwei Schlafzimmer und ein Wohnzimmer mit einem großzügigen, offenen Wohn-, Küchen- und Essbereich, zwei komfortable Schlafzimmer, ein Badezimmer, ein Gäste-WC und praktische Abstellräume.

Ein besonderes Highlight dieser Immobilie ist der private Garten mit Terrasse und Meerblick – ideal zum Entspannen und Verweilen im Freien. Die Lage bietet Ruhe und Privatsphäre und ist gleichzeitig zentral gelegen und mit allen Annehmlichkeiten des täglichen Bedarfs gut erreichbar.

Die Wohnung ist mit hochwertigen Materialien gebaut und mit erstklassiger Ausstattung versehen: Porotherm Profi S-Block, 10 cm Fassade, Alu-Ben Aluminiumfenster und -türen, Dierre Sicherheitstüren, Braga Innentüren, Kronotex Mammut 12 mm Laminat, Geberit Sanitärkeramik und hochwertige Fliesen. Beheizt und gekühlt wird die Wohnung über eine Hisense Split-Klimaanlage.

Die Immobilie ist mehrwertsteuerpflichtig und der geplante Einzugstermin ist Sommer 2026. Dies ist die letzte verfügbare Wohnung in diesem Projekt – eine ideale Gelegenheit, eine hochwertige Immobilie mit Garten und Meerblick zu erwerben.

*** Sehr geehrte Kunden, die Maklerprovision wird gemäß den Allgemeinen Geschäftsbedingungen berechnet:
www.dux-nekretnine.hr/opci-uvjeti-poslovanja!

ID CODE: 46888

Ausstattungsmerkmale

Bad1

Karte wird geladen...
51226 Bakar – Kvarner Region [Primorsko-Goranska]
Ansprechpartner/in: Stevan Savić
DUX Nekretnine d.o.o.
Tizianova, 51000 Rijeka