Malinska, Haus mit Pool und Meerblick, Neubau!

51511 Malinska-Dubašnica, Kvarner Region [Primorsko-Goranska]
620.000 € Kaufpreis
Gesamtfläche
122 m²
Zimmer
4

Kaufpreis

Kaufpreis 620.000 €

Wohnfläche, Grundstück & Bausubstanz

Gesamtfläche122 m²
Grundstücksfläche200 m²
Zimmer4
Etagen1
Baujahr2026
Verfügbar ab Keine Angabe

Beschreibung der Immobilie

Malinska, neues Doppelhaus mit Garten, Pool und Meerblick zu verkaufen!
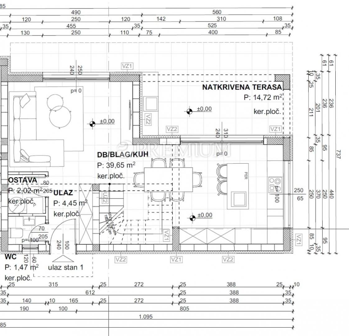
Die Immobilie erstreckt sich über zwei Etagen – Erdgeschoss und Obergeschoss – mit einer Nettonutzfläche von 122 m².

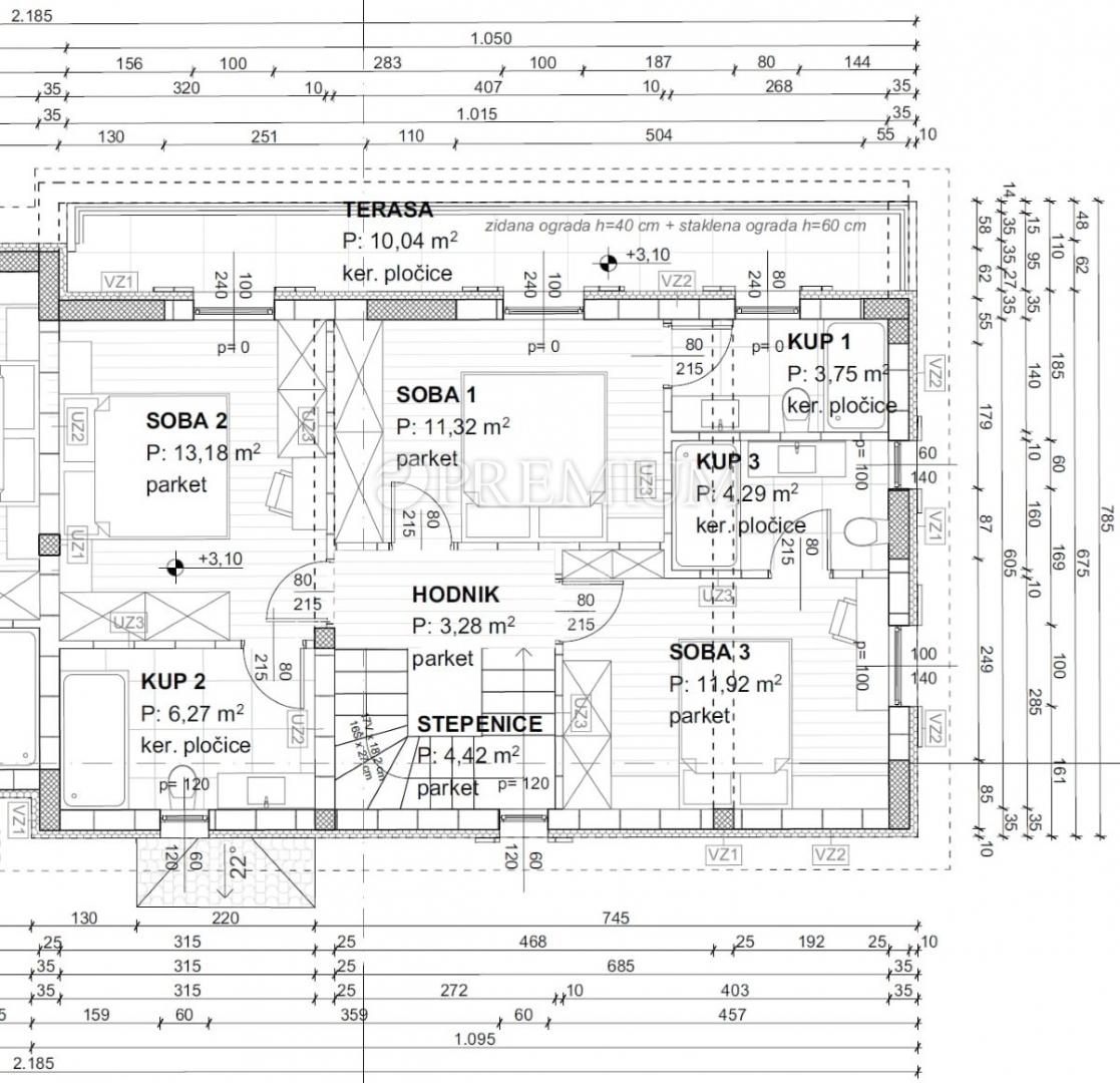
Im Obergeschoss befinden sich ein Flur sowie drei Schlafzimmer, jeweils mit eigenem Badezimmer. Zwei Schlafzimmer verfügen über einen direkten Zugang zur Terrasse mit Meerblick.
Über eine Innentreppe gelangt man ins Erdgeschoss, das einen Eingangsbereich, einen Abstellraum, ein WC sowie einen offenen Wohnbereich mit Küche, Esszimmer und Wohnzimmer umfasst, mit Zugang zur Terrasse. Auf der Terrasse ist eine Sommerküche geplant, während der Garten schön angelegt wird und einen beheizten Pool umfasst.

Die Immobilie ist mit modernen Heiz- und Kühlsystemen ausgestattet – Fußbodenheizung von Viessmann sowie Klimaanlage von Mitsubishi in allen Räumen. Hochwertige ALU-PVC-Fenster REHAU SYNEGO mit Dreifachverglasung sind verbaut.

Zur Immobilie gehören zwei Parkplätze.

Die Mehrwertsteuer ist im Preis enthalten, sodass keine Grunderwerbsteuer anfällt.

ID CODE: 4641

Ausstattungsmerkmale

Bad3

Karte wird geladen...
51511 Malinska-Dubašnica – Kvarner Region [Primorsko-Goranska]
Ansprechpartner/in: Snježana Meštrović
+385-51858364
Premium SM d.o.o
Dubasyanska 76, 51511 Malinska