Istrien, Pula: Moderne wohnung mit balkon parkplatz

52100 Pula, Istrien
165.000 € Kaufpreis
Gesamtfläche
47 m²
Zimmer
2
Etage
1

Kaufpreis

Kaufpreis 165.000 €

Wohnfläche, Grundstück & Bausubstanz

Gesamtfläche47 m²
Zimmer2
Etagen2
Stockwerk1
Verfügbar ab Keine Angabe

Beschreibung der Immobilie

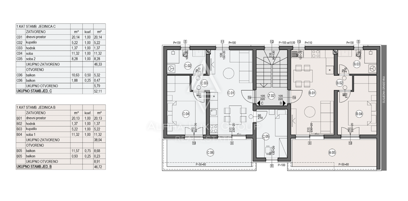
Moderne Wohnung zum Verkauf im ersten Stock eines neu gebauten Wohnkomplexes im Stadtteil Valmade in Pula. Dieses zeitgemäße Projekt besteht aus drei sorgfältig geplanten Gebäuden in Reihenbauweise, wobei jedes Gebäude vier Wohneinheiten umfasst und ein privates sowie gut organisiertes Wohnumfeld schafft, ideal für Eigennutzung oder als Investition.

Die Wohnung befindet sich im ersten Stock und bietet eine funktionale Raumaufteilung, die Komfort und Effizienz gewährleistet. Sie umfasst einen Eingangsbereich, ein helles Wohnzimmer mit offener Küche und Essbereich, ein komfortables Schlafzimmer, ein modernes Badezimmer sowie einen Balkon, der den Wohnraum nach außen erweitert.

Die Immobilie ist mit hochwertigen Ausstattungsmerkmalen versehen, darunter Klimaanlagen für Heizung und Kühlung, Fußbodenheizung, elektrische Rollläden, Sicherheitstüren sowie PVC-Fenster mit Dreifachverglasung für hervorragende Isolierung und Energieeffizienz. Das Badezimmer ist mit moderner Sanitärtechnik ausgestattet und verbindet Funktionalität mit ansprechendem Design.

Zur Wohnung gehören außerdem ein Außenstellplatz sowie ein Abstellraum, die zusätzlichen Komfort und praktische Nutzung im Alltag bieten.

Das Gebäude wurde nach modernen architektonischen und baulichen Standards errichtet und verwendet hochwertige Materialien, die Langlebigkeit, Energieeffizienz und langfristigen Werterhalt garantieren. Diese Immobilie ist eine ausgezeichnete Wahl für Käufer, die ein modernes Zuhause oder eine sichere Investition im wachsenden Immobilienmarkt von Pula suchen.

Valmade zählt zu den begehrten Wohnlagen in Pula und bietet Nähe zu Schulen, Geschäften, Restaurants und allen wichtigen Einrichtungen, während gleichzeitig eine ruhige Wohnatmosphäre erhalten bleibt. Pula ist bekannt für sein reiches kulturelles Erbe, seine entwickelte Infrastruktur und die steigende Nachfrage nach hochwertigen Immobilien, wodurch die Stadt zu den attraktivsten Destinationen an der Adria gehört. Die Kombination aus Lage, Bauqualität und funktionalem Design gewährleistet eine langfristige Wertsteigerung und hervorragendes Vermietungspotenzial.

Die Fertigstellung ist für das Jahr 2026 geplant.

Ihre Zufriedenheit ist unsere Mission. Wir freuen uns auf eine zukünftige Zusammenarbeit!

Besichtigungen sind nur nach vorheriger Unterzeichnung eines Maklervertrags möglich.

Die Maklerprovision beträgt 3% + MwSt. und ist bei Vertragsabschluss fällig.

https://immobilienistrienkaufen.de

ID CODE: ALG-3743

Ausstattungsmerkmale

Bad1

Karte wird geladen...
52100 Pula – Istrien
Ansprechpartner/in: Marijana Budimir
+385953631892
Alpha Luxe Group d.o.o.
Mate Vlasica 17, 52440 Porec