BRODARICA – ERSTE REIHE ZUM MEER, 2-ZIMMER-WOHNUNG, S5-B1

22000 Šibenik - Okolica, Dalmatien-Sibenik [Sibensko-Kninska]
470.000 € Kaufpreis
Gesamtfläche
72 m²
Zimmer
3
Etage
2

Kaufpreis

Kaufpreis 470.000 €

Wohnfläche, Grundstück & Bausubstanz

Gesamtfläche72 m²
Zimmer3
Etagen2
Stockwerk2
Baujahr2026
Verfügbar ab Keine Angabe

Beschreibung der Immobilie

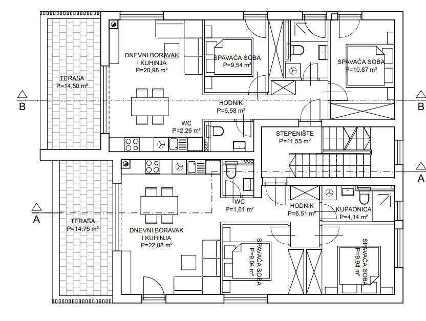
Zum Verkauf steht die Wohnung S5, die sich im zweiten Stock eines modernen Neubaus im Ortsteil Brodarica, in unmittelbarer Nähe von Šibenik, befindet.

Die Gesamtfläche der Wohnung beträgt 72,62 m² und besteht aus einem Eingangsbereich, einem Wohnzimmer mit Küche und Essbereich, zwei Schlafzimmern, einem Badezimmer, einem separaten WC sowie einem Zugang zur Terrasse und einem eigenen Parkplatz.

Das Gebäude wird nach modernen Baustandards errichtet, mit besonderem Fokus auf hochwertige Materialien und Verarbeitung. Zur Ausstattung gehören erstklassige Tischlerei, moderne Keramik sowie hochwertige Sanitäreinrichtungen.

Die Lage ist sowohl für den täglichen Wohnbedarf als auch für Erholungszwecke äußerst geeignet, da sich der Strand nur 10 Meter entfernt befindet.

Für weitere Informationen oder zur Vereinbarung eines Besichtigungstermins stehen wir Ihnen gerne zur Verfügung.

ID CODE: 499

Ausstattungsmerkmale

Bad1

Karte wird geladen...
22000 Šibenik - Okolica – Dalmatien-Sibenik [Sibensko-Kninska]
Ansprechpartner/in: Nekretnine1.hr
Nekretnine1 j.d.o.o.
Pomerio 27, 51000 Rijeka