INSEL PAG, POVLJANA – Großzügige zweistöckige Wohnung mit Garten in einem Neubau

23249 Povljana, Dalmatien-Zadar (Region) [Zadarska]
343.744 € Kaufpreis
Gesamtfläche
107 m²
Zimmer
4

Kaufpreis

Kaufpreis 343.744 €

Wohnfläche, Grundstück & Bausubstanz

Gesamtfläche107 m²
Zimmer4
Etagen2
Verfügbar ab Keine Angabe

Beschreibung der Immobilie

INSEL PAG, POVLJANA – Großzügige Maisonette-Wohnung mit Garten in einem Neubau

Die Insel Pag ist bekannt für ihre einzigartige Kombination aus unberührter Natur, mediterranem Charme und angenehmem Klima. Das macht sie zu einem begehrten Reiseziel für einen erholsamen Urlaub oder zum dauerhaften Wohnen. Povljana, im Süden der Insel gelegen, bietet eine gelungene Mischung aus Privatsphäre und der Nähe zu allen Annehmlichkeiten – von Stränden und Restaurants bis hin zu Geschäften und Sportmöglichkeiten.

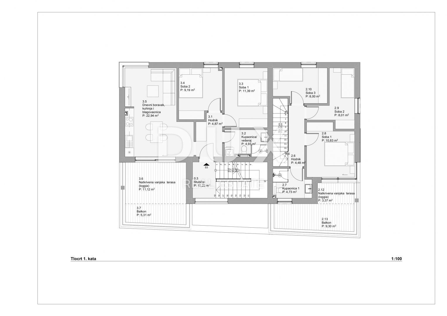
In einem neuen Wohngebäude mit insgesamt vier Wohnungen steht eine Maisonette-Wohnung mit einer Wohnfläche von 75,85 m² zum Verkauf. Die Wohnung verfügt über drei Schlafzimmer, einen Wohnbereich und ein Badezimmer im ersten Stock. Im Erdgeschoss befinden sich ein Gäste-WC und ein praktischer Hauswirtschaftsraum. Vom Wohnzimmer aus gelangt man auf eine geräumige Terrasse und in einen privaten Garten. Zusammen bieten sie eine Außenfläche von ca. 134 m² – ideal zum Entspannen und für gesellige Stunden im Freien.

Die Gesamtfläche der Wohnung inklusive Terrassen und Garten beträgt 107,42 m². Ein Doppelparkplatz rundet dieses attraktive Angebot ab.

Das Gebäude entspricht höchsten Baustandards – mit Fußbodenheizung, elektrischen Rollläden, hochwertigen PVC-Fenstern und -Türen sowie Klimaanlage. Die Energieeffizienzklasse A garantiert niedrigen Energieverbrauch und ganzjährig angenehmes Wohnklima.

Diese Maisonette-Wohnung mit Garten ist eine seltene Gelegenheit für alle, die ein geräumiges und funktionales Zuhause in ruhiger Lage mit guter Anbindung an alle Annehmlichkeiten der Insel suchen.

Für weitere Informationen oder zur Vereinbarung eines Besichtigungstermins kontaktieren Sie uns bitte. Wir freuen uns, Sie bei der Verwirklichung Ihrer Pläne zu unterstützen.

*** Sehr geehrte Kunden, die Maklerprovision wird gemäß den Allgemeinen Geschäftsbedingungen berechnet.

www.dux-nekretnine.hr/opci-uvjeti-poslovanja

ID CODE: 46542

Ausstattungsmerkmale


Karte wird geladen...
23249 Povljana – Dalmatien-Zadar (Region) [Zadarska]
Ansprechpartner/in: Iva Mršić
DUX Nekretnine d.o.o.
Tizianova, 51000 Rijeka