DALMATIA, PISAK – Zwei-Zimmer-Wohnungen mit Dachterrasse
450.000 €
Kaufpreis
3
Zimmer
immobilien.de Nr.: 9536289
Objektnummer: 46466
Kaufpreis
| Kaufpreis | 450.000 € |
Wohnfläche, Grundstück & Bausubstanz
| Gesamtfläche | 90 m² |
| Zimmer | 3 |
| Baujahr | 2027 |
| Verfügbar ab | keine Angabe |
Beschreibung der Immobilie
DALMATIA, PISAK – Zwei-Zimmer-Wohnungen mit Dachterrasse
Stellen Sie sich vor, Sie genießen Ihren Morgenkaffee auf Ihrer eigenen Dachterrasse mit Blick auf das offene Meer, während der Duft von Meer und Pinien Ihren Tag begleitet.
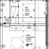
Im obersten Stockwerk des neuen Wohngebäudes befinden sich zwei identische Wohnungen mit einer Wohnfläche von 155 m² (Gesamtnutzfläche 180,25 m²).
Jede Wohnung ist als funktionale Einheit gestaltet und umfasst ein Wohnzimmer mit Küche und Essbereich, zwei Schlafzimmer, ein Badezimmer und einen geräumigen Flur.
Die Wohnungen werden in einem sehr guten Zustand übergeben: Hochwertige PVC-Fenster und -Türen mit Doppelverglasung und Rollläden sind bereits eingebaut, die Böden (Parkett und Fliesen) sowie die Wände sind fertig verputzt, und alles ist für den Einbau einer Wärmepumpe vorbereitet.
So erhalten die neuen Eigentümer einen perfekt gestalteten Wohnraum, den sie ganz nach ihren Wünschen einrichten können.
Die Kombination der Außenbereiche ist besonders wertvoll: Eine überdachte Terrasse von fast 15 m² lädt zum Entspannen ein, während die beeindruckende, 76,80 m² große Dachterrasse mit Fliesenboden und Glasgeländer unbegrenzte Gestaltungsmöglichkeiten bietet – von einer Liegewiese mit Grill bis hin zur Einrichtung einer Sommerküche oder Gartenmöbeln ganz nach Ihren Wünschen.
Die Apartments liegen im authentischen Küstenort Pisak, nur wenige Gehminuten vom kristallklaren Meer und naturbelassenen Buchten entfernt und bilden eine Oase der Ruhe und Privatsphäre. Umgeben von Grün und an einem sanften Hang mit herrlichem Meerblick gelegen, sind sie gleichzeitig nur eine kurze Autofahrt von der historischen Stadt Omiš mit all ihren Annehmlichkeiten, Geschäften und Restaurants entfernt.
Dieser Ort bietet die perfekte Kombination aus authentischem dalmatinischem Flair, unberührter Natur und modernem Komfort.
Das Besondere an diesen Apartments ist die seltene Kombination aus zwei Ebenen mit Außenbereich – einer Terrasse im Erdgeschoss und einer großzügigen Dachterrasse – sowie der Nutzung der Gemeinschaftspools. So können die Eigentümer die Wohnung im obersten Stockwerk mit exklusivem Ausblick genießen.
Sie eignen sich ideal für Familien oder zur touristischen Vermietung und bieten hohen Komfort und ein authentisches mediterranes Flair.
Sehr geehrte Kunden, die Vermittlungsprovision wird gemäß den Allgemeinen Geschäftsbedingungen berechnet.
www.dux-nekretnine.hr/opci-uvjeti-poslovanja
ID CODE: 46466
Stellen Sie sich vor, Sie genießen Ihren Morgenkaffee auf Ihrer eigenen Dachterrasse mit Blick auf das offene Meer, während der Duft von Meer und Pinien Ihren Tag begleitet.
Im obersten Stockwerk des neuen Wohngebäudes befinden sich zwei identische Wohnungen mit einer Wohnfläche von 155 m² (Gesamtnutzfläche 180,25 m²).
Jede Wohnung ist als funktionale Einheit gestaltet und umfasst ein Wohnzimmer mit Küche und Essbereich, zwei Schlafzimmer, ein Badezimmer und einen geräumigen Flur.
Die Wohnungen werden in einem sehr guten Zustand übergeben: Hochwertige PVC-Fenster und -Türen mit Doppelverglasung und Rollläden sind bereits eingebaut, die Böden (Parkett und Fliesen) sowie die Wände sind fertig verputzt, und alles ist für den Einbau einer Wärmepumpe vorbereitet.
So erhalten die neuen Eigentümer einen perfekt gestalteten Wohnraum, den sie ganz nach ihren Wünschen einrichten können.
Die Kombination der Außenbereiche ist besonders wertvoll: Eine überdachte Terrasse von fast 15 m² lädt zum Entspannen ein, während die beeindruckende, 76,80 m² große Dachterrasse mit Fliesenboden und Glasgeländer unbegrenzte Gestaltungsmöglichkeiten bietet – von einer Liegewiese mit Grill bis hin zur Einrichtung einer Sommerküche oder Gartenmöbeln ganz nach Ihren Wünschen.
Die Apartments liegen im authentischen Küstenort Pisak, nur wenige Gehminuten vom kristallklaren Meer und naturbelassenen Buchten entfernt und bilden eine Oase der Ruhe und Privatsphäre. Umgeben von Grün und an einem sanften Hang mit herrlichem Meerblick gelegen, sind sie gleichzeitig nur eine kurze Autofahrt von der historischen Stadt Omiš mit all ihren Annehmlichkeiten, Geschäften und Restaurants entfernt.
Dieser Ort bietet die perfekte Kombination aus authentischem dalmatinischem Flair, unberührter Natur und modernem Komfort.
Das Besondere an diesen Apartments ist die seltene Kombination aus zwei Ebenen mit Außenbereich – einer Terrasse im Erdgeschoss und einer großzügigen Dachterrasse – sowie der Nutzung der Gemeinschaftspools. So können die Eigentümer die Wohnung im obersten Stockwerk mit exklusivem Ausblick genießen.
Sie eignen sich ideal für Familien oder zur touristischen Vermietung und bieten hohen Komfort und ein authentisches mediterranes Flair.
Sehr geehrte Kunden, die Vermittlungsprovision wird gemäß den Allgemeinen Geschäftsbedingungen berechnet.
www.dux-nekretnine.hr/opci-uvjeti-poslovanja
ID CODE: 46466
Ausstattungsmerkmale
| Anzahl der Etagen im Haus | 2 |
| Bad | 1 |
Karte wird geladen...
Objektstandort
21310 Omiš
- Dalmatien-Split [Splitsko-Dalmatinska]
Kontaktanfrage senden
Über den Anbieter
DUX Nekretnine d.o.o.
Tizianova
51000 Rijeka
Kontakt
| Telefon | +385 91 480 8808 |
| Mobil | +385 91 480 8808 |
Ansprechpartner/in
Bruno Bručić