Istrien – Baugrundstück mit Genehmigung und Projekt für Villa mit Pool

52342 Svetvinčenat, Istrien
89.000 € Kaufpreis
Gesamtfläche
608 m²

Kaufpreis

Kaufpreis 89.000 €

Wohnfläche, Grundstück & Bausubstanz

Gesamtfläche608 m²
Etagen0
Verfügbar ab Keine Angabe

Beschreibung der Immobilie

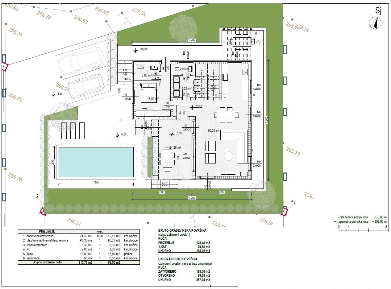
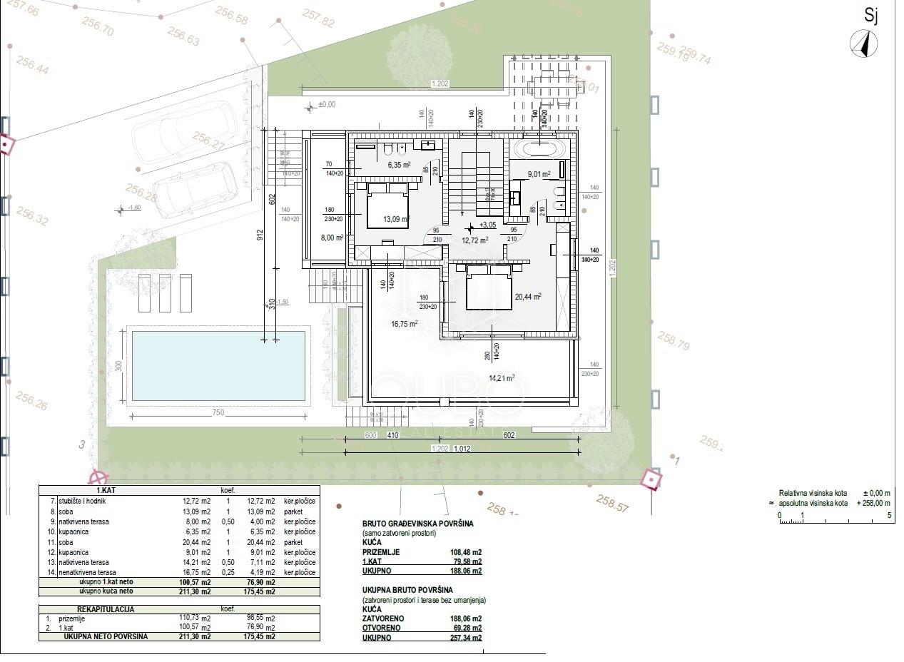
Im ruhigen Ort Bibići, nur wenige Autominuten vom malerischen Svetvinčenat entfernt, befindet sich dieses rechteckige Baugrundstück mit 608 m² – bereit für Ihr nächstes Bauprojekt. Eine Baugenehmigung für eine moderne zweigeschossige Villa mit Pool und 188 m² Netto-Wohnfläche wurde bereits erteilt.

Die geplante Villa umfasst:
• 3 Schlafzimmer
• 3 Badezimmer
• Offener Wohnbereich mit Küche und Esszimmer
• Überdachte Terrassen
• Swimmingpool mit Sonnenterrasse
• Privatparkplatz

Das Grundstück ist geräumt, gut zugänglich und die Anschlüsse für Strom, Wasser und Abwasser befinden sich in unmittelbarer Nähe.

Umgeben von hochwertigen Villen in einer ruhigen und gepflegten Umgebung – die perfekte Gelegenheit für Investoren im Ferienvermietungsbereich oder für den Bau einer privaten Rückzugsoase. Der Zufahrtsweg ist bereits vorhanden, das Umfeld wirkt strukturiert und hochwertig.

Hauptmerkmale:
• Grundstücksgröße: 608 m²
• Baugenehmigung vorhanden
• Geplante Villa mit 188 m² Nettofläche
• 3 Schlafzimmer, 3 Badezimmer, Pool
• Zufahrtsstraße und Infrastruktur in der Nähe
• Rechteckiges und geräumtes Grundstück
• Umgeben von Luxusvillen
• Ruhige und private Lage

Für weitere Informationen, Projektunterlagen und Empfehlungen zu bewährten Bauunternehmen stehen wir Ihnen gerne zur Verfügung.

ID CODE: 28

Ausstattungsmerkmale


Karte wird geladen...
52342 Svetvinčenat – Istrien
Ansprechpartner/in: Nekretnine1.hr
Nekretnine1 j.d.o.o.
Pomerio 27, 51000 Rijeka