Istrien, Marčana — Baugrundstück mit Genehmigung und Projekt für eine Villa mit Pool, 305 m²
58.750 €
Kaufpreis
immobilien.de Nr.: 9535298
Objektnummer: 84
Kaufpreis
| Kaufpreis | 58.750 € |
Wohnfläche, Grundstück & Bausubstanz
| Gesamtfläche | 305 m² |
| Verfügbar ab | keine Angabe |
Beschreibung der Immobilie
In ruhiger Lage der Gemeinde Marčana, nur etwa 10 Autominuten von Pula und dem Meer entfernt, befindet sich dieses Baugrundstück mit einer Fläche von 305 m².
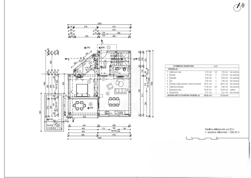
Das Grundstück verfügt über eine rechtskräftige Baugenehmigung und ein Projekt für eine moderne Villa mit Pool (6,00 x 4,00 m), das im Jahr 2024 erstellt wurde.
Geplant ist ein zweigeschossiges Haus (Erdgeschoss + Obergeschoss) mit einer Gesamtfläche von ca. 140 m², bestehend aus drei Schlafzimmern, zwei Bädern, einem offenen Wohn- und Essbereich mit Küche sowie einer überdachten Terrasse mit Blick auf den Pool und Garten.
Strom-, Wasser- und Abwasseranschlüsse befinden sich direkt am Grundstück, was einen sofortigen Baubeginn ermöglicht.
Der Käufer erwirbt zudem einen Anteil am Zufahrtsweg.
Ruhige Lage und neue Nachbarschaft machen dieses Grundstück ideal für Investitionen oder den Bau einer Ferienvilla in Istrien.
Hauptmerkmale:
• Grundstücksfläche: 305 m²
• Rechtskräftige Baugenehmigung
• Projekt für ein 140 m² großes Haus und Pool (6x4 m)
• Anteil am Zufahrtsweg
• Infrastruktur direkt am Grundstück
• Entfernung von Pula: ca. 10 km
Zusätzliche Kosten:
Maklerprovision 3% + MwSt.
Der angegebene Grundstückspreis ist inklusive MwSt.
Für weitere Informationen und Einsicht in die Projektdokumentation kontaktieren Sie Qubo Villas – Ihr Immobilienpartner in Istrien.
ID CODE: 84
Das Grundstück verfügt über eine rechtskräftige Baugenehmigung und ein Projekt für eine moderne Villa mit Pool (6,00 x 4,00 m), das im Jahr 2024 erstellt wurde.
Geplant ist ein zweigeschossiges Haus (Erdgeschoss + Obergeschoss) mit einer Gesamtfläche von ca. 140 m², bestehend aus drei Schlafzimmern, zwei Bädern, einem offenen Wohn- und Essbereich mit Küche sowie einer überdachten Terrasse mit Blick auf den Pool und Garten.
Strom-, Wasser- und Abwasseranschlüsse befinden sich direkt am Grundstück, was einen sofortigen Baubeginn ermöglicht.
Der Käufer erwirbt zudem einen Anteil am Zufahrtsweg.
Ruhige Lage und neue Nachbarschaft machen dieses Grundstück ideal für Investitionen oder den Bau einer Ferienvilla in Istrien.
Hauptmerkmale:
• Grundstücksfläche: 305 m²
• Rechtskräftige Baugenehmigung
• Projekt für ein 140 m² großes Haus und Pool (6x4 m)
• Anteil am Zufahrtsweg
• Infrastruktur direkt am Grundstück
• Entfernung von Pula: ca. 10 km
Zusätzliche Kosten:
Maklerprovision 3% + MwSt.
Der angegebene Grundstückspreis ist inklusive MwSt.
Für weitere Informationen und Einsicht in die Projektdokumentation kontaktieren Sie Qubo Villas – Ihr Immobilienpartner in Istrien.
ID CODE: 84
Ausstattungsmerkmale
| Anzahl der Etagen im Haus | 0 |
Karte wird geladen...
Objektstandort
52206 Marčana
- Istrien
Kontaktanfrage senden
Über den Anbieter
Nekretnine1 j.d.o.o.
Pomerio 27
51000 Rijeka
Kontakt
| Telefon | +385 95 714 8583 |
| Website | www.nekretnine1.hr |
Ansprechpartner/in
Nekretnine1.hr