CRIKVENICA, DRAMALJ – Antiquitätengeschäft mit Projekt für eine Luxusvilla mit Meerblick
291.000 €
Kaufpreis
5
Zimmer
immobilien.de Nr.: 9533758
Objektnummer: 46427
Kaufpreis
| Kaufpreis | 291.000 € |
Wohnfläche, Grundstück & Bausubstanz
| Gesamtfläche | 190 m² |
| Grundstücksfläche | 300 m² |
| Zimmer | 5 |
| Verfügbar ab | keine Angabe |
Beschreibung der Immobilie
CRIKVENICA, DRAMALJ – Altes Haus mit geplanter Luxusvilla und Meerblick
Der Bauantrag wurde im November 2025 eingereicht, alle Gebühren sind bezahlt, sodass die Umsetzung ohne weitere Verzögerungen zügig erfolgen kann.
Altes Haus mit geplanter Luxusvilla – Meerblick, Privatsphäre und Dokumentation
Zum Verkauf steht ein Anwesen bestehend aus drei bestehenden Gebäuden: einem Wohnhaus, einer Garage und einer Taverne (zukünftiger Wellnessbereich). Alle Gebäude sind ordentlich geplant und befinden sich in ruhiger Lage, nur 400 m Luftlinie vom Meer entfernt. Die Lage garantiert ein hohes Maß an Privatsphäre ohne direkten Einblick in Nachbargebäude.
Auf dem Grundstück befindet sich bereits eine Garage von ca. 36 m² sowie ein weiteres Gebäude, das für einen Wellnessbereich mit Whirlpool, Sauna, Dusche, WC und Waschküche von ca. 20 m² vorgesehen ist. Dies erhöht die Funktionalität und den Wert der Immobilie.
Für das betreffende Grundstück wurde ein Projekt für den Bau einer Luxusvilla erstellt, wobei besonderer Wert auf Komfort, funktionale Raumaufteilung und optimale Nutzung des Außenbereichs, einschließlich eines Swimmingpools, gelegt wurde. Die Villa ist so konzipiert, dass sie vom Erdgeschoss aus Meerblick bietet.
Laut Projekt besteht das Haus aus:
Erdgeschoss:
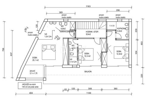
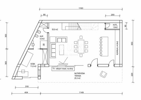
einem großzügigen Wohnzimmer mit offener Küche und Essbereich, einem Schlafzimmer, einem Badezimmer, einem Heizungsraum und Zugang zu einer überdachten Terrasse von ca. 25,5 m².
Obergeschoss:
drei Schlafzimmer, jeweils mit eigenem Badezimmer, darunter ein Hauptschlafzimmer (25 m²) mit eigenem Bad und Whirlpool, ein Flur und ein geräumiger Balkon.
Die Bruttogeschossfläche der Villa beträgt ca. 190 m², die Gesamtfläche (einschließlich der überdachten Terrasse mit einem Anteil von 0,5) ca. 180 m².
Sehr geehrte Kunden, die Vermittlungsprovision wird gemäß den Allgemeinen Geschäftsbedingungen berechnet.
www.dux-nekretnine.hr/opci-uvjeti-poslovanja
ID CODE: 46427
Der Bauantrag wurde im November 2025 eingereicht, alle Gebühren sind bezahlt, sodass die Umsetzung ohne weitere Verzögerungen zügig erfolgen kann.
Altes Haus mit geplanter Luxusvilla – Meerblick, Privatsphäre und Dokumentation
Zum Verkauf steht ein Anwesen bestehend aus drei bestehenden Gebäuden: einem Wohnhaus, einer Garage und einer Taverne (zukünftiger Wellnessbereich). Alle Gebäude sind ordentlich geplant und befinden sich in ruhiger Lage, nur 400 m Luftlinie vom Meer entfernt. Die Lage garantiert ein hohes Maß an Privatsphäre ohne direkten Einblick in Nachbargebäude.
Auf dem Grundstück befindet sich bereits eine Garage von ca. 36 m² sowie ein weiteres Gebäude, das für einen Wellnessbereich mit Whirlpool, Sauna, Dusche, WC und Waschküche von ca. 20 m² vorgesehen ist. Dies erhöht die Funktionalität und den Wert der Immobilie.
Für das betreffende Grundstück wurde ein Projekt für den Bau einer Luxusvilla erstellt, wobei besonderer Wert auf Komfort, funktionale Raumaufteilung und optimale Nutzung des Außenbereichs, einschließlich eines Swimmingpools, gelegt wurde. Die Villa ist so konzipiert, dass sie vom Erdgeschoss aus Meerblick bietet.
Laut Projekt besteht das Haus aus:
Erdgeschoss:
einem großzügigen Wohnzimmer mit offener Küche und Essbereich, einem Schlafzimmer, einem Badezimmer, einem Heizungsraum und Zugang zu einer überdachten Terrasse von ca. 25,5 m².
Obergeschoss:
drei Schlafzimmer, jeweils mit eigenem Badezimmer, darunter ein Hauptschlafzimmer (25 m²) mit eigenem Bad und Whirlpool, ein Flur und ein geräumiger Balkon.
Die Bruttogeschossfläche der Villa beträgt ca. 190 m², die Gesamtfläche (einschließlich der überdachten Terrasse mit einem Anteil von 0,5) ca. 180 m².
Sehr geehrte Kunden, die Vermittlungsprovision wird gemäß den Allgemeinen Geschäftsbedingungen berechnet.
www.dux-nekretnine.hr/opci-uvjeti-poslovanja
ID CODE: 46427
Ausstattungsmerkmale
| Anzahl der Etagen im Haus | 2 |
| Bad | 4 |
Karte wird geladen...
Objektstandort
51260 Crikvenica
- Kvarner Region [Primorsko-Goranska]
Kontaktanfrage senden
Über den Anbieter
DUX Nekretnine d.o.o.
Tizianova
51000 Rijeka
Kontakt
| Telefon | +385 91 480 8808 |
| Mobil | +385 91 480 8808 |
Ansprechpartner/in
Domagoj Ivezić