MATULJI, JUŠIĆI – Baugrundstück für 13 exklusive Apartments, Toplage!
1.100.000 €
Kaufpreis
immobilien.de Nr.: 9531181
Objektnummer: 46376
Kaufpreis
| Kaufpreis | 1.100.000 € |
Wohnfläche, Grundstück & Bausubstanz
| Gesamtfläche | 1.188 m² |
| Verfügbar ab | keine Angabe |
Beschreibung der Immobilie
MATULJI, JUŠIĆI – Baugrundstück für 13 exklusive Wohnungen in Toplage!
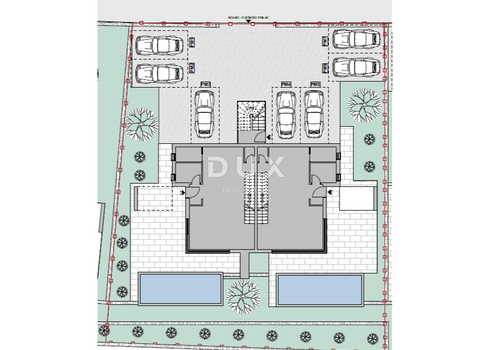
In DUX bieten wir Ihnen eine erstklassige Gelegenheit: ein Baugrundstück, auf dem drei Wohngebäude (A, B und C) mit insgesamt 13 exklusiven Wohnungen errichtet werden können. Diese Immobilie ist somit eine außergewöhnliche Chance für Investoren.
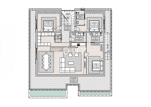
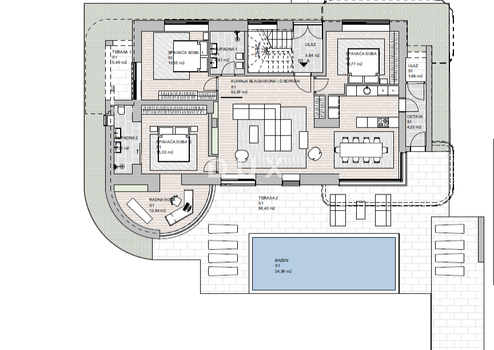
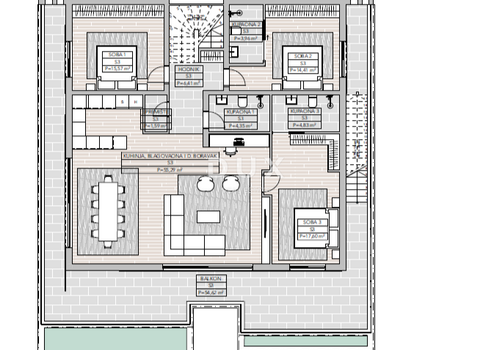
Gebäude A hat eine Fläche von 602,96 m² und besteht aus drei Wohnungen: Wohnung S1 im Erdgeschoss mit einer Gesamtfläche von 243,16 m², Wohnung S2 im ersten Obergeschoss mit einer Gesamtfläche von 179,28 m² und Wohnung S3 im zweiten Obergeschoss mit einer Gesamtfläche von 180,52 m².
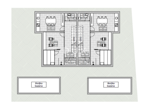
Gebäude B hat eine Fläche von 768,6 m² und besteht aus fünf Wohnungen sowie einer Dachterrasse. Im Untergeschoss befinden sich die Wohnungen S1 und S2 mit Gesamtflächen von 54,85 m² bzw. 54,82 m². Im Erdgeschoss des Gebäudes befinden sich zwei Wohnungen mit einer Gesamtfläche von 123,54 m² bzw. 123,74 m². Ebenso befinden sich im ersten Obergeschoss zwei Wohnungen mit einer Gesamtfläche von 84,49 m² bzw. 90,81 m². Im Dachgeschoss, genauer gesagt im zweiten Obergeschoss, befindet sich die Wohnung S3 mit einer Gesamtfläche von 178,63 m². Gebäude B verfügt außerdem über einen Dachpool und eine Terrasse mit einer Gesamtfläche von 57,72 m².
Gebäude C hat eine Fläche von 820,69 m² und besteht aus fünf Wohnungen und einer Dachterrasse. Im Untergeschoss befinden sich die Wohnungen S1 und S2 mit einer Gesamtfläche von 54,85 m² bzw. 54,82 m². Im Erdgeschoss befinden sich zwei Wohnungen mit einer Gesamtfläche von 123,97 m² bzw. 121,93 m². Ebenso befinden sich im ersten Obergeschoss zwei Wohnungen mit einer Gesamtfläche von 84,46 m² bzw. 90,81 m². Im obersten Stockwerk des Gebäudes, genauer gesagt im zweiten Obergeschoss, befindet sich die Wohnung S3 mit einer Gesamtfläche von 189,11 m². Gebäude C verfügt außerdem über einen Dachpool und eine Terrasse mit einer Gesamtfläche von 57,72 m².
Das Grundstück wird mit vorbereiteten Konzeptentwürfen verkauft. Der zukünftige Investor muss die Haupt- und Detailpläne erstellen und einen Bauantrag stellen.
Das Grundstück befindet sich in einer fantastischen, belebten Lage in der Nähe von Matulji und Opatija, in einer gepflegten und ruhigen Umgebung, umgeben von Grünflächen und hochwertiger, neuerer Bebauung. Dies verleiht ihm zusätzlichen Wert und langfristige Investitionssicherheit.
Die gesamte notwendige Infrastruktur befindet sich in unmittelbarer Nähe des Grundstücks, und die Lage ermöglicht eine schnelle und einfache Anbindung an Opatija, Rijeka und die Hauptverkehrsstraßen.
Das Projektkonzept sieht moderne Architektur, Privatsphäre, Außenbereiche und Swimmingpools vor und macht diese Investition daher äußerst attraktiv für den Wohn- oder Ferienvermietungsmarkt.
Um einen Besichtigungstermin zu vereinbaren, kontaktieren Sie einen unserer vertrauenswürdigen Makler – eine Beratung auf Deutsch ist möglich.
Sehr geehrte Kunden, die Maklerprovision richtet sich nach unseren Allgemeinen Geschäftsbedingungen.
www.dux-nekretnine.hr/opci-uvjeti-poslovanja
ID CODE: 46376
In DUX bieten wir Ihnen eine erstklassige Gelegenheit: ein Baugrundstück, auf dem drei Wohngebäude (A, B und C) mit insgesamt 13 exklusiven Wohnungen errichtet werden können. Diese Immobilie ist somit eine außergewöhnliche Chance für Investoren.
Gebäude A hat eine Fläche von 602,96 m² und besteht aus drei Wohnungen: Wohnung S1 im Erdgeschoss mit einer Gesamtfläche von 243,16 m², Wohnung S2 im ersten Obergeschoss mit einer Gesamtfläche von 179,28 m² und Wohnung S3 im zweiten Obergeschoss mit einer Gesamtfläche von 180,52 m².
Gebäude B hat eine Fläche von 768,6 m² und besteht aus fünf Wohnungen sowie einer Dachterrasse. Im Untergeschoss befinden sich die Wohnungen S1 und S2 mit Gesamtflächen von 54,85 m² bzw. 54,82 m². Im Erdgeschoss des Gebäudes befinden sich zwei Wohnungen mit einer Gesamtfläche von 123,54 m² bzw. 123,74 m². Ebenso befinden sich im ersten Obergeschoss zwei Wohnungen mit einer Gesamtfläche von 84,49 m² bzw. 90,81 m². Im Dachgeschoss, genauer gesagt im zweiten Obergeschoss, befindet sich die Wohnung S3 mit einer Gesamtfläche von 178,63 m². Gebäude B verfügt außerdem über einen Dachpool und eine Terrasse mit einer Gesamtfläche von 57,72 m².
Gebäude C hat eine Fläche von 820,69 m² und besteht aus fünf Wohnungen und einer Dachterrasse. Im Untergeschoss befinden sich die Wohnungen S1 und S2 mit einer Gesamtfläche von 54,85 m² bzw. 54,82 m². Im Erdgeschoss befinden sich zwei Wohnungen mit einer Gesamtfläche von 123,97 m² bzw. 121,93 m². Ebenso befinden sich im ersten Obergeschoss zwei Wohnungen mit einer Gesamtfläche von 84,46 m² bzw. 90,81 m². Im obersten Stockwerk des Gebäudes, genauer gesagt im zweiten Obergeschoss, befindet sich die Wohnung S3 mit einer Gesamtfläche von 189,11 m². Gebäude C verfügt außerdem über einen Dachpool und eine Terrasse mit einer Gesamtfläche von 57,72 m².
Das Grundstück wird mit vorbereiteten Konzeptentwürfen verkauft. Der zukünftige Investor muss die Haupt- und Detailpläne erstellen und einen Bauantrag stellen.
Das Grundstück befindet sich in einer fantastischen, belebten Lage in der Nähe von Matulji und Opatija, in einer gepflegten und ruhigen Umgebung, umgeben von Grünflächen und hochwertiger, neuerer Bebauung. Dies verleiht ihm zusätzlichen Wert und langfristige Investitionssicherheit.
Die gesamte notwendige Infrastruktur befindet sich in unmittelbarer Nähe des Grundstücks, und die Lage ermöglicht eine schnelle und einfache Anbindung an Opatija, Rijeka und die Hauptverkehrsstraßen.
Das Projektkonzept sieht moderne Architektur, Privatsphäre, Außenbereiche und Swimmingpools vor und macht diese Investition daher äußerst attraktiv für den Wohn- oder Ferienvermietungsmarkt.
Um einen Besichtigungstermin zu vereinbaren, kontaktieren Sie einen unserer vertrauenswürdigen Makler – eine Beratung auf Deutsch ist möglich.
Sehr geehrte Kunden, die Maklerprovision richtet sich nach unseren Allgemeinen Geschäftsbedingungen.
www.dux-nekretnine.hr/opci-uvjeti-poslovanja
ID CODE: 46376
Ausstattungsmerkmale
| Anzahl der Etagen im Haus | 0 |
Karte wird geladen...
Objektstandort
51211 Matulji
- Kvarner Region [Primorsko-Goranska]
Kontaktanfrage senden
Über den Anbieter
DUX Nekretnine d.o.o.
Tizianova
51000 Rijeka
Kontakt
| Telefon | +385 91 480 8808 |
| Mobil | +385 91 480 8808 |
Ansprechpartner/in
Marko Šutanovac