IČIĆI, POLJANE - Doppelhaushälfte - Baubeginn 225 m² mit Panoramablick aufs Meer + Fläche 620 m²
650.000 €
Kaufpreis
10
Zimmer
immobilien.de Nr.: 9522396
Objektnummer: 46177
Kaufpreis
| Kaufpreis | 650.000 € |
Wohnfläche, Grundstück & Bausubstanz
| Gesamtfläche | 225 m² |
| Grundstücksfläche | 620 m² |
| Zimmer | 10 |
| Verfügbar ab | keine Angabe |
Beschreibung der Immobilie
IČIĆI, POLJANE – Doppelhaushälfte – Baubeginn, 225 m² Wohnfläche mit Panoramablick aufs Meer + 620 m² Grundstück
Diese Doppelhaushälfte liegt 1,2 km Luftlinie vom Meer entfernt und bietet einen unverbauten Panoramablick aufs Meer sowie eine Südausrichtung.
Das Haus besteht aus Keller, Erdgeschoss, Obergeschoss und Dachgeschoss, die durch eine Innentreppe miteinander verbunden sind:
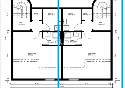
Keller:
Hier befinden sich ein Heizraum, ein großes Badezimmer, eine Waschküche und ein großer Raum, der als Wellnessbereich, Fitnessraum, Kinderspielzimmer o. Ä. genutzt werden kann.
Erdgeschoss:
Hier befinden sich eine Eingangshalle, ein Wohnzimmer, ein Esszimmer, eine Küche, ein Gäste-WC, ein Schlafzimmer, ein Ankleidezimmer, ein Badezimmer und eine überdachte Terrasse.
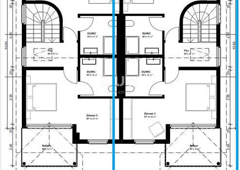
Obergeschoss:
Hier befinden sich ein Flur, zwei Schlafzimmer, zwei Badezimmer, ein Ankleidezimmer und eine überdachte Terrasse.
DACHGESCHOSS:
Es besteht aus einem größeren Raum, der nach den Wünschen des zukünftigen Eigentümers gestaltet werden kann.
Das Haus wird in der Ausführung „High Roch Bau“ verkauft:
- Alle Fenster (inkl. elektrischer Jalousien) und Außentüren sind eingebaut.
- Die Fassade ist 10 cm dick verputzt.
- Fußbodenheizung – alle Installationen sind abgeschlossen, inklusive Außengerät und Warmwasserbereiter.
- Die Wände sind komplett geglättet – Sie müssen nur noch die gewünschte Farbe auswählen und streichen.
- Alle notwendigen Elektro-, Wasser- und Abwasserinstallationen in Böden und Wänden sind installiert (Fußbodenheizung, Klimaanlage, Wasser- und Abwasserleitungen, Koch- und Sanitäreinrichtungen, Steckdosen etc.).
- Alle Böden, Untergründe innen und außen sowie die Abdichtung sind fertiggestellt. Sie müssen nur noch die Fliesen und das Parkett auswählen und verlegen.
Das Haus befindet sich in ruhiger Lage direkt an der Straße.
Das Anwesen ist sauber und gepflegt.
Das Haus bietet einen atemberaubenden Panoramablick auf das Meer, die gesamte Kvarner-Bucht und die vorgelagerten Inseln – sogar vom Erdgeschoss aus!
Das Anwesen liegt 1,2 km Luftlinie vom Meer entfernt, mit dem Auto sind es ca. 3,4 km (ca. 7 Minuten).
Eine hervorragende Immobilie für Familien, aber auch ideal als Kapitalanlage im Tourismusbereich.
IMMOBILIE IN AUSGEZEICHNETER UND EINZIGARTIGER LAGE MIT GROSSEM POTENZIAL!!!
IČIĆI: Ičići ist ein kleiner Touristenort mit ca. 800 Einwohnern an der nördlichen Adria in der Kvarner-Bucht. Der Ort liegt 5 km von Opatija und 15 km von Rijeka entfernt. Er befindet sich am Fuße des 1401 m hohen Učka-Gebirges. Die Umgebung wurde aufgrund ihrer Einzigartigkeit und natürlichen Schönheit zum Naturpark erklärt. Die Bevölkerung lebt hauptsächlich vom Tourismus und Gastgewerbe. Dank seiner günstigen Lage hat sich Ičići im Laufe der Jahre zu einem echten Touristenort mit vielfältigen Angeboten entwickelt. Neben einem reichhaltigen gastronomischen Angebot bietet der Ort die Möglichkeit, verschiedenen Sportarten nachzugehen, Ausflüge zu unternehmen und das Nachtleben zu genießen. Von Ičići aus hat man einen wunderschönen Blick auf die beiden größten kroatischen Inseln Krk und Cres, die man auch mit dem Boot erreichen kann. Der Ort ist besonders für seinen hervorragend ausgestatteten ACI-Yachthafen bekannt. Dank der vielfältigen Unterkünfte (Hotels, Apartments, Campingplätze) und Sport- und Freizeitmöglichkeiten (Tennisplätze, Wassersport, Segeln usw.) hat sich der Wassertourismus hier prächtig entwickelt. Auf dem Weg von Ičići nach Učka kommt man an dem kleinen mittelalterlichen Städtchen Veprinac vorbei, das über ein eigenes, auf das 16. Jahrhundert zurückgehendes Gesetz verfügt. Ganz in der Nähe befindet sich der Campingplatz Ičići, der strandnah und unweit der Tennisplätze liegt. Die Hauptattraktion von Ičići ist zweifellos der Strand. Der Strand liegt mitten im Ort und besteht aus einem betonierten und einem sandigen Abschnitt. Jedes Jahr wird in die Gestaltung des Strandes investiert, weshalb er Jahr für Jahr mit der Blauen Flagge ausgezeichnet wird. Der Eintritt ist frei.
Der Strand grenzt an einer Seite an die ACI Marina, während sich auf der anderen Seite ein kleinerer Hafen befindet, der seit der Gründung von Ičići existiert und sich parallel zum Ort entwickelt hat. Dieser Hafen ist für kleinere Boote geeignet und erinnert daran, dass Ičići ein Küstenort ist. Besonders hervorzuheben ist, dass die berühmte Lungomare, eine 1885 von Kaiser Franz Joseph I. erbaute Küstenpromenade, durch Ičići führt. Diese wunderschön gestaltete Promenade ist 12 km lang und erstreckt sich von Volosko bis Lovran, wobei Ičići fast auf halber Strecke liegt. Sie ist abends dezent beleuchtet und bietet so die perfekte Kulisse für romantische Spaziergänge. Die Stadt Ičići ist durch Überland- und Stadtbusse mit anderen Städten verbunden.
Die sogenannten Fischerfeste sind besonders in Küstenstädten bekannt und finden in den Sommermonaten statt. Auch Ičići hat seine eigenen Feste, über die Einheimische und Touristen einige Tage im Voraus durch zahlreiche Plakate informiert werden.
OPATIJA:
Opatija, eine wunderschöne Küstenstadt an der Adria, ist ein bekanntes Reiseziel für Touristen aus aller Welt. Die Stadt liegt am Fuße des Učka-Gebirges, umgeben von herrlicher Natur. Immobilien in Opatija bieten einen unvergleichlichen Blick auf das Meer und die umliegenden Inseln Krk und Cres. Opatija ist von charmanten kleinen Städten mit alten Häusern in engen, geschichtsträchtigen Gassen umgeben. Die Straßen von Opatija sind geprägt von Immobilien mit besonderer Architektur und Villen aus der Habsburgerzeit. Eine große Auswahl an Stränden, kristallklares Meer und vielfältige touristische Angebote machen Opatija zu einem perfekten Reiseziel, das auch von den Nachbarländern als hervorragende Investitionsmöglichkeit anerkannt wird. Die Immobilienpreise in dieser Region steigen, die Vermietungsquote ist ausgezeichnet, was zu einer Rendite von 5 % bis 10 % geführt und ausländische Investoren angezogen hat.
Sehr geehrte Kunden, die Maklerprovision wird gemäß den Allgemeinen Geschäftsbedingungen berechnet:
www.dux-nekretnine.hr/opci-uvjeti-poslovanja
Sehr geehrte potenzielle Käufer, Mieter und Pächter,
die Besichtigung der Immobilie, die Sie interessiert, ist ausschließlich nach Unterzeichnung eines Maklervertrags möglich. Dies dient dem Schutz des Eigentümers vor unbefugten Besuchen und entspricht dem Datenschutzgesetz und dem Maklergesetz. Bei der Besichtigung jeder Immobilie ist der potenzielle Käufer/Mieter/Pächter verpflichtet, einen Maklervertrag auszufüllen und zu unterzeichnen, der Folgendes regelt:
- Grundlegende Informationen zum potenziellen Käufer/Mieter/Pächter
- Grundlegende Informationen zum Maklerbüro
- Höhe der Maklerprovision
Die Maklerprovision für den Käufer beträgt 3 % (+ 25 % MwSt.) des vereinbarten Kaufpreises.
Die Maklerprovision für den Pächter beträgt eine Monatsmiete (+ 25 % MwSt.).
ID CODE: 46177
Diese Doppelhaushälfte liegt 1,2 km Luftlinie vom Meer entfernt und bietet einen unverbauten Panoramablick aufs Meer sowie eine Südausrichtung.
Das Haus besteht aus Keller, Erdgeschoss, Obergeschoss und Dachgeschoss, die durch eine Innentreppe miteinander verbunden sind:
Keller:
Hier befinden sich ein Heizraum, ein großes Badezimmer, eine Waschküche und ein großer Raum, der als Wellnessbereich, Fitnessraum, Kinderspielzimmer o. Ä. genutzt werden kann.
Erdgeschoss:
Hier befinden sich eine Eingangshalle, ein Wohnzimmer, ein Esszimmer, eine Küche, ein Gäste-WC, ein Schlafzimmer, ein Ankleidezimmer, ein Badezimmer und eine überdachte Terrasse.
Obergeschoss:
Hier befinden sich ein Flur, zwei Schlafzimmer, zwei Badezimmer, ein Ankleidezimmer und eine überdachte Terrasse.
DACHGESCHOSS:
Es besteht aus einem größeren Raum, der nach den Wünschen des zukünftigen Eigentümers gestaltet werden kann.
Das Haus wird in der Ausführung „High Roch Bau“ verkauft:
- Alle Fenster (inkl. elektrischer Jalousien) und Außentüren sind eingebaut.
- Die Fassade ist 10 cm dick verputzt.
- Fußbodenheizung – alle Installationen sind abgeschlossen, inklusive Außengerät und Warmwasserbereiter.
- Die Wände sind komplett geglättet – Sie müssen nur noch die gewünschte Farbe auswählen und streichen.
- Alle notwendigen Elektro-, Wasser- und Abwasserinstallationen in Böden und Wänden sind installiert (Fußbodenheizung, Klimaanlage, Wasser- und Abwasserleitungen, Koch- und Sanitäreinrichtungen, Steckdosen etc.).
- Alle Böden, Untergründe innen und außen sowie die Abdichtung sind fertiggestellt. Sie müssen nur noch die Fliesen und das Parkett auswählen und verlegen.
Das Haus befindet sich in ruhiger Lage direkt an der Straße.
Das Anwesen ist sauber und gepflegt.
Das Haus bietet einen atemberaubenden Panoramablick auf das Meer, die gesamte Kvarner-Bucht und die vorgelagerten Inseln – sogar vom Erdgeschoss aus!
Das Anwesen liegt 1,2 km Luftlinie vom Meer entfernt, mit dem Auto sind es ca. 3,4 km (ca. 7 Minuten).
Eine hervorragende Immobilie für Familien, aber auch ideal als Kapitalanlage im Tourismusbereich.
IMMOBILIE IN AUSGEZEICHNETER UND EINZIGARTIGER LAGE MIT GROSSEM POTENZIAL!!!
IČIĆI: Ičići ist ein kleiner Touristenort mit ca. 800 Einwohnern an der nördlichen Adria in der Kvarner-Bucht. Der Ort liegt 5 km von Opatija und 15 km von Rijeka entfernt. Er befindet sich am Fuße des 1401 m hohen Učka-Gebirges. Die Umgebung wurde aufgrund ihrer Einzigartigkeit und natürlichen Schönheit zum Naturpark erklärt. Die Bevölkerung lebt hauptsächlich vom Tourismus und Gastgewerbe. Dank seiner günstigen Lage hat sich Ičići im Laufe der Jahre zu einem echten Touristenort mit vielfältigen Angeboten entwickelt. Neben einem reichhaltigen gastronomischen Angebot bietet der Ort die Möglichkeit, verschiedenen Sportarten nachzugehen, Ausflüge zu unternehmen und das Nachtleben zu genießen. Von Ičići aus hat man einen wunderschönen Blick auf die beiden größten kroatischen Inseln Krk und Cres, die man auch mit dem Boot erreichen kann. Der Ort ist besonders für seinen hervorragend ausgestatteten ACI-Yachthafen bekannt. Dank der vielfältigen Unterkünfte (Hotels, Apartments, Campingplätze) und Sport- und Freizeitmöglichkeiten (Tennisplätze, Wassersport, Segeln usw.) hat sich der Wassertourismus hier prächtig entwickelt. Auf dem Weg von Ičići nach Učka kommt man an dem kleinen mittelalterlichen Städtchen Veprinac vorbei, das über ein eigenes, auf das 16. Jahrhundert zurückgehendes Gesetz verfügt. Ganz in der Nähe befindet sich der Campingplatz Ičići, der strandnah und unweit der Tennisplätze liegt. Die Hauptattraktion von Ičići ist zweifellos der Strand. Der Strand liegt mitten im Ort und besteht aus einem betonierten und einem sandigen Abschnitt. Jedes Jahr wird in die Gestaltung des Strandes investiert, weshalb er Jahr für Jahr mit der Blauen Flagge ausgezeichnet wird. Der Eintritt ist frei.
Der Strand grenzt an einer Seite an die ACI Marina, während sich auf der anderen Seite ein kleinerer Hafen befindet, der seit der Gründung von Ičići existiert und sich parallel zum Ort entwickelt hat. Dieser Hafen ist für kleinere Boote geeignet und erinnert daran, dass Ičići ein Küstenort ist. Besonders hervorzuheben ist, dass die berühmte Lungomare, eine 1885 von Kaiser Franz Joseph I. erbaute Küstenpromenade, durch Ičići führt. Diese wunderschön gestaltete Promenade ist 12 km lang und erstreckt sich von Volosko bis Lovran, wobei Ičići fast auf halber Strecke liegt. Sie ist abends dezent beleuchtet und bietet so die perfekte Kulisse für romantische Spaziergänge. Die Stadt Ičići ist durch Überland- und Stadtbusse mit anderen Städten verbunden.
Die sogenannten Fischerfeste sind besonders in Küstenstädten bekannt und finden in den Sommermonaten statt. Auch Ičići hat seine eigenen Feste, über die Einheimische und Touristen einige Tage im Voraus durch zahlreiche Plakate informiert werden.
OPATIJA:
Opatija, eine wunderschöne Küstenstadt an der Adria, ist ein bekanntes Reiseziel für Touristen aus aller Welt. Die Stadt liegt am Fuße des Učka-Gebirges, umgeben von herrlicher Natur. Immobilien in Opatija bieten einen unvergleichlichen Blick auf das Meer und die umliegenden Inseln Krk und Cres. Opatija ist von charmanten kleinen Städten mit alten Häusern in engen, geschichtsträchtigen Gassen umgeben. Die Straßen von Opatija sind geprägt von Immobilien mit besonderer Architektur und Villen aus der Habsburgerzeit. Eine große Auswahl an Stränden, kristallklares Meer und vielfältige touristische Angebote machen Opatija zu einem perfekten Reiseziel, das auch von den Nachbarländern als hervorragende Investitionsmöglichkeit anerkannt wird. Die Immobilienpreise in dieser Region steigen, die Vermietungsquote ist ausgezeichnet, was zu einer Rendite von 5 % bis 10 % geführt und ausländische Investoren angezogen hat.
Sehr geehrte Kunden, die Maklerprovision wird gemäß den Allgemeinen Geschäftsbedingungen berechnet:
www.dux-nekretnine.hr/opci-uvjeti-poslovanja
Sehr geehrte potenzielle Käufer, Mieter und Pächter,
die Besichtigung der Immobilie, die Sie interessiert, ist ausschließlich nach Unterzeichnung eines Maklervertrags möglich. Dies dient dem Schutz des Eigentümers vor unbefugten Besuchen und entspricht dem Datenschutzgesetz und dem Maklergesetz. Bei der Besichtigung jeder Immobilie ist der potenzielle Käufer/Mieter/Pächter verpflichtet, einen Maklervertrag auszufüllen und zu unterzeichnen, der Folgendes regelt:
- Grundlegende Informationen zum potenziellen Käufer/Mieter/Pächter
- Grundlegende Informationen zum Maklerbüro
- Höhe der Maklerprovision
Die Maklerprovision für den Käufer beträgt 3 % (+ 25 % MwSt.) des vereinbarten Kaufpreises.
Die Maklerprovision für den Pächter beträgt eine Monatsmiete (+ 25 % MwSt.).
ID CODE: 46177
Ausstattungsmerkmale
| Anzahl der Etagen im Haus | 2 |
| Bad | 3 |
Karte wird geladen...
Objektstandort
51410 Opatija - Okolica
- Kvarner Region [Primorsko-Goranska]
Kontaktanfrage senden
Über den Anbieter
DUX Nekretnine d.o.o.
Tizianova
51000 Rijeka
Kontakt
| Telefon | +385 91 480 8808 |
| Mobil | +385 91 480 8808 |
Ansprechpartner/in
Patrik Hrštić