Dugo Selo - Zapad, Dugo Selo, Reihenhaus in ruhiger Lage, 116m2
270.000 €
Kaufpreis
4
Zimmer
immobilien.de Nr.: 9522337
Objektnummer: 3116
Kaufpreis
| Kaufpreis | 270.000 € |
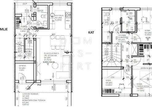
Wohnfläche, Grundstück & Bausubstanz
| Gesamtfläche | 116 m² |
| Zimmer | 4 |
| Baujahr | 2026 |
| Verfügbar ab | keine Angabe |
Beschreibung der Immobilie
ID CODE: 3116
Ausstattungsmerkmale
| Anzahl der Etagen im Haus | 0 |
| Bad | 2 |
Karte wird geladen...
Objektstandort
Dugo Selo
- Zagreb (Region) [Zagrebacka]
Kontaktanfrage senden
Über den Anbieter
Dom Ekspert d.o.o.
Varazdinska cesta 111
10360 Sesvete
Kontakt
| Telefon | +385 1 201 3007 |
| Mobil | +385 99 360 1634 |
Ansprechpartner/in
Snježana Čabraja