Produktionshalle mit einem Portalkran auf einem großem Grundstück
immobilien.de Nr.: 9520764
Objektnummer: 436887
Kaufpreis
| Kaufpreis | Auf Anfrage |
| Maklerprovision | keine Provision, courtagefrei |
Wohnfläche, Grundstück & Bausubstanz
| Gesamtfläche | 165.770.000 m² |
| Freifläche | 165.769.475 m² |
| Grundstücksfläche | 165.770.000 m² |
| Baujahr | 2025 |
| Verfügbar ab | sofort |
| Zustand | Rohbau |
Beschreibung der Immobilie
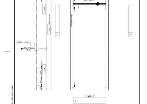
Eine Produktionshalle, Rohbau:
•35 m x 15 m x 5 m
•Dachneigung 20 Grad.
•Ein Portalkran mit einer Tragfähigkeit von 3,2 t (Zone 2) bereits montiert.
•Seitenstützen sowie Dachträger aus Doppel-T-Trägern und Fachwerken gefertigt.
•Stahlkonstruktion aus geschweißten Hochleistungsstahlelementen
•KORROSIONSSCHUTZ: Stahlkonstruktion mit Polyurethanfarbe gestrichen. Stärke der Farbschicht bis zu 100 Mikrometer.
•Feuerverzinkte Dachpfetten aus hochfestem Stahlprofil
•Wand-Sandwichpaneele mit PIR-Polyurethanfüllung
•Isolierungsstärke 120 mm
•Feuerwiderstand NRO / EI 15
•Dachrinnen und Fallrohre aus beschichtetem Stahl, Rinnenmaß 150 mm, Fallrohr 100 mm
•2 Segmenttore mit einer Breite von 4,00 m x 4,00 m. Hergestellt aus Sandwichplatten mit einer Stärke von 45 mm mit einem Kern aus schwer entflammbarer Polyurethanschaum. Die äußeren Verkleidungen des Segments bestehen aus feuerverzinktem und lackiertem Blech.
•2 Vollstahl-Einschlagtüren mit einem Flügel Breite 0,9 m x 2,0 m.
•Firstlicht-Dachkuppel, kuppelförmig mit einer Breite von 2 m und einer Länge von 25 m (Polycarbonat 16 mm).
•35 m x 15 m x 5 m
•Dachneigung 20 Grad.
•Ein Portalkran mit einer Tragfähigkeit von 3,2 t (Zone 2) bereits montiert.
•Seitenstützen sowie Dachträger aus Doppel-T-Trägern und Fachwerken gefertigt.
•Stahlkonstruktion aus geschweißten Hochleistungsstahlelementen
•KORROSIONSSCHUTZ: Stahlkonstruktion mit Polyurethanfarbe gestrichen. Stärke der Farbschicht bis zu 100 Mikrometer.
•Feuerverzinkte Dachpfetten aus hochfestem Stahlprofil
•Wand-Sandwichpaneele mit PIR-Polyurethanfüllung
•Isolierungsstärke 120 mm
•Feuerwiderstand NRO / EI 15
•Dachrinnen und Fallrohre aus beschichtetem Stahl, Rinnenmaß 150 mm, Fallrohr 100 mm
•2 Segmenttore mit einer Breite von 4,00 m x 4,00 m. Hergestellt aus Sandwichplatten mit einer Stärke von 45 mm mit einem Kern aus schwer entflammbarer Polyurethanschaum. Die äußeren Verkleidungen des Segments bestehen aus feuerverzinktem und lackiertem Blech.
•2 Vollstahl-Einschlagtüren mit einem Flügel Breite 0,9 m x 2,0 m.
•Firstlicht-Dachkuppel, kuppelförmig mit einer Breite von 2 m und einer Länge von 25 m (Polycarbonat 16 mm).
Ausstattungsmerkmale
| Anzahl der Etagen im Haus | 1 |
| Inserat befindet sich im Stockwerk | 0 |
Bemerkungen:
Portalkran Firma ABUS, montiert, Zustand Neu
Sonstige Informationen
Heizungsart: Sonstiges (s. Text)
ohne-makler (OM) ist weder Anbieter noch Vermittler der Immobilie. OM betreibt eine Plattform für Immobilieneigentümer, die unter anderem die gleichzeitige Veröffentlichung einzelner Inserate auf mehreren Immobilienportalen ermöglicht. Die Inhalte dieser Inserate werden ausschließlich von Dritten verantwortet. Für die Richtigkeit, Vollständigkeit oder Rechtmäßigkeit der Angaben übernimmt OM keine Haftung. Hinweise auf mögliche Rechtsverstöße können jederzeit gemeldet werden und werden nach Prüfung umgehend bearbeitet.
ohne-makler (OM) ist weder Anbieter noch Vermittler der Immobilie. OM betreibt eine Plattform für Immobilieneigentümer, die unter anderem die gleichzeitige Veröffentlichung einzelner Inserate auf mehreren Immobilienportalen ermöglicht. Die Inhalte dieser Inserate werden ausschließlich von Dritten verantwortet. Für die Richtigkeit, Vollständigkeit oder Rechtmäßigkeit der Angaben übernimmt OM keine Haftung. Hinweise auf mögliche Rechtsverstöße können jederzeit gemeldet werden und werden nach Prüfung umgehend bearbeitet.
Karte wird geladen...
Objektstandort
74-204 Kozielice
- Westpommern [Zachodniopomorskie]
Lage & Infrastruktur
Objektstandort
74-204 Kozielice
- Westpommern [Zachodniopomorskie]
Das Grundstück mit einer Fläche von 1,6577 ha in der Nähe des Knotens Pyrzyce und Kozielice. Bei Bedarf kann das Grundstück auch geteilt werden.
Kontaktanfrage senden
Über den Anbieter
OM PropTech GmbH
Humboldtstraße 25a
21509 Glinde
Kontakt
| Telefon | - |
| Fax | - |
| Website | www.ohne-makler.net |
Ansprechpartner/in
Angebot vom Eigentümer