BRODARICA – NEUBAU, 1-ZIMMER-WOHNUNG, ZWEI PARKPLÄTZE, S1
190.000 €
Kaufpreis
2
Zimmer
immobilien.de Nr.: 9509434
Objektnummer: 473
Kaufpreis
| Kaufpreis | 190.000 € |
Wohnfläche, Grundstück & Bausubstanz
| Gesamtfläche | 63 m² |
| Zimmer | 2 |
| Baujahr | 2026 |
| Verfügbar ab | keine Angabe |
Beschreibung der Immobilie
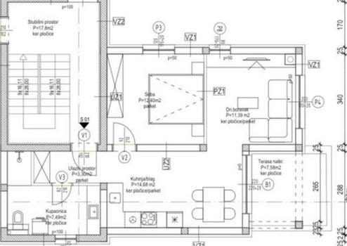
Die Wohnung S1 befindet sich im Erdgeschoss eines kleineren Wohngebäudes mit insgesamt fünf Wohnungen, in ruhiger Lage in Brodarica bei Šibenik. Die Lage eignet sich sowohl für dauerhaftes Wohnen als auch als Ferienimmobilie oder Investition zur touristischen Vermietung.
Die Wohnung besteht aus:
Eingangsbereich (3,30 m²)
Küche mit Essbereich (14,68 m²)
Wohnzimmer (11,39 m²)
Badezimmer (7,49 m²)
Schlafzimmer (12,40 m²)
überdachte Terrasse (7,58 m²)
Im Untergeschoss des Gebäudes befindet sich ein Abstellraum mit einer Fläche von 8,05 m², der über ein Fenster verfügt. Zur Wohnung gehören außerdem zwei Außenstellplätze.
AUSSTATTUNG UND BAUQUALITÄT
elektrische Rollläden an allen Öffnungen
Sanitärausstattung GSG Sanitari – Modell Like
Duscharmaturen Geda Rubinetterie – Modell Zoe
Unterputz-Spülkästen Grohe
italienische Keramikfliesen Armonie Ceramica
Fliesen Unika (Creme-Ton) im Badezimmer, in der Küche, im Essbereich, im Flur und auf der Terrasse
Fliesen Silverwood (Holzoptik) im Wohnzimmer und Schlafzimmer
Samsung Klimaanlagen
elektrische Fußbodenheizung im Badezimmer
jede Wohnung verfügt über einen eigenen Schornstein
Geplante Fertigstellung: Frühjahr Ordentliche und vollständige Dokumentation.
LAGE
Die Immobilie befindet sich in einem ruhigen Teil der Siedlung, unweit des bekannten Strandes Rezalište Beach. In der Nähe befinden sich alle wichtigen Einrichtungen für den Alltag, darunter Schule, Kindergarten sowie das Dalmare Shopping Center. Die Stadt Šibenik ist nur wenige Autominuten entfernt.
Für weitere Informationen oder zur Vereinbarung eines Besichtigungstermins stehen wir Ihnen gerne zur Verfügung.
ID CODE: 473
Die Wohnung besteht aus:
Eingangsbereich (3,30 m²)
Küche mit Essbereich (14,68 m²)
Wohnzimmer (11,39 m²)
Badezimmer (7,49 m²)
Schlafzimmer (12,40 m²)
überdachte Terrasse (7,58 m²)
Im Untergeschoss des Gebäudes befindet sich ein Abstellraum mit einer Fläche von 8,05 m², der über ein Fenster verfügt. Zur Wohnung gehören außerdem zwei Außenstellplätze.
AUSSTATTUNG UND BAUQUALITÄT
elektrische Rollläden an allen Öffnungen
Sanitärausstattung GSG Sanitari – Modell Like
Duscharmaturen Geda Rubinetterie – Modell Zoe
Unterputz-Spülkästen Grohe
italienische Keramikfliesen Armonie Ceramica
Fliesen Unika (Creme-Ton) im Badezimmer, in der Küche, im Essbereich, im Flur und auf der Terrasse
Fliesen Silverwood (Holzoptik) im Wohnzimmer und Schlafzimmer
Samsung Klimaanlagen
elektrische Fußbodenheizung im Badezimmer
jede Wohnung verfügt über einen eigenen Schornstein
Geplante Fertigstellung: Frühjahr Ordentliche und vollständige Dokumentation.
LAGE
Die Immobilie befindet sich in einem ruhigen Teil der Siedlung, unweit des bekannten Strandes Rezalište Beach. In der Nähe befinden sich alle wichtigen Einrichtungen für den Alltag, darunter Schule, Kindergarten sowie das Dalmare Shopping Center. Die Stadt Šibenik ist nur wenige Autominuten entfernt.
Für weitere Informationen oder zur Vereinbarung eines Besichtigungstermins stehen wir Ihnen gerne zur Verfügung.
ID CODE: 473
Ausstattungsmerkmale
| Anzahl der Etagen im Haus | 0 |
| Bad | 1 |
Karte wird geladen...
Objektstandort
22000 Šibenik - Okolica
- Dalmatien-Sibenik [Sibensko-Kninska]
Kontaktanfrage senden
Über den Anbieter
Nekretnine1 j.d.o.o.
Pomerio 27
51000 Rijeka
Kontakt
| Telefon | +385 95 714 8583 |
| Website | www.nekretnine1.hr |
Ansprechpartner/in
Nekretnine1.hr