Grundstück Jelenovac, Črnomerec, Vinogradska, 611m2
450.000 €
Kaufpreis
immobilien.de Nr.: 9509416
Objektnummer: 92
Kaufpreis
| Kaufpreis | 450.000 € |
Wohnfläche, Grundstück & Bausubstanz
| Gesamtfläche | 611 m² |
| Verfügbar ab | keine Angabe |
Beschreibung der Immobilie
ZAGREB – BAUGRUNDSTÜCK MIT PROJEKT
Im westlichen Teil von Zagreb wird ein Baugrundstück mit einer Gesamtfläche von 611 m² mit vorhandenem Projekt zum Verkauf angeboten.
Das Grundstück befindet sich in ruhiger und grüner Lage an einem Hang mit offenem Blick auf den Wald und bietet eine seltene Kombination aus urbaner Lage und natürlicher Umgebung. Die Nachbarschaft besteht aus neueren Wohngebäuden und Villen und bietet gleichzeitig Privatsphäre und eine direkte Verbindung zur Natur.
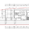
Gemäß dem bestehenden Projekt ist der Bau eines Wohngebäudes mit einer geplanten Bruttogeschossfläche von insgesamt 429,78 m² vorgesehen, verteilt auf mehrere Ebenen. Das Projekt umfasst ein Untergeschoss mit 70,07 m², ein Erdgeschoss mit 110,62 m², ein erstes Obergeschoss mit 110,62 m² sowie ein zurückgesetztes Dachgeschoss mit 82,43 m². Zusätzlich sind zwei Garagen mit einer Gesamtfläche von 56,04 m² geplant.
Die nach dem früheren Bebauungsplan der Stadt Zagreb erteilte Standortgenehmigung stellt einen großen Vorteil dar, da das Projekt nach den damals gültigen städtebaulichen Parametern realisiert werden kann und dem Investor eine schnellere Projektentwicklung ermöglicht.
Grundstücke mit bereits vorbereiteter Projektdokumentation sind auf dem Zagreber Markt äußerst selten und stellen eine ausgezeichnete Investitionsmöglichkeit dar.
Für weitere Informationen oder zur Vereinbarung eines Besichtigungstermins kontaktieren Sie mich gerne.
Marina Jovišić
Prostor & Co
Boutique Immobilienagentur
Individueller Ansatz. Lage. Emotion. Die Kunst des Wohnens.
ID CODE: 92
Im westlichen Teil von Zagreb wird ein Baugrundstück mit einer Gesamtfläche von 611 m² mit vorhandenem Projekt zum Verkauf angeboten.
Das Grundstück befindet sich in ruhiger und grüner Lage an einem Hang mit offenem Blick auf den Wald und bietet eine seltene Kombination aus urbaner Lage und natürlicher Umgebung. Die Nachbarschaft besteht aus neueren Wohngebäuden und Villen und bietet gleichzeitig Privatsphäre und eine direkte Verbindung zur Natur.
Gemäß dem bestehenden Projekt ist der Bau eines Wohngebäudes mit einer geplanten Bruttogeschossfläche von insgesamt 429,78 m² vorgesehen, verteilt auf mehrere Ebenen. Das Projekt umfasst ein Untergeschoss mit 70,07 m², ein Erdgeschoss mit 110,62 m², ein erstes Obergeschoss mit 110,62 m² sowie ein zurückgesetztes Dachgeschoss mit 82,43 m². Zusätzlich sind zwei Garagen mit einer Gesamtfläche von 56,04 m² geplant.
Die nach dem früheren Bebauungsplan der Stadt Zagreb erteilte Standortgenehmigung stellt einen großen Vorteil dar, da das Projekt nach den damals gültigen städtebaulichen Parametern realisiert werden kann und dem Investor eine schnellere Projektentwicklung ermöglicht.
Grundstücke mit bereits vorbereiteter Projektdokumentation sind auf dem Zagreber Markt äußerst selten und stellen eine ausgezeichnete Investitionsmöglichkeit dar.
Für weitere Informationen oder zur Vereinbarung eines Besichtigungstermins kontaktieren Sie mich gerne.
Marina Jovišić
Prostor & Co
Boutique Immobilienagentur
Individueller Ansatz. Lage. Emotion. Die Kunst des Wohnens.
ID CODE: 92
Ausstattungsmerkmale
| Anzahl der Etagen im Haus | 0 |
Karte wird geladen...
Objektstandort
10000 Črnomerec
- Zagreb (Stadt) [Grad Zagreb]
Kontaktanfrage senden
Über den Anbieter
Nekretnine1 j.d.o.o.
Pomerio 27
51000 Rijeka
Kontakt
| Telefon | +385 95 714 8583 |
| Website | www.nekretnine1.hr |
Ansprechpartner/in
Nekretnine1.hr