IHR UNGARN EXPERTE Verkauft eine schöne Etagenwohnung im Bezirk VII in Budapest
413.000 €
Kaufpreis
70 m²
Wohnfläche
3
Zimmer
immobilien.de Nr.: 9508863
Objektnummer: 16347#suwskN
Kaufpreis
| Kaufpreis | 413.000 € |
Wohnfläche, Grundstück & Bausubstanz
| Wohnfläche | 70 m² |
| Zimmer | 3 |
| Baujahr | 1960 |
| Verfügbar ab | Sofort |
| Zustand | Voll Saniert |
Beschreibung der Immobilie
Budapest, 7. Bezirk, Dohány Straße
Größe: 70 m2
Zustand: renoviert
Anzahl der Zimmer: 3
Aufzug: vorhanden
Komfort: Doppelkomfort
Heizung: Gasheizkessel
Aussicht: Straße
Klimaanlage: ja
Balkon: nein
Etage: 2
Beschreibung:
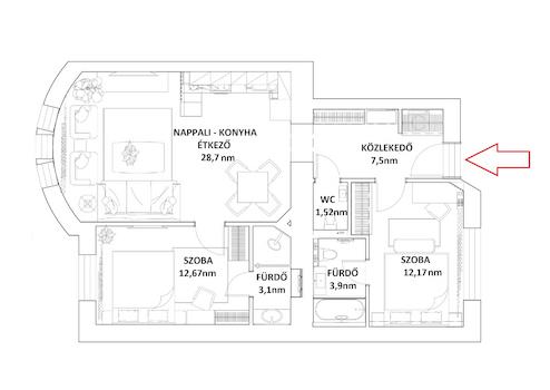
Im 7. Bezirk, in der Dohány Straße, steht eine 70 m² große Wohnung zum Verkauf, die derzeit komplett renoviert wird und aus einem Wohnzimmer, zwei Schlafzimmern, zwei Badezimmern und einem separaten WC besteht. Der Grundriss ist praktisch und gut nutzbar: Das Wohnzimmer mit offener Küche und Essbereich ist geräumig und dient als zentraler Raum, die beiden Schlafzimmer sind voneinander getrennt.
Die Wohnung verfügt über zwei vollwertige Badezimmer. Das eine Badezimmer ist mit einer Badewanne und einem WC ausgestattet, das andere mit einer Dusche, außerdem gibt es ein separates WC in der Immobilie. Im Wohnzimmer wird eine Klimaanlage eingebaut, die Fenster sind mit manuellen Rollläden ausgestattet. Die Heizung wird durch einen Gas-Zirkulator gewährleistet, die Wohnung ist mit einem Wasserzähler ausgestattet. Die gemeinsamen Kosten betragen 21.000 Ft.
Die Renovierung erfolgt nach den Plänen eines Innenarchitekten, sodass die Wohnung mit hochwertigen Bodenbelägen, Sanitäranlagen und Möbeln übergeben wird.
Preis: möbliert.
Die Wohnung befindet sich im inneren Erzsébetváros, innerhalb der Ringstraße, in der Dohány utca, in der Nähe des Blaha Lujza tér, neben der Akácfa utca. In der Nähe befinden sich zahlreiche Einkaufsmöglichkeiten, Cafés, Restaurants und kulturelle Einrichtungen, und die Verkehrsanbindung ist hervorragend: Straßenbahn-, Bus- und U-Bahn-Linien sind leicht zu erreichen, sodass jeder Punkt der Innenstadt schnell zu Fuß oder mit öffentlichen Verkehrsmitteln erreichbar ist und man auch ohne Auto bequem unterwegs sein kann.
WIR ARBEITEN MIT ZUVERLÄSSIGEN PARTNERN VOR ORT IN UNGARN ZUSAMMEN UND SIND IN DER LAGE EINE PROFESSIONELLE BETREUUNG VOM ERSTEN KONTAKT, ÜBER EINE AUSWAHL DER IMMOBILIE AUS EINEM BREITEN ANGEBOT, BIS HIN ZUM RECHTSSICHEREN KAUFVERTRAG UND DANACH ZU GEWÄHRLEISTEN.
UNSERE PARTNER VOR ORT IN UNGARN SPRECHEN UNGARISCH, DEUTSCH UND ENGLISCH
Wenn Sie irgendwelche Fragen über die Immobilie haben, rufen Sie uns gerne an. Fragen Sie uns, wir helfen Ihnen gerne weiter.
Größe: 70 m2
Zustand: renoviert
Anzahl der Zimmer: 3
Aufzug: vorhanden
Komfort: Doppelkomfort
Heizung: Gasheizkessel
Aussicht: Straße
Klimaanlage: ja
Balkon: nein
Etage: 2
Beschreibung:
Im 7. Bezirk, in der Dohány Straße, steht eine 70 m² große Wohnung zum Verkauf, die derzeit komplett renoviert wird und aus einem Wohnzimmer, zwei Schlafzimmern, zwei Badezimmern und einem separaten WC besteht. Der Grundriss ist praktisch und gut nutzbar: Das Wohnzimmer mit offener Küche und Essbereich ist geräumig und dient als zentraler Raum, die beiden Schlafzimmer sind voneinander getrennt.
Die Wohnung verfügt über zwei vollwertige Badezimmer. Das eine Badezimmer ist mit einer Badewanne und einem WC ausgestattet, das andere mit einer Dusche, außerdem gibt es ein separates WC in der Immobilie. Im Wohnzimmer wird eine Klimaanlage eingebaut, die Fenster sind mit manuellen Rollläden ausgestattet. Die Heizung wird durch einen Gas-Zirkulator gewährleistet, die Wohnung ist mit einem Wasserzähler ausgestattet. Die gemeinsamen Kosten betragen 21.000 Ft.
Die Renovierung erfolgt nach den Plänen eines Innenarchitekten, sodass die Wohnung mit hochwertigen Bodenbelägen, Sanitäranlagen und Möbeln übergeben wird.
Preis: möbliert.
Die Wohnung befindet sich im inneren Erzsébetváros, innerhalb der Ringstraße, in der Dohány utca, in der Nähe des Blaha Lujza tér, neben der Akácfa utca. In der Nähe befinden sich zahlreiche Einkaufsmöglichkeiten, Cafés, Restaurants und kulturelle Einrichtungen, und die Verkehrsanbindung ist hervorragend: Straßenbahn-, Bus- und U-Bahn-Linien sind leicht zu erreichen, sodass jeder Punkt der Innenstadt schnell zu Fuß oder mit öffentlichen Verkehrsmitteln erreichbar ist und man auch ohne Auto bequem unterwegs sein kann.
WIR ARBEITEN MIT ZUVERLÄSSIGEN PARTNERN VOR ORT IN UNGARN ZUSAMMEN UND SIND IN DER LAGE EINE PROFESSIONELLE BETREUUNG VOM ERSTEN KONTAKT, ÜBER EINE AUSWAHL DER IMMOBILIE AUS EINEM BREITEN ANGEBOT, BIS HIN ZUM RECHTSSICHEREN KAUFVERTRAG UND DANACH ZU GEWÄHRLEISTEN.
UNSERE PARTNER VOR ORT IN UNGARN SPRECHEN UNGARISCH, DEUTSCH UND ENGLISCH
Wenn Sie irgendwelche Fragen über die Immobilie haben, rufen Sie uns gerne an. Fragen Sie uns, wir helfen Ihnen gerne weiter.
Ausstattungsmerkmale
| Anzahl der Etagen im Haus | 4 |
| Inserat befindet sich im Stockwerk | 2 |
| Küche | Einbauküche |
| Bad | 2 |
| Bad | Dusche, Wanne, Fenster |
| Boden | Fliesen, Laminat |
| Fahrstuhl |
Budapest, 7. kerület, Dohány utca
Méret: 70 m2
Állapot: felújított
Szobaszám: 3
Lift: van
Komfort: duplakomfortos
Fűtés: gázkazán
Kilátás: utcai
Légkondicionált: igen
Erkély: nincs
Emelet: 2
Leírás:
VII. kerület Dohány utcában eladó egy 70 m²-es, teljes körű felújítás alatt álló lakás, amely nappaliból, két hálószobából, két fürdőszobából és külön WC-ből áll. Az alaprajz praktikus, jól használható: amerikai konyhás nappali - étkező tágas, központi térként szolgál, a két hálószoba pedig egymástól szeparáltan helyezkedik el.
A lakás két teljes értékű fürdőszobával rendelkezik. Az egyik fürdőszoba káddal és WC-vel felszerelt, a másik zuhanyzós kialakítású, emellett külön WC is található az ingatlanban. A nappaliban klíma kerül beépítésre, az ablakokon kézi redőnyök vannak. A fűtést gázcirkó biztosítja, a lakás vízórával felszerelt. A közös költség összege 21 000 Ft.
A felújítás lakberendezői tervek alapján készül, így minőségi burkolatokkal, szaniterekkel és bútorokkal kerül átadásra.
Ár: bútorozott állapotban.
A lakás a belső Erzsébetvárosban, a körúton belül helyezkedik el, a Dohány utcában, a Blaha Lujza tér közelségében, az Akácfa utca melletti részen. A közelben számos bevásárlási lehetőség, kávézó, étterem és kulturális intézmény található, a közlekedés pedig kiváló: villamos-, busz- és metróvonalak könnyen elérhetők, így a belváros bármely pontja gyorsan megközelíthető gyalogosan vagy tömegközlekedéssel, így autó nélkül is kényelmesen lehet közlekedni.
Méret: 70 m2
Állapot: felújított
Szobaszám: 3
Lift: van
Komfort: duplakomfortos
Fűtés: gázkazán
Kilátás: utcai
Légkondicionált: igen
Erkély: nincs
Emelet: 2
Leírás:
VII. kerület Dohány utcában eladó egy 70 m²-es, teljes körű felújítás alatt álló lakás, amely nappaliból, két hálószobából, két fürdőszobából és külön WC-ből áll. Az alaprajz praktikus, jól használható: amerikai konyhás nappali - étkező tágas, központi térként szolgál, a két hálószoba pedig egymástól szeparáltan helyezkedik el.
A lakás két teljes értékű fürdőszobával rendelkezik. Az egyik fürdőszoba káddal és WC-vel felszerelt, a másik zuhanyzós kialakítású, emellett külön WC is található az ingatlanban. A nappaliban klíma kerül beépítésre, az ablakokon kézi redőnyök vannak. A fűtést gázcirkó biztosítja, a lakás vízórával felszerelt. A közös költség összege 21 000 Ft.
A felújítás lakberendezői tervek alapján készül, így minőségi burkolatokkal, szaniterekkel és bútorokkal kerül átadásra.
Ár: bútorozott állapotban.
A lakás a belső Erzsébetvárosban, a körúton belül helyezkedik el, a Dohány utcában, a Blaha Lujza tér közelségében, az Akácfa utca melletti részen. A közelben számos bevásárlási lehetőség, kávézó, étterem és kulturális intézmény található, a közlekedés pedig kiváló: villamos-, busz- és metróvonalak könnyen elérhetők, így a belváros bármely pontja gyorsan megközelíthető gyalogosan vagy tömegközlekedéssel, így autó nélkül is kényelmesen lehet közlekedni.
Sonstige Informationen
Hinweis auf den Umrechnungskurs zwischen HUF (ungarischen Forint) und dem € (EUR)
Wir weisen darauf hin, dass wir die Kaufpreisangabe zum Zeitpunkt der Veröffentlichung des Angebotes von HUF (ungarischen Forint) in € (EUR) zum damaligen Wechselkurs umgerechnet haben.
Bitte beachten Sie deshalb, dass der Kaufpreis schwanken kann.
Es gilt der Kaufpreis zum aktuellen Umrechnungskurs bei Kaufpreisfälligkeit.
Rechtlicher Hinweis / Disclaimer
Wir bitten um Verständnis, dass wir nur vollständig ausgefüllte Emailanfragen mit Vornamen,
Namen, Anschrift, Telefonnummer und Emailadresse beantworten können.
Alle Daten und Fakten stammen vom Eigentümer des Objektes. Wir haben uns vor Ort von der
Übereinstimmung überzeugt. Trotz aller Gründlichkeit können wir für die Richtigkeit und
Vollständigkeit der Angaben keine Haftung übernehmen. Irrtum und Auslassung sowie
Zwischenverkauf und/oder Zwischenvermietung bleiben vorbehalten.
Eine Reservierung kann nur nach schriftlicher Vereinbarung in Absprache mit dem Makler und dem
Eigentümer erfolgen.
Disclaimer / Property offers
Please understand that we will only answer fully completed requests with name, address, telephone
number and email address.
Provided, neither Langer Immobilien GmbH & Co. KG, its officers or employees accept any
responsibility as to the accuracy of the information provided on either this or in any subsequent
communication.
We strongly recommend that each individual investor takes independent professional advice
concerning all aspects of any proposed purchase.
Langer Immobilien GmbH & Co. KG does not take any responsibility for any Professional or other
costs incurred by an investor.
The provision of the information contained in this E-Mail or any subsequent communication is no
indication or proof of Langer Immobilien GmbH & Co. KG’s legal appointment by the owner / vendor
of a proposed investment to market this opportunity exclusively or as one of several appointed
consultants.
Hauptsitz: Langer Immobilien GmbH & Co. KG, Weydingerstraße 14-16, 10178 Berlin - Mitte
Wir weisen darauf hin, dass wir die Kaufpreisangabe zum Zeitpunkt der Veröffentlichung des Angebotes von HUF (ungarischen Forint) in € (EUR) zum damaligen Wechselkurs umgerechnet haben.
Bitte beachten Sie deshalb, dass der Kaufpreis schwanken kann.
Es gilt der Kaufpreis zum aktuellen Umrechnungskurs bei Kaufpreisfälligkeit.
Rechtlicher Hinweis / Disclaimer
Wir bitten um Verständnis, dass wir nur vollständig ausgefüllte Emailanfragen mit Vornamen,
Namen, Anschrift, Telefonnummer und Emailadresse beantworten können.
Alle Daten und Fakten stammen vom Eigentümer des Objektes. Wir haben uns vor Ort von der
Übereinstimmung überzeugt. Trotz aller Gründlichkeit können wir für die Richtigkeit und
Vollständigkeit der Angaben keine Haftung übernehmen. Irrtum und Auslassung sowie
Zwischenverkauf und/oder Zwischenvermietung bleiben vorbehalten.
Eine Reservierung kann nur nach schriftlicher Vereinbarung in Absprache mit dem Makler und dem
Eigentümer erfolgen.
Disclaimer / Property offers
Please understand that we will only answer fully completed requests with name, address, telephone
number and email address.
Provided, neither Langer Immobilien GmbH & Co. KG, its officers or employees accept any
responsibility as to the accuracy of the information provided on either this or in any subsequent
communication.
We strongly recommend that each individual investor takes independent professional advice
concerning all aspects of any proposed purchase.
Langer Immobilien GmbH & Co. KG does not take any responsibility for any Professional or other
costs incurred by an investor.
The provision of the information contained in this E-Mail or any subsequent communication is no
indication or proof of Langer Immobilien GmbH & Co. KG’s legal appointment by the owner / vendor
of a proposed investment to market this opportunity exclusively or as one of several appointed
consultants.
Hauptsitz: Langer Immobilien GmbH & Co. KG, Weydingerstraße 14-16, 10178 Berlin - Mitte
Karte wird geladen...
Objektstandort
1070 Budapest VII. kerület
Lage & Infrastruktur
Objektstandort
1070 Budapest VII. kerület
Budapest VII. Sein traditioneller Name: Erzsébetváros. Im Jahr 2010 wurde dem Bezirk der Titel „Wertvolle Siedlung“ verliehen, einer der bedeutendsten, historisch und kulturell reichsten Bezirke von Pest. Dieser Bezirk ist ein Zentrum des jüdischen Erbes und des pulsierenden Nachtlebens mit einer dynamischen Mischung aus alten Gebäuden und modernem Stadtleben.
Die Geschichte des Bezirks ist eng mit der Vergangenheit der jüdischen Gemeinde Budapests verknüpft, da Erzsébetváros das berühmte jüdische Viertel der Stadt beherbergt. Der Bezirk wurde im 19. Jahrhundert gegründet und entwickelte sich um die Jahrhundertwende zu einem der am dichtesten besiedelten und multikulturellsten Teile von Pest. Die Dohány-Straßensynagoge, die größte Synagoge Europas, ist eines der bedeutendsten Gebäude des Bezirks . Während des Zweiten Weltkriegs wurde der Bezirk stark vom Holocaust betroffen, der Großteil der jüdischen Bevölkerung kam ums Leben oder wanderte aus.
21. Am häufigsten haben die florierende Unterhaltungsindustrie und das „Schöne“ den Bezirk berühmt gemacht. Sie arbeiten in verlassenen, teilweise renovierten Gebäuden. Das berühmteste davon ist Szimpla Kert, ein symbolträchtiger Ort der Ruinenkneipenkultur. Veranstaltung auf der Király utca und Gozsdu udvar hat sich zu einem Zentrum moderner Gastronomie und Unterhaltung mit vielen Restaurants, Bars und Cafés entwickelt.
Die Zusammensetzung der in Erzsébetváros lebenden Menschen ist vielfältig. Der Bezirk war ein traditionelles Wohngebiet, aber ab dem 21. Jahrhundert wurden viele Wohnungen aufgrund des Tourismusbooms zu kurzfristigen Wohngemeinschaften und viele Einheimische zogen weg.
Einer der Innenstadtbezirke der Pester Seite. Es befindet sich in der Király utca und Városligeti utca, in der Dózsa György út, in der Rákóczi út, in der Thököly utca, in der Raceny utca und auch in der Károly Körút. grenzt es ab.
Der Nagykörút verläuft durch ihn: Sein Abschnitt durch den Bezirk heißt Erzsébet körút. Der einfachste Weg, das Gebiet mit öffentlichen Verkehrsmitteln zu erreichen, sind die Straßenbahnlinien 4 und 6, die auf dem Nagykörút verkehren, sowie die U-Bahn M2, die am Rande des Bezirks verkehrt.
Hauptgerichte
Die lutherische Kirche in Fasori
Dob-Straße
Freizeitzentrum am Almássy-Platz am Almássy-Platz
Pfarrkirche Szent Erzsébet in Árpád-házi am Rózsák-Platz
Synagogen: Synagoge in der Dohány-Straße (neologisch), Synagoge in der Rumbach-Straße (Status quo), Synagoge in der Kazinczy-Straße (orthodox)
Gozsdu-Hof
Ungarisches Bad
Markthalle auf dem Klauzál-Platz
Madach Theater
Ungarisches Theater Pest (das Ensemble des ehemaligen Nationaltheaters, davor spielte auch das Ungarische Theater von Rákosi-Beöthy im Gebäude)
New Yorker Palast
Miksa-Róth-Gedenkhaus
Firewall-Gemälde:
Zwei Eichen – Ecke Klauzál utca und Wesselényi utca (polnisch-ungarische Freundschaft)
Die Geschichte des Bezirks ist eng mit der Vergangenheit der jüdischen Gemeinde Budapests verknüpft, da Erzsébetváros das berühmte jüdische Viertel der Stadt beherbergt. Der Bezirk wurde im 19. Jahrhundert gegründet und entwickelte sich um die Jahrhundertwende zu einem der am dichtesten besiedelten und multikulturellsten Teile von Pest. Die Dohány-Straßensynagoge, die größte Synagoge Europas, ist eines der bedeutendsten Gebäude des Bezirks . Während des Zweiten Weltkriegs wurde der Bezirk stark vom Holocaust betroffen, der Großteil der jüdischen Bevölkerung kam ums Leben oder wanderte aus.
21. Am häufigsten haben die florierende Unterhaltungsindustrie und das „Schöne“ den Bezirk berühmt gemacht. Sie arbeiten in verlassenen, teilweise renovierten Gebäuden. Das berühmteste davon ist Szimpla Kert, ein symbolträchtiger Ort der Ruinenkneipenkultur. Veranstaltung auf der Király utca und Gozsdu udvar hat sich zu einem Zentrum moderner Gastronomie und Unterhaltung mit vielen Restaurants, Bars und Cafés entwickelt.
Die Zusammensetzung der in Erzsébetváros lebenden Menschen ist vielfältig. Der Bezirk war ein traditionelles Wohngebiet, aber ab dem 21. Jahrhundert wurden viele Wohnungen aufgrund des Tourismusbooms zu kurzfristigen Wohngemeinschaften und viele Einheimische zogen weg.
Einer der Innenstadtbezirke der Pester Seite. Es befindet sich in der Király utca und Városligeti utca, in der Dózsa György út, in der Rákóczi út, in der Thököly utca, in der Raceny utca und auch in der Károly Körút. grenzt es ab.
Der Nagykörút verläuft durch ihn: Sein Abschnitt durch den Bezirk heißt Erzsébet körút. Der einfachste Weg, das Gebiet mit öffentlichen Verkehrsmitteln zu erreichen, sind die Straßenbahnlinien 4 und 6, die auf dem Nagykörút verkehren, sowie die U-Bahn M2, die am Rande des Bezirks verkehrt.
Hauptgerichte
Die lutherische Kirche in Fasori
Dob-Straße
Freizeitzentrum am Almássy-Platz am Almássy-Platz
Pfarrkirche Szent Erzsébet in Árpád-házi am Rózsák-Platz
Synagogen: Synagoge in der Dohány-Straße (neologisch), Synagoge in der Rumbach-Straße (Status quo), Synagoge in der Kazinczy-Straße (orthodox)
Gozsdu-Hof
Ungarisches Bad
Markthalle auf dem Klauzál-Platz
Madach Theater
Ungarisches Theater Pest (das Ensemble des ehemaligen Nationaltheaters, davor spielte auch das Ungarische Theater von Rákosi-Beöthy im Gebäude)
New Yorker Palast
Miksa-Róth-Gedenkhaus
Firewall-Gemälde:
Zwei Eichen – Ecke Klauzál utca und Wesselényi utca (polnisch-ungarische Freundschaft)
Kontaktanfrage senden
Über den Anbieter
Langer Immobilien GmbH & Co.KG
Weydingerstraße 14-16
10178 Berlin
Kontakt
| Telefon | +49 30 24009830 |
| Mobil | +49 163 7554200 |
| Website | www.langerimmobilien.de |
Ansprechpartner/in
Herrn Günther Langer