ISTRIEN, ROVINJ - Steinschönheit in der Nähe von Rovinj
550.000 €
Kaufpreis
6
Zimmer
immobilien.de Nr.: 9487440
Objektnummer: 42708
Kaufpreis
| Kaufpreis | 550.000 € |
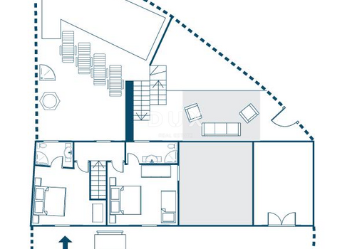
Wohnfläche, Grundstück & Bausubstanz
| Gesamtfläche | 220 m² |
| Grundstücksfläche | 378 m² |
| Zimmer | 6 |
| Letzte Modernisierung | 2013 |
| Verfügbar ab | keine Angabe |
Beschreibung der Immobilie
ISTRIEN, ROVINJ – Ein steinernes Juwel nahe Rovinj
Rovinj liegt an der Westküste Istriens. Zusammen mit Poreč bildet es das touristische Zentrum Istriens und zählt zu den attraktivsten Reisezielen an der Adria. Die Altstadt steht unter UNESCO-Schutz und ist eine ständige Inspirationsquelle für Romantiker und Künstler. Rovinj gehört zu den touristisch am besten erschlossenen Orten Kroatiens. Die Inselgruppe mit ihren 14 Inseln und 6 Steilküsten entlang der 67 Kilometer langen Küste ist ein geschütztes Naturerbe.
Die wunderschöne, zerklüftete Küste, das milde mediterrane Mikroklima, das exzellente gastronomische Angebot, die ganzjährigen Kulturveranstaltungen und die herzlichen Gastgeber machen diesen Ort zu einem magischen Ort, an dem Gäste Jahr für Jahr gerne wiederkommen.
In unmittelbarer Nähe, nur 10 Autominuten vom Zentrum Rovinjs entfernt, bieten wir Ihnen ein wunderschönes Steinhaus mit Swimmingpool – die perfekte Kombination aus Tradition und modernem Komfort! Charmantes Steinhaus mit authentisch mediterranem Flair in ruhiger Lage – ideal für Familien oder Urlauber.
Das Haus bietet auf 220 m² Wohnfläche eine voll ausgestattete Küche mit Essbereich, ein elegantes Wohnzimmer mit Kamin und ein Gäste-WC. Eine Steintreppe führt ins erste Obergeschoss mit zwei komfortablen Schlafzimmern und jeweils eigenem Bad. Im zweiten Obergeschoss befinden sich zwei weitere geräumige Schlafzimmer, ebenfalls mit eigenem Bad.
Neben dem Haus erstreckt sich ein 50 m² großes, ungenutztes Grundstück auf zwei Etagen, das die neuen Eigentümer nach ihren Wünschen gestalten können.
Ein besonderes Highlight ist der 24 m² große, beheizte Salzwasserpool, der ganzjährig zum Entspannen einlädt. Hinzu kommen eine möblierte Terrasse mit Liegewiese und Grillplatz sowie eine 120 m² große Grünfläche, die als Kinderspielplatz dient. Zusätzlich bietet das Anwesen 200 m² Bauland.
Das Haus wurde 2013 mit viel Liebe zum Detail und unter Verwendung hochwertiger Materialien und Steinelemente komplett renoviert.
Ausstattung:
* Daikin Inverter-Split-Klimaanlagen in jedem Zimmer
* Vorbereitung für Zentralheizung (Installationsverteilung)
* Eingebauter Kamin im Wohnzimmer
* Glasfaser-Internet
* Alarmanlage
* Solarkollektoren + 300-l-Brennwertkessel (Heizung über Elektroheizung)
* Neues Dach mit Konstruktion, Stahlbeton-Zwischengeschosse, neue Elektro-, Wasser-, Boden- und Wandbeläge sowie Schreinerarbeiten
Das Haus ist mit hochwertigen Möbeln und Geräten ausgestattet und wird im aktuellen Zustand verkauft.
Die Immobilie kann auch mit einem Darlehen erworben werden.
Das Anwesen ist ein perfekter Ort zum Entspannen mit Familie und Freunden.
Das Haus wird derzeit touristisch genutzt und ist hervorragend ausgelastet.
Eine ideale Gelegenheit für alle, die ein neues Zuhause suchen oder ein bestehendes Geschäft fortführen möchten!
Eigentumsanteil (1:1), alle erforderlichen Dokumente vorhanden.
Für weitere Informationen und zur Vereinbarung eines Besichtigungstermins kontaktieren Sie uns bitte.
Sehr geehrte Kunden, die Vermittlungsprovision wird gemäß den Allgemeinen Geschäftsbedingungen berechnet.
www.dux-nekretnine.hr/opci-uvjeti-poslovanja
ID CODE: 42708
Rovinj liegt an der Westküste Istriens. Zusammen mit Poreč bildet es das touristische Zentrum Istriens und zählt zu den attraktivsten Reisezielen an der Adria. Die Altstadt steht unter UNESCO-Schutz und ist eine ständige Inspirationsquelle für Romantiker und Künstler. Rovinj gehört zu den touristisch am besten erschlossenen Orten Kroatiens. Die Inselgruppe mit ihren 14 Inseln und 6 Steilküsten entlang der 67 Kilometer langen Küste ist ein geschütztes Naturerbe.
Die wunderschöne, zerklüftete Küste, das milde mediterrane Mikroklima, das exzellente gastronomische Angebot, die ganzjährigen Kulturveranstaltungen und die herzlichen Gastgeber machen diesen Ort zu einem magischen Ort, an dem Gäste Jahr für Jahr gerne wiederkommen.
In unmittelbarer Nähe, nur 10 Autominuten vom Zentrum Rovinjs entfernt, bieten wir Ihnen ein wunderschönes Steinhaus mit Swimmingpool – die perfekte Kombination aus Tradition und modernem Komfort! Charmantes Steinhaus mit authentisch mediterranem Flair in ruhiger Lage – ideal für Familien oder Urlauber.
Das Haus bietet auf 220 m² Wohnfläche eine voll ausgestattete Küche mit Essbereich, ein elegantes Wohnzimmer mit Kamin und ein Gäste-WC. Eine Steintreppe führt ins erste Obergeschoss mit zwei komfortablen Schlafzimmern und jeweils eigenem Bad. Im zweiten Obergeschoss befinden sich zwei weitere geräumige Schlafzimmer, ebenfalls mit eigenem Bad.
Neben dem Haus erstreckt sich ein 50 m² großes, ungenutztes Grundstück auf zwei Etagen, das die neuen Eigentümer nach ihren Wünschen gestalten können.
Ein besonderes Highlight ist der 24 m² große, beheizte Salzwasserpool, der ganzjährig zum Entspannen einlädt. Hinzu kommen eine möblierte Terrasse mit Liegewiese und Grillplatz sowie eine 120 m² große Grünfläche, die als Kinderspielplatz dient. Zusätzlich bietet das Anwesen 200 m² Bauland.
Das Haus wurde 2013 mit viel Liebe zum Detail und unter Verwendung hochwertiger Materialien und Steinelemente komplett renoviert.
Ausstattung:
* Daikin Inverter-Split-Klimaanlagen in jedem Zimmer
* Vorbereitung für Zentralheizung (Installationsverteilung)
* Eingebauter Kamin im Wohnzimmer
* Glasfaser-Internet
* Alarmanlage
* Solarkollektoren + 300-l-Brennwertkessel (Heizung über Elektroheizung)
* Neues Dach mit Konstruktion, Stahlbeton-Zwischengeschosse, neue Elektro-, Wasser-, Boden- und Wandbeläge sowie Schreinerarbeiten
Das Haus ist mit hochwertigen Möbeln und Geräten ausgestattet und wird im aktuellen Zustand verkauft.
Die Immobilie kann auch mit einem Darlehen erworben werden.
Das Anwesen ist ein perfekter Ort zum Entspannen mit Familie und Freunden.
Das Haus wird derzeit touristisch genutzt und ist hervorragend ausgelastet.
Eine ideale Gelegenheit für alle, die ein neues Zuhause suchen oder ein bestehendes Geschäft fortführen möchten!
Eigentumsanteil (1:1), alle erforderlichen Dokumente vorhanden.
Für weitere Informationen und zur Vereinbarung eines Besichtigungstermins kontaktieren Sie uns bitte.
Sehr geehrte Kunden, die Vermittlungsprovision wird gemäß den Allgemeinen Geschäftsbedingungen berechnet.
www.dux-nekretnine.hr/opci-uvjeti-poslovanja
ID CODE: 42708
Ausstattungsmerkmale
| Anzahl der Etagen im Haus | 3 |
| Bad | 4 |
Karte wird geladen...
Objektstandort
52352 Kanfanar
- Istrien
Kontaktanfrage senden
Über den Anbieter
DUX Nekretnine d.o.o.
Tizianova
51000 Rijeka
Kontakt
| Telefon | +385 91 480 8808 |
| Mobil | +385 91 480 8808 |
Ansprechpartner/in
Gordana Grabar Čubrilo