Wohnung Cres, 72,61m2
302.000 €
Kaufpreis
3
Zimmer
immobilien.de Nr.: 9484343
Objektnummer: 610
Kaufpreis
| Kaufpreis | 302.000 € |
Wohnfläche, Grundstück & Bausubstanz
| Gesamtfläche | 72 m² |
| Zimmer | 3 |
| Baujahr | 2026 |
| Verfügbar ab | keine Angabe |
Beschreibung der Immobilie
An einem attraktiven Standort in der Stadt Cres verkaufen wir die Wohnung S1 im Erdgeschoss eines modernen Neubaus – ideal für ein ruhiges Familienleben oder als Investition in den Tourismus.
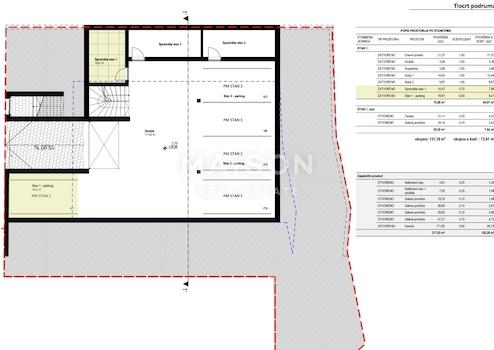
Die Wohnung hat eine Gesamtfläche von 72,61 m² und besteht aus zwei Schlafzimmern, einem Wohnzimmer mit Küche und Essbereich, einem Flur und einem Badezimmer. Vom Wohnzimmer aus gelangt man auf eine großzügige Terrasse von 21,11 m², und zusätzlich verfügt die Wohnung über einen Garten von 34,19 m², der Privatsphäre und Entspannung im Freien bietet.
Das Badezimmer ist mit Fußbodenheizung ausgestattet, und in den anderen Räumen sorgen Klimaanlagen für angenehme Temperaturen das ganze Jahr über.
Zur Wohnung gehören ein privater Garagenstellplatz sowie ein Abstellraum, was die Funktionalität und den Komfort zusätzlich erhöht.
Die Fertigstellung des Baus ist für 2026 geplant, und das Gebäude wird nach modernen Standards für Energieeffizienz und Qualität errichtet.
Diese Immobilie ist eine hervorragende Gelegenheit für alle, die eine neue und hochwertige Wohnung an einem der begehrtesten Standorte der Insel Cres suchen.
Für weitere Informationen und eine ausführliche Präsentation kontaktieren Sie uns gerne.
Maison – denn ein Zuhause ist nicht nur ein Ort, sondern eine Lebensweise.
ID CODE: 610
Die Wohnung hat eine Gesamtfläche von 72,61 m² und besteht aus zwei Schlafzimmern, einem Wohnzimmer mit Küche und Essbereich, einem Flur und einem Badezimmer. Vom Wohnzimmer aus gelangt man auf eine großzügige Terrasse von 21,11 m², und zusätzlich verfügt die Wohnung über einen Garten von 34,19 m², der Privatsphäre und Entspannung im Freien bietet.
Das Badezimmer ist mit Fußbodenheizung ausgestattet, und in den anderen Räumen sorgen Klimaanlagen für angenehme Temperaturen das ganze Jahr über.
Zur Wohnung gehören ein privater Garagenstellplatz sowie ein Abstellraum, was die Funktionalität und den Komfort zusätzlich erhöht.
Die Fertigstellung des Baus ist für 2026 geplant, und das Gebäude wird nach modernen Standards für Energieeffizienz und Qualität errichtet.
Diese Immobilie ist eine hervorragende Gelegenheit für alle, die eine neue und hochwertige Wohnung an einem der begehrtesten Standorte der Insel Cres suchen.
Für weitere Informationen und eine ausführliche Präsentation kontaktieren Sie uns gerne.
Maison – denn ein Zuhause ist nicht nur ein Ort, sondern eine Lebensweise.
ID CODE: 610
Ausstattungsmerkmale
| Anzahl der Etagen im Haus | 1 |
| Bad | 1 |
Karte wird geladen...
Objektstandort
51557 Cres
- Kvarner Region [Primorsko-Goranska]
Kontaktanfrage senden
Über den Anbieter
Nekretnine1 j.d.o.o.
Pomerio 27
51000 Rijeka
Kontakt
| Telefon | +385 95 714 8583 |
| Website | www.nekretnine1.hr |
Ansprechpartner/in
Nekretnine1.hr