ISTRIEN, BRTONIGLA - Baugrundstück mit Vorentwurf
130.000 €
Kaufpreis
immobilien.de Nr.: 9479036
Objektnummer: 45508
Kaufpreis
| Kaufpreis | 130.000 € |
Wohnfläche, Grundstück & Bausubstanz
| Gesamtfläche | 536 m² |
| Verfügbar ab | keine Angabe |
Beschreibung der Immobilie
ISTRIEN, BRTONIGLA – Baugrundstück mit Vorentwurf
Zum Verkauf steht ein attraktives, 536 m² großes Baugrundstück in besonders schöner und ruhiger Lage in Brtonigla. Das Grundstück befindet sich in angenehmer Lage, begrenzt von einer Zufahrtsstraße und landwirtschaftlichen Flächen. Dies garantiert einen freien Blick, Privatsphäre und ein großzügiges Raumgefühl – ohne direkte Bebauung neben dem Grundstück.
Das Grundstück bietet hervorragende Baumöglichkeiten. Nach den aktuellen Gegebenheiten ist der Bau eines Doppelhauses oder eines Hauses mit bis zu drei Wohneinheiten möglich. Dies macht es sowohl für private Bauvorhaben als auch für Kapitalanlagen interessant. Ein weiterer Vorteil ist die Möglichkeit, das Nachbargrundstück von der Gemeinde Brtonigla zu erwerben. Dies eröffnet Potenzial für eine Projekterweiterung oder einen größeren Garten.
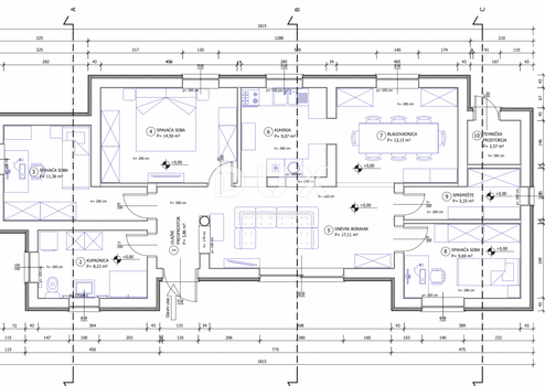
Es wurde ein Vorentwurf für ein modernes, freistehendes, eingeschossiges Einfamilienhaus mit einer maximalen Wohnfläche von ca. 126,24 m² und einem bebauten Grundstücksgrundstück von ca. 18,15 m x 7,90 m erstellt. Das Gebäude ist als Erdgeschoss (mit einem Obergeschoss) in Nord-Süd-Richtung geplant, was eine optimale Tagesbeleuchtung gewährleistet.
Die Raumaufteilung ist funktional und komfortabel gestaltet: Eingangsbereich, Badezimmer, drei Schlafzimmer, geräumiges Wohnzimmer, Wohnküche, Abstellraum und Technikraum. Je nach räumlichen Gegebenheiten können ein oder zwei separate Wohneinheiten geschaffen werden.
Das geplante Haus erfüllt die Kriterien für Niedrigstenergiegebäude (nZEB-Standard) und bietet somit hohe Energieeffizienz, geringe Instandhaltungskosten und modernen Wohnkomfort.
Zum Projekt gehört außerdem ein 5,80 m x 3,20 m (18,56 m²) großer Swimmingpool, der ideal zum Entspannen, für Familienfeiern oder zur Steigerung der Attraktivität des Anwesens für touristische Zwecke geeignet ist.
Die gesamte notwendige Infrastruktur befindet sich in unmittelbarer Nähe des Grundstücks, was die Realisierung zukünftiger Bauvorhaben erleichtert und beschleunigt.
Dieses Grundstück bietet eine hervorragende Gelegenheit für alle, die eine ruhige Lage mit Potenzial suchen – ob für ein Familienhaus, ein Ferienhaus oder als Kapitalanlage in Istrien.
Sehr geehrte Kunden, die Vermittlungsprovision wird gemäß den Allgemeinen Geschäftsbedingungen berechnet.
www.dux-nekretnine.hr/opci-uvjeti-poslovanja
ID CODE: 45508
Zum Verkauf steht ein attraktives, 536 m² großes Baugrundstück in besonders schöner und ruhiger Lage in Brtonigla. Das Grundstück befindet sich in angenehmer Lage, begrenzt von einer Zufahrtsstraße und landwirtschaftlichen Flächen. Dies garantiert einen freien Blick, Privatsphäre und ein großzügiges Raumgefühl – ohne direkte Bebauung neben dem Grundstück.
Das Grundstück bietet hervorragende Baumöglichkeiten. Nach den aktuellen Gegebenheiten ist der Bau eines Doppelhauses oder eines Hauses mit bis zu drei Wohneinheiten möglich. Dies macht es sowohl für private Bauvorhaben als auch für Kapitalanlagen interessant. Ein weiterer Vorteil ist die Möglichkeit, das Nachbargrundstück von der Gemeinde Brtonigla zu erwerben. Dies eröffnet Potenzial für eine Projekterweiterung oder einen größeren Garten.
Es wurde ein Vorentwurf für ein modernes, freistehendes, eingeschossiges Einfamilienhaus mit einer maximalen Wohnfläche von ca. 126,24 m² und einem bebauten Grundstücksgrundstück von ca. 18,15 m x 7,90 m erstellt. Das Gebäude ist als Erdgeschoss (mit einem Obergeschoss) in Nord-Süd-Richtung geplant, was eine optimale Tagesbeleuchtung gewährleistet.
Die Raumaufteilung ist funktional und komfortabel gestaltet: Eingangsbereich, Badezimmer, drei Schlafzimmer, geräumiges Wohnzimmer, Wohnküche, Abstellraum und Technikraum. Je nach räumlichen Gegebenheiten können ein oder zwei separate Wohneinheiten geschaffen werden.
Das geplante Haus erfüllt die Kriterien für Niedrigstenergiegebäude (nZEB-Standard) und bietet somit hohe Energieeffizienz, geringe Instandhaltungskosten und modernen Wohnkomfort.
Zum Projekt gehört außerdem ein 5,80 m x 3,20 m (18,56 m²) großer Swimmingpool, der ideal zum Entspannen, für Familienfeiern oder zur Steigerung der Attraktivität des Anwesens für touristische Zwecke geeignet ist.
Die gesamte notwendige Infrastruktur befindet sich in unmittelbarer Nähe des Grundstücks, was die Realisierung zukünftiger Bauvorhaben erleichtert und beschleunigt.
Dieses Grundstück bietet eine hervorragende Gelegenheit für alle, die eine ruhige Lage mit Potenzial suchen – ob für ein Familienhaus, ein Ferienhaus oder als Kapitalanlage in Istrien.
Sehr geehrte Kunden, die Vermittlungsprovision wird gemäß den Allgemeinen Geschäftsbedingungen berechnet.
www.dux-nekretnine.hr/opci-uvjeti-poslovanja
ID CODE: 45508
Ausstattungsmerkmale
| Anzahl der Etagen im Haus | 0 |
Karte wird geladen...
Objektstandort
52474 Brtonigla
- Istrien
Kontaktanfrage senden
Über den Anbieter
DUX Nekretnine d.o.o.
Tizianova
51000 Rijeka
Kontakt
| Telefon | +385 91 480 8808 |
| Mobil | +385 91 480 8808 |
Ansprechpartner/in
Stefani Kapel