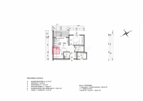
Wohnung Livada, Slavonski Brod, 50,91m2
112.002 €
Kaufpreis
2
Zimmer
immobilien.de Nr.: 9460376
Objektnummer: 1224
Kaufpreis
| Kaufpreis | 112.002 € |
Wohnfläche, Grundstück & Bausubstanz
| Gesamtfläche | 50 m² |
| Zimmer | 2 |
| Baujahr | 2027 |
| Verfügbar ab | keine Angabe |
Beschreibung der Immobilie
ID CODE: 1224
Ausstattungsmerkmale
| Anzahl der Etagen im Haus | 2 |
| Inserat befindet sich im Stockwerk | 2 |
| Bad | 1 |
Karte wird geladen...
Objektstandort
Slavonski Brod
- Slawonien [Brodsko-Posavska]
Kontaktanfrage senden
Über den Anbieter
Trgo-Invest Nekretnine
J.J. Strossmayera 25
35000 Slavonski Brod
Kontakt
| Telefon | 035 448 862 |
| Mobil | +385 95 8939 386 |
Ansprechpartner/in
Edi Bračun