LUXUS MODERNE VILLA – ERSTE REIHE AM MEER, ZADAR
5.000 €
Kaltmiete
7
Zimmer
immobilien.de Nr.: 9455102
Objektnummer: 1305
Mietpreis & Nebenkosten
| Kaltmiete | 5.000 € |
| Nebenkosten | Keine Angabe |
Wohnfläche, Grundstück & Bausubstanz
| Gesamtfläche | 210 m² |
| Grundstücksfläche | 332 m² |
| Zimmer | 7 |
| Baujahr | 2011 |
| Verfügbar ab | keine Angabe |
Beschreibung der Immobilie
Luxusvilla in Zadar – Erste Reihe am Meer, Diklo
Meeresduft, Wellenrauschen, Sonne auf der Haut – ein Zuhause, das zum Gefühl wird.
Zum Verkauf steht eine außergewöhnliche Villa direkt an der Küste, im charmanten und historischen Viertel Diklo in Zadar. Die Immobilie befindet sich in erster Reihe zum Meer, direkt an der Promenade, mit freiem Blick auf die Insel Ugljan und das kristallklare Adriatische Meer.
Schon beim Betreten spüren Sie den Duft von Salz und Pinien in der Luft. Die Meeresbrise lädt zu einem Kaffee auf der sonnigen Terrasse ein. Der Strand beginnt direkt vor dem Garten – nur wenige Schritte trennen Sie vom Wasser.
Diklo bietet Ruhe und Privatsphäre, ist aber hervorragend angebunden: Nur 15 Autominuten vom Flughafen Zadar entfernt, mit schneller Anbindung an Zagreb, Ljubljana, Wien und München.
Die im Jahr 2011 erbaute Architekturperle ist südwestlich ausgerichtet und voller natürlichem Licht. Edle Materialien wie Eichenholzböden, Bisazza-Mosaike und Naturstein sorgen für ein sinnliches Wohngefühl.
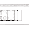
Das Erdgeschoss umfasst ein offenes Wohn-Esszimmer mit Küche, Gäste-WC, Technikraum und zweite Küche/Waschküche. Im Obergeschoss befinden sich das Hauptschlafzimmer mit begehbarem Kleiderschrank, zwei Kinderzimmer mit privaten Badezimmern, zusätzliche Luxusbäder und eine private Sauna.
Ausstattung: Oventrop-Fußbodenheizung, Daikin Altherma System, SONOS Soundsystem, rotierender Invicta-Kamin, Solarpanels, Alarmanlage, Kameras.
Im Garten erwarten Sie Hängeliegen, Sonnenplätze, Spielflächen – und das alles nur Schritte vom Strand entfernt.
Die Villa ist im Privatbesitz, mit vollständiger Dokumentation, Nutzungsgenehmigung und Energiezertifikat A++. Ideal für den Eigenbedarf oder als exklusive Investition.
Lassen Sie sich von uns in die Welt von Luxus und Ruhe entführen – kontaktieren Sie uns:
DIJANA KRŠUL, Mag.oec.
Lizenzierte Immobilienmaklerin
Telefon: E-Mail:
ID CODE: 1305
Meeresduft, Wellenrauschen, Sonne auf der Haut – ein Zuhause, das zum Gefühl wird.
Zum Verkauf steht eine außergewöhnliche Villa direkt an der Küste, im charmanten und historischen Viertel Diklo in Zadar. Die Immobilie befindet sich in erster Reihe zum Meer, direkt an der Promenade, mit freiem Blick auf die Insel Ugljan und das kristallklare Adriatische Meer.
Schon beim Betreten spüren Sie den Duft von Salz und Pinien in der Luft. Die Meeresbrise lädt zu einem Kaffee auf der sonnigen Terrasse ein. Der Strand beginnt direkt vor dem Garten – nur wenige Schritte trennen Sie vom Wasser.
Diklo bietet Ruhe und Privatsphäre, ist aber hervorragend angebunden: Nur 15 Autominuten vom Flughafen Zadar entfernt, mit schneller Anbindung an Zagreb, Ljubljana, Wien und München.
Die im Jahr 2011 erbaute Architekturperle ist südwestlich ausgerichtet und voller natürlichem Licht. Edle Materialien wie Eichenholzböden, Bisazza-Mosaike und Naturstein sorgen für ein sinnliches Wohngefühl.
Das Erdgeschoss umfasst ein offenes Wohn-Esszimmer mit Küche, Gäste-WC, Technikraum und zweite Küche/Waschküche. Im Obergeschoss befinden sich das Hauptschlafzimmer mit begehbarem Kleiderschrank, zwei Kinderzimmer mit privaten Badezimmern, zusätzliche Luxusbäder und eine private Sauna.
Ausstattung: Oventrop-Fußbodenheizung, Daikin Altherma System, SONOS Soundsystem, rotierender Invicta-Kamin, Solarpanels, Alarmanlage, Kameras.
Im Garten erwarten Sie Hängeliegen, Sonnenplätze, Spielflächen – und das alles nur Schritte vom Strand entfernt.
Die Villa ist im Privatbesitz, mit vollständiger Dokumentation, Nutzungsgenehmigung und Energiezertifikat A++. Ideal für den Eigenbedarf oder als exklusive Investition.
Lassen Sie sich von uns in die Welt von Luxus und Ruhe entführen – kontaktieren Sie uns:
DIJANA KRŠUL, Mag.oec.
Lizenzierte Immobilienmaklerin
Telefon: E-Mail:
ID CODE: 1305
Ausstattungsmerkmale
| Anzahl der Etagen im Haus | 1 |
| Bad | 2 |
Karte wird geladen...
Objektstandort
23000 Zadar
- Dalmatien-Zadar (Region) [Zadarska]