Grundstück Svetvinčenat, 548m2
140.000 €
Kaufpreis
immobilien.de Nr.: 9452113
Objektnummer: TR-5832
Kaufpreis
| Kaufpreis | 140.000 € |
Wohnfläche, Grundstück & Bausubstanz
| Gesamtfläche | 548 m² |
| Verfügbar ab | keine Angabe |
Beschreibung der Immobilie
Svetvinčenat, Baugrundstück mit Projekt und Baugenehmigung
In der Nähe der Renaissancestadt Svetvinčenta, die sich durch ihr reiches kulturelles Erbe, ihr vielfältiges gastronomisches und touristisches Angebot sowie zahlreiche Veranstaltungen das ganze Jahr über auszeichnet, steht dieses Baugrundstück mit einem Projekt für ein Haus mit Schwimmbad und einer Baugenehmigung zum Verkauf.
Das Grundstück liegt am Ende des Dorfes in einer Sackgasse, hat eine regelmäßige Form und eine Fläche von 548 Quadratmetern.
Der Zugang erfolgt über eine öffentliche Straße und ist auf zwei Seiten durch Trockenmauern begrenzt.
Auf dem genannten Grundstück ist der Bau eines freistehenden Wohngebäudes mit Erdgeschoss und Obergeschoss, Swimmingpool und Parkplatz für zwei Autos geplant.
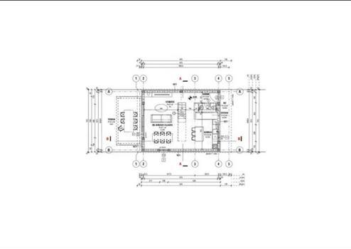
Das Erdgeschoss des Hauses verfügt über ein Wohnzimmer, ein Esszimmer und eine Küche als offenen Raum, einen Abstellraum, eine Toilette und einen Flur.
Über eine Innentreppe gelangt man in den ersten Stock, wo sich drei Schlafzimmer mit jeweils eigenem Bad befinden.
Die Außenterrasse ist 40 Quadratmeter groß, der Pool 28 Quadratmeter.
In unmittelbarer Nähe des Grundstücks befinden sich Ferienhäuser, daher ist dieses zukünftige Haus ideal für alle, die alle Vorteile eines ruhigen istrischen Dorfes genießen möchten, sei es für ein ruhiges Familienleben oder für die Vermietung zu touristischen Zwecken.
Auf dem Grundstück sind Strom- und Wasseranschlüsse vorhanden.
Für ein Haus mit einer Nettofläche von 120 Quadratmetern mit Nebenanlagen wurde ein Baugenehmigungsantrag eingereicht, der im Sommer 2024 erwartet wird.
Der Verkaufspreis beinhaltet das Hauptprojekt, Baugenehmigung (nach der Ausfahrt), Strom- und Wasseranschlüsse, bezahlte Nebenkostenbeiträge, vorbereitete und geräumte Baustelle.
Eine Vereinbarung mit dem Verkäufer über die Errichtung des betreffenden Gebäudes in der Rohbauphase oder schlüsselfertig ist möglich.
ID CODE: TR-5832
In der Nähe der Renaissancestadt Svetvinčenta, die sich durch ihr reiches kulturelles Erbe, ihr vielfältiges gastronomisches und touristisches Angebot sowie zahlreiche Veranstaltungen das ganze Jahr über auszeichnet, steht dieses Baugrundstück mit einem Projekt für ein Haus mit Schwimmbad und einer Baugenehmigung zum Verkauf.
Das Grundstück liegt am Ende des Dorfes in einer Sackgasse, hat eine regelmäßige Form und eine Fläche von 548 Quadratmetern.
Der Zugang erfolgt über eine öffentliche Straße und ist auf zwei Seiten durch Trockenmauern begrenzt.
Auf dem genannten Grundstück ist der Bau eines freistehenden Wohngebäudes mit Erdgeschoss und Obergeschoss, Swimmingpool und Parkplatz für zwei Autos geplant.
Das Erdgeschoss des Hauses verfügt über ein Wohnzimmer, ein Esszimmer und eine Küche als offenen Raum, einen Abstellraum, eine Toilette und einen Flur.
Über eine Innentreppe gelangt man in den ersten Stock, wo sich drei Schlafzimmer mit jeweils eigenem Bad befinden.
Die Außenterrasse ist 40 Quadratmeter groß, der Pool 28 Quadratmeter.
In unmittelbarer Nähe des Grundstücks befinden sich Ferienhäuser, daher ist dieses zukünftige Haus ideal für alle, die alle Vorteile eines ruhigen istrischen Dorfes genießen möchten, sei es für ein ruhiges Familienleben oder für die Vermietung zu touristischen Zwecken.
Auf dem Grundstück sind Strom- und Wasseranschlüsse vorhanden.
Für ein Haus mit einer Nettofläche von 120 Quadratmetern mit Nebenanlagen wurde ein Baugenehmigungsantrag eingereicht, der im Sommer 2024 erwartet wird.
Der Verkaufspreis beinhaltet das Hauptprojekt, Baugenehmigung (nach der Ausfahrt), Strom- und Wasseranschlüsse, bezahlte Nebenkostenbeiträge, vorbereitete und geräumte Baustelle.
Eine Vereinbarung mit dem Verkäufer über die Errichtung des betreffenden Gebäudes in der Rohbauphase oder schlüsselfertig ist möglich.
ID CODE: TR-5832
Ausstattungsmerkmale
| Anzahl der Etagen im Haus | 0 |
Karte wird geladen...
Objektstandort
52342 Svetvinčenat
- Istrien
Kontaktanfrage senden
Über den Anbieter
JO-DA REAL ESTATE AGENCY
Kralja Tomislava 112 A
51260 Crikvenica
Kontakt
| Telefon | +385 51 403 771 |
| Mobil | +385 91 890 4694 |
| Website | www.joda-nekretnine.hr |
Ansprechpartner/in
Josip Šikić, mag.oec