VELIKA GORICA – Hervorragende Gelegenheit in einem Neubau – Dreizimmerwohnung mit Garage
373.000 €
Kaufpreis
3
Zimmer
immobilien.de Nr.: 9440611
Objektnummer: 44921
Kaufpreis
| Kaufpreis | 373.000 € |
Wohnfläche, Grundstück & Bausubstanz
| Gesamtfläche | 124 m² |
| Zimmer | 3 |
| Baujahr | 2026 |
| Verfügbar ab | keine Angabe |
Beschreibung der Immobilie
VELIKA GORICA – Hervorragende Gelegenheit in einem Neubau – 3-Zimmer-Wohnung mit Garage
Diese geräumige und modern gestaltete 3-Zimmer-Wohnung befindet sich im zweiten Obergeschoss eines modernen Wohngebäudes in einer ruhigen und begehrten Lage in Velika Gorica.
Das Gebäude liegt abseits der Hauptstraßen und bietet daher Ruhe, Privatsphäre und eine hohe Wohnqualität.
Die Wohnung ist ideal für Familien, junge Paare oder als sichere Kapitalanlage zur langfristigen Vermietung.
Das Gebäude befindet sich derzeit im Bau. Die geplante Fertigstellung und der Einzug sind für September 2026 vorgesehen.
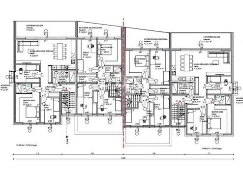
Neue Gebäudebezeichnung: Wohnung S4 – 2. Obergeschoss, Gebäude B
Raumaufteilung
Eingangsbereich/Flur – 8,83 m²
Küche/Esszimmer/Wohnzimmer – 35,84 m²
Hauptschlafzimmer – 16,35 m²
Schlafzimmer 1 – 10,08 m²
Schlafzimmer 2 – 9,10 m²
Badezimmer 1 – 5,69 m²
Badezimmer 2 – 3,22 m²
Loggia – 20,46 m²
Ausstattung:
Abstellraum – 6,40 m²
Garage – 20,00 m²
Außenstellplatz – 12,50 m²
Gesamtfläche der Wohnung inklusive Ausstattung: 124,38 m²
Nutzfläche der Wohnung (ohne Ausstattung): 104,45 m²
Das Gebäude ist in erdbebensicherer Stahlbetonbauweise auf einer schwimmenden Betondecke errichtet. Es zeichnet sich durch eine erstklassige Wärmedämmung (15 cm Steinwolle und EPS), PVC-Fenster und -Türen mit Dreifachverglasung, elektrische Rollläden, Sicherheitstüren und eine Video-Gegensprechanlage aus.
Die Beheizung erfolgt über Wärmepumpen mit Fußbodenheizung, Klimaanlagen sind in allen Räumen installiert. Das Gebäude verfügt über einen Energieausweis der Klasse A+.
Die Immobilie befindet sich in einer ruhigen, urbanen Straße und ist ideal für Familien. Kindergärten, Schulen, Geschäfte, öffentliche Verkehrsmittel und alle wichtigen Einrichtungen sind in unmittelbarer Nähe, während die Lage Ruhe und Privatsphäre bietet.
Dank der steigenden Nachfrage nach hochwertigen Neubauten in Velika Gorica stellt diese Immobilie auch eine sichere Langzeitinvestition mit hervorragendem Vermietungspotenzial oder Wertsteigerungspotenzial dar.
Sehr geehrte Kunden, die Vermittlungsprovision wird gemäß den Allgemeinen Geschäftsbedingungen berechnet:
www.dux-nekretnine.hr/opci-uvjeti-poslovanja
ID CODE: 44921
Diese geräumige und modern gestaltete 3-Zimmer-Wohnung befindet sich im zweiten Obergeschoss eines modernen Wohngebäudes in einer ruhigen und begehrten Lage in Velika Gorica.
Das Gebäude liegt abseits der Hauptstraßen und bietet daher Ruhe, Privatsphäre und eine hohe Wohnqualität.
Die Wohnung ist ideal für Familien, junge Paare oder als sichere Kapitalanlage zur langfristigen Vermietung.
Das Gebäude befindet sich derzeit im Bau. Die geplante Fertigstellung und der Einzug sind für September 2026 vorgesehen.
Neue Gebäudebezeichnung: Wohnung S4 – 2. Obergeschoss, Gebäude B
Raumaufteilung
Eingangsbereich/Flur – 8,83 m²
Küche/Esszimmer/Wohnzimmer – 35,84 m²
Hauptschlafzimmer – 16,35 m²
Schlafzimmer 1 – 10,08 m²
Schlafzimmer 2 – 9,10 m²
Badezimmer 1 – 5,69 m²
Badezimmer 2 – 3,22 m²
Loggia – 20,46 m²
Ausstattung:
Abstellraum – 6,40 m²
Garage – 20,00 m²
Außenstellplatz – 12,50 m²
Gesamtfläche der Wohnung inklusive Ausstattung: 124,38 m²
Nutzfläche der Wohnung (ohne Ausstattung): 104,45 m²
Das Gebäude ist in erdbebensicherer Stahlbetonbauweise auf einer schwimmenden Betondecke errichtet. Es zeichnet sich durch eine erstklassige Wärmedämmung (15 cm Steinwolle und EPS), PVC-Fenster und -Türen mit Dreifachverglasung, elektrische Rollläden, Sicherheitstüren und eine Video-Gegensprechanlage aus.
Die Beheizung erfolgt über Wärmepumpen mit Fußbodenheizung, Klimaanlagen sind in allen Räumen installiert. Das Gebäude verfügt über einen Energieausweis der Klasse A+.
Die Immobilie befindet sich in einer ruhigen, urbanen Straße und ist ideal für Familien. Kindergärten, Schulen, Geschäfte, öffentliche Verkehrsmittel und alle wichtigen Einrichtungen sind in unmittelbarer Nähe, während die Lage Ruhe und Privatsphäre bietet.
Dank der steigenden Nachfrage nach hochwertigen Neubauten in Velika Gorica stellt diese Immobilie auch eine sichere Langzeitinvestition mit hervorragendem Vermietungspotenzial oder Wertsteigerungspotenzial dar.
Sehr geehrte Kunden, die Vermittlungsprovision wird gemäß den Allgemeinen Geschäftsbedingungen berechnet:
www.dux-nekretnine.hr/opci-uvjeti-poslovanja
ID CODE: 44921
Ausstattungsmerkmale
| Anzahl der Etagen im Haus | 2 |
| Inserat befindet sich im Stockwerk | 2 |
| Bad | 2 |
Karte wird geladen...
Objektstandort
10410 Velika Gorica
- Zagreb (Region) [Zagrebacka]