ŠIBENIK, VODICE – LUXUS-TRIPLEX – Dachterrasse, Pool und Meerblick
635.000 €
Kaufpreis
4
Zimmer
immobilien.de Nr.: 9439517
Objektnummer: 44830
Kaufpreis
| Kaufpreis | 635.000 € |
Wohnfläche, Grundstück & Bausubstanz
| Gesamtfläche | 204 m² |
| Zimmer | 4 |
| Baujahr | 2026 |
| Verfügbar ab | keine Angabe |
Beschreibung der Immobilie
ŠIBENIK, VODICE – LUXUS-TRIPLEX – Dachterrasse, Pool und Meerblick
Wohnung S3 in einem luxuriösen Triplex in Vodice zu verkaufen.
Diese Immobilie ist nicht für Käufer gedacht, die einen Kompromiss zwischen Preis und Lage suchen.
Sie richtet sich an diejenigen, für die Luxus, Meerblick, Privatsphäre und hochwertige Bauweise höchste Priorität haben.
In bester Lage in Vodice entsteht ein modernes Triplex-Gebäude mit drei separaten Wohneinheiten, jeweils mit eigenem Eingang, Pool und Garten.
Die Wohneinheiten erstrecken sich über Erdgeschoss und Obergeschoss. S2 und S3 verfügen zusätzlich über eine Dachterrasse mit Whirlpool und einem Entspannungsbereich mit Meerblick.
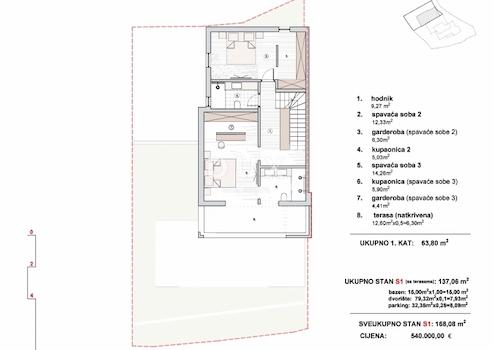
Wohnung S3 umfasst Erdgeschoss, Obergeschoss und Dachterrasse und bietet eine Wohnfläche von 204,04 m².
Das Erdgeschoss umfasst ein Schlafzimmer, ein Badezimmer und ein geräumiges Wohnzimmer mit offener Küche und Essbereich. Eine große Glaswand verbindet den Innenraum mit Terrasse, Pool und Garten und ermöglicht einen ständigen Blick aufs Meer.
Im ersten Obergeschoss befinden sich zwei Schlafzimmer mit jeweils eigener Terrasse, wobei das Hauptschlafzimmer über ein eigenes Badezimmer verfügt, sowie ein weiteres Badezimmer.
Neben Erdgeschoss und erstem Obergeschoss bietet die Wohnung S3 auch eine großzügige Dachterrasse, die als exklusiver Ort zum Genießen der Aussicht, der Ruhe und der abendlichen Atmosphäre konzipiert ist. Ein Whirlpool ist geplant, und die Terrasse bietet einen weiten Panoramablick auf das Meer und die Umgebung.
Die Wohnung wird nach hohen Standards modernen Bauens ausgestattet, wobei hochwertige Materialien und technische Lösungen auf langfristige Energieeffizienz und Komfort ausgelegt sind.
Moderne Aluminiumfenster und -türen, Fußbodenheizung mit Wärmepumpen, Klimaanlage in allen Räumen sowie eine Kombination aus Parkett in den Wohnbereichen und Keramikfliesen in Bädern und Hauswirtschaftsräumen sind geplant.
Dieser Ausstattungsstandard gewährleistet hohen Wohnkomfort, niedrige Instandhaltungskosten und einen stabilen Wert der Immobilie.
S3 wurde für Käufer konzipiert, die maximalen Komfort, ein Plus an Luxus und langfristigen Werterhalt suchen, ohne dabei auf Lage und Aussicht verzichten zu müssen.
VODICE – Ein charmantes Städtchen mit pulsierendem Nachtleben und traumhaften Stränden
Vodice ist ein beliebtes Touristenziel, 10 Kilometer nördlich von Šibenik.
Vodice bietet erstklassige Hotels, wunderschöne Strände und ein abwechslungsreiches Nachtleben.
In der Nähe befindet sich die kleine Insel Prvić. Die Stadt Split ist 69 km, Zadar 59 km und der nächste Flughafen 49 km entfernt.
Für weitere Informationen oder zur Vereinbarung eines Besichtigungstermins kontaktieren Sie uns bitte.
Sehr geehrte Kunden, die Maklerprovision richtet sich nach den Allgemeinen Geschäftsbedingungen:
www.dux-nekretnine.hr/opci-uvjeti-poslovanja
ID CODE: 44830
Wohnung S3 in einem luxuriösen Triplex in Vodice zu verkaufen.
Diese Immobilie ist nicht für Käufer gedacht, die einen Kompromiss zwischen Preis und Lage suchen.
Sie richtet sich an diejenigen, für die Luxus, Meerblick, Privatsphäre und hochwertige Bauweise höchste Priorität haben.
In bester Lage in Vodice entsteht ein modernes Triplex-Gebäude mit drei separaten Wohneinheiten, jeweils mit eigenem Eingang, Pool und Garten.
Die Wohneinheiten erstrecken sich über Erdgeschoss und Obergeschoss. S2 und S3 verfügen zusätzlich über eine Dachterrasse mit Whirlpool und einem Entspannungsbereich mit Meerblick.
Wohnung S3 umfasst Erdgeschoss, Obergeschoss und Dachterrasse und bietet eine Wohnfläche von 204,04 m².
Das Erdgeschoss umfasst ein Schlafzimmer, ein Badezimmer und ein geräumiges Wohnzimmer mit offener Küche und Essbereich. Eine große Glaswand verbindet den Innenraum mit Terrasse, Pool und Garten und ermöglicht einen ständigen Blick aufs Meer.
Im ersten Obergeschoss befinden sich zwei Schlafzimmer mit jeweils eigener Terrasse, wobei das Hauptschlafzimmer über ein eigenes Badezimmer verfügt, sowie ein weiteres Badezimmer.
Neben Erdgeschoss und erstem Obergeschoss bietet die Wohnung S3 auch eine großzügige Dachterrasse, die als exklusiver Ort zum Genießen der Aussicht, der Ruhe und der abendlichen Atmosphäre konzipiert ist. Ein Whirlpool ist geplant, und die Terrasse bietet einen weiten Panoramablick auf das Meer und die Umgebung.
Die Wohnung wird nach hohen Standards modernen Bauens ausgestattet, wobei hochwertige Materialien und technische Lösungen auf langfristige Energieeffizienz und Komfort ausgelegt sind.
Moderne Aluminiumfenster und -türen, Fußbodenheizung mit Wärmepumpen, Klimaanlage in allen Räumen sowie eine Kombination aus Parkett in den Wohnbereichen und Keramikfliesen in Bädern und Hauswirtschaftsräumen sind geplant.
Dieser Ausstattungsstandard gewährleistet hohen Wohnkomfort, niedrige Instandhaltungskosten und einen stabilen Wert der Immobilie.
S3 wurde für Käufer konzipiert, die maximalen Komfort, ein Plus an Luxus und langfristigen Werterhalt suchen, ohne dabei auf Lage und Aussicht verzichten zu müssen.
VODICE – Ein charmantes Städtchen mit pulsierendem Nachtleben und traumhaften Stränden
Vodice ist ein beliebtes Touristenziel, 10 Kilometer nördlich von Šibenik.
Vodice bietet erstklassige Hotels, wunderschöne Strände und ein abwechslungsreiches Nachtleben.
In der Nähe befindet sich die kleine Insel Prvić. Die Stadt Split ist 69 km, Zadar 59 km und der nächste Flughafen 49 km entfernt.
Für weitere Informationen oder zur Vereinbarung eines Besichtigungstermins kontaktieren Sie uns bitte.
Sehr geehrte Kunden, die Maklerprovision richtet sich nach den Allgemeinen Geschäftsbedingungen:
www.dux-nekretnine.hr/opci-uvjeti-poslovanja
ID CODE: 44830
Ausstattungsmerkmale
| Anzahl der Etagen im Haus | 1 |
| Bad | 3 |
Karte wird geladen...
Objektstandort
22211 Vodice
- Dalmatien-Sibenik [Sibensko-Kninska]
Kontaktanfrage senden
Über den Anbieter
DUX Nekretnine d.o.o.
Tizianova
51000 Rijeka
Kontakt
| Telefon | +385 91 480 8808 |
| Mobil | +385 91 480 8808 |
Ansprechpartner/in
Ivan Bego