ŠIBENIK, VODICE – Freistehende, moderne Villa mit im Bau befindlichem Swimmingpool
690.000 €
Kaufpreis
4
Zimmer
immobilien.de Nr.: 9420634
Objektnummer: 44560
Kaufpreis
| Kaufpreis | 690.000 € |
Wohnfläche, Grundstück & Bausubstanz
| Gesamtfläche | 176 m² |
| Grundstücksfläche | 497 m² |
| Zimmer | 4 |
| Verfügbar ab | keine Angabe |
Beschreibung der Immobilie
ŠIBENIK, VODICE – Moderne, freistehende Villa mit Pool im Bau
Wir bieten Ihnen ein attraktives, freistehendes Einfamilienhaus mit Pool in ruhiger Lage in Vodice, nur 1200 m vom Meer und gepflegten Stränden entfernt. Das Haus befindet sich derzeit im Bau und wird voraussichtlich im Frühjahr/Sommer 2026 bezugsfertig sein. Dank moderner Architektur, hochwertiger Bauweise und optimaler Raumaufteilung eignet es sich ideal für Familien, Urlauber oder als Kapitalanlage zur touristischen Vermietung.
Das moderne, zweigeschossige Haus bietet eine Wohnfläche von 176,40 m², einen 19 m² großen Pool und liegt auf einem 497 m² großen Grundstück. Besonders hervorzuheben sind die großzügigen, 65 m² großen überdachten und offenen Terrassen, die ganzjährig zum Verweilen im Freien einladen.
Das Haus besteht aus Erdgeschoss und Obergeschoss, die durch eine elegante, freitragende Wendeltreppe verbunden sind, welche dem Interieur eine besondere ästhetische Note verleiht.
Im Erdgeschoss befinden sich ein Eingangsbereich mit Flur, Gäste-WC und Abstellraum, gefolgt von einem großzügigen, offenen Wohnbereich mit Küche, Esszimmer und Wohnzimmer, der dank großer Glaswände lichtdurchflutet ist. Im Anbau des Erdgeschosses befindet sich ein Schlafzimmer mit eigenem Bad. Vom Wohnzimmer gelangt man auf eine schöne Terrasse mit Außenbar und in einen schön angelegten Garten mit Swimmingpool. Hinter dem Haus befindet sich eine 35 m² große Garage, die über einen Abstellraum im Eingangsbereich mit dem Hauptteil des Hauses verbunden ist.
Im Obergeschoss befinden sich ein Flur und zwei geräumige Schlafzimmer, jeweils mit eigenem Bad und Zugang zu einer großen Terrasse – ideal zum Entspannen und Genießen der ruhigen Umgebung.
Der Garten ist teils gepflastert, teils als Grünfläche angelegt. Das Grundstück ist komplett umzäunt, und neben der Garage befinden sich zwei zusätzliche Außenstellplätze. Der Swimmingpool liegt im vorderen Bereich des Gartens und bildet den Mittelpunkt des Außenbereichs.
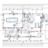
Grundriss:
Erdgeschoss:
– Eingangsbereich
– Gäste-WC
– Abstellraum
– Offene Küche, Ess- und Wohnbereich
– Schlafzimmer mit eigenem Bad
– Überdachte und offene Terrasse
– Zugang zum Garten mit Swimmingpool
– Garage (35 m²)
Obergeschoss:
– Flur
– Zwei Schlafzimmer
– Zwei Badezimmer (jeweils im Schlafzimmer)
– Großzügige Terrasse
Ausstattung und Merkmale:
– Entfernung zum Meer und Strand: 1200 m
– Neubau
– Moderne Architektur
– Swimmingpool (19 m²)
– Dreifachverglasung und Glasschiebewände
– Elektrische Rollläden
– Moskitonetze
– Klimaanlage
– Fußbodenheizung in den Badezimmern
– Kamin
– Einbruchsichere Eingangstür
– Attraktive freitragende Treppe
– Eingezäunter Garten
– Garage + zwei Außenstellplätze
Diese Immobilie Dies ist eine hervorragende Gelegenheit, ein modernes Haus mit Pool in Vodice zu erwerben, einem der begehrtesten Orte Mitteldalmatiens. Vodice ist bekannt für seine gepflegten Strände, sein vielfältiges touristisches Angebot und die Nähe zu Šibenik sowie den Nationalparks Krka und Kornati. Eine ideale Kombination aus ruhiger Lage, modernem Design und hochwertiger Bauweise.
Sehr geehrte Kunden, die Maklerprovision wird gemäß den Allgemeinen Geschäftsbedingungen berechnet:
www.dux-nekretnine.hr/opci-uvjeti-poslovanja.
ID CODE: 44560
Wir bieten Ihnen ein attraktives, freistehendes Einfamilienhaus mit Pool in ruhiger Lage in Vodice, nur 1200 m vom Meer und gepflegten Stränden entfernt. Das Haus befindet sich derzeit im Bau und wird voraussichtlich im Frühjahr/Sommer 2026 bezugsfertig sein. Dank moderner Architektur, hochwertiger Bauweise und optimaler Raumaufteilung eignet es sich ideal für Familien, Urlauber oder als Kapitalanlage zur touristischen Vermietung.
Das moderne, zweigeschossige Haus bietet eine Wohnfläche von 176,40 m², einen 19 m² großen Pool und liegt auf einem 497 m² großen Grundstück. Besonders hervorzuheben sind die großzügigen, 65 m² großen überdachten und offenen Terrassen, die ganzjährig zum Verweilen im Freien einladen.
Das Haus besteht aus Erdgeschoss und Obergeschoss, die durch eine elegante, freitragende Wendeltreppe verbunden sind, welche dem Interieur eine besondere ästhetische Note verleiht.
Im Erdgeschoss befinden sich ein Eingangsbereich mit Flur, Gäste-WC und Abstellraum, gefolgt von einem großzügigen, offenen Wohnbereich mit Küche, Esszimmer und Wohnzimmer, der dank großer Glaswände lichtdurchflutet ist. Im Anbau des Erdgeschosses befindet sich ein Schlafzimmer mit eigenem Bad. Vom Wohnzimmer gelangt man auf eine schöne Terrasse mit Außenbar und in einen schön angelegten Garten mit Swimmingpool. Hinter dem Haus befindet sich eine 35 m² große Garage, die über einen Abstellraum im Eingangsbereich mit dem Hauptteil des Hauses verbunden ist.
Im Obergeschoss befinden sich ein Flur und zwei geräumige Schlafzimmer, jeweils mit eigenem Bad und Zugang zu einer großen Terrasse – ideal zum Entspannen und Genießen der ruhigen Umgebung.
Der Garten ist teils gepflastert, teils als Grünfläche angelegt. Das Grundstück ist komplett umzäunt, und neben der Garage befinden sich zwei zusätzliche Außenstellplätze. Der Swimmingpool liegt im vorderen Bereich des Gartens und bildet den Mittelpunkt des Außenbereichs.
Grundriss:
Erdgeschoss:
– Eingangsbereich
– Gäste-WC
– Abstellraum
– Offene Küche, Ess- und Wohnbereich
– Schlafzimmer mit eigenem Bad
– Überdachte und offene Terrasse
– Zugang zum Garten mit Swimmingpool
– Garage (35 m²)
Obergeschoss:
– Flur
– Zwei Schlafzimmer
– Zwei Badezimmer (jeweils im Schlafzimmer)
– Großzügige Terrasse
Ausstattung und Merkmale:
– Entfernung zum Meer und Strand: 1200 m
– Neubau
– Moderne Architektur
– Swimmingpool (19 m²)
– Dreifachverglasung und Glasschiebewände
– Elektrische Rollläden
– Moskitonetze
– Klimaanlage
– Fußbodenheizung in den Badezimmern
– Kamin
– Einbruchsichere Eingangstür
– Attraktive freitragende Treppe
– Eingezäunter Garten
– Garage + zwei Außenstellplätze
Diese Immobilie Dies ist eine hervorragende Gelegenheit, ein modernes Haus mit Pool in Vodice zu erwerben, einem der begehrtesten Orte Mitteldalmatiens. Vodice ist bekannt für seine gepflegten Strände, sein vielfältiges touristisches Angebot und die Nähe zu Šibenik sowie den Nationalparks Krka und Kornati. Eine ideale Kombination aus ruhiger Lage, modernem Design und hochwertiger Bauweise.
Sehr geehrte Kunden, die Maklerprovision wird gemäß den Allgemeinen Geschäftsbedingungen berechnet:
www.dux-nekretnine.hr/opci-uvjeti-poslovanja.
ID CODE: 44560
Ausstattungsmerkmale
| Anzahl der Etagen im Haus | 1 |
| Bad | 3 |
Karte wird geladen...
Objektstandort
22211 Vodice
- Dalmatien-Sibenik [Sibensko-Kninska]
Kontaktanfrage senden
Über den Anbieter
DUX Nekretnine d.o.o.
Tizianova
51000 Rijeka
Kontakt
| Telefon | +385 91 480 8808 |
| Mobil | +385 91 480 8808 |
Ansprechpartner/in
Domagoj Barić