Herrliches Meerblick-Grundstück mit tollem Projekt und Baulizenz in Camp de Mar
1.700.000 €
Kaufpreis
466 m²
Wohnfläche
4
Zimmer
immobilien.de Nr.: 9418398
Objektnummer: FALC-Nep-62771
Kaufpreis
| Kaufpreis | 1.700.000 € |
Wohnfläche, Grundstück & Bausubstanz
| Wohnfläche | 466 m² |
| Gesamtfläche | 603 m² |
| Grundstücksfläche | 1.177 m² |
| Zimmer | 4 |
| Verfügbar ab | keine Angabe |
Beschreibung der Immobilie
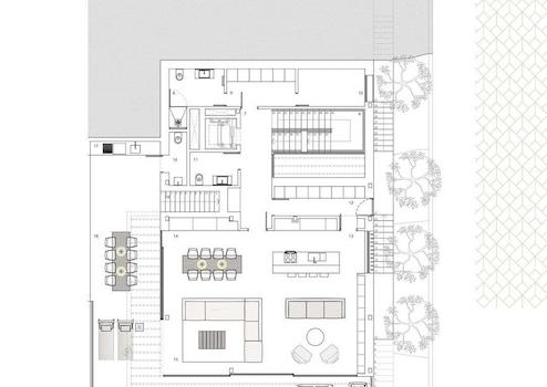
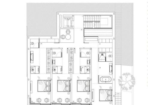
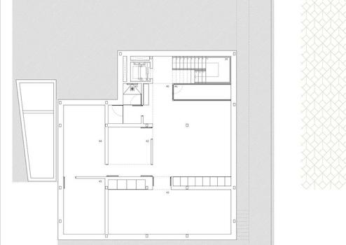
Dieses sonnige Baugrundstück in Camp de Mar, mit einer Fläche von ca. 1.177 m2 und südwestlicher Ausrichtung, wird mit einem exklusiven Projekt und einer vorhandenen Baugenehmigung für die Konstruktion einer luxuriösen Villa mit Meerblick und ca. 603 m2 bebauter Fläche angeboten. Das Projekt dieser einzigartigen, modernen Immobilie besteht aus einem spektakulären Wohn-/Essbereich und einer offenen Küche mit Zugang zum Pool, 4 Schlafzimmern und 5 Bädern, sowie einem Spa- und Fitnessbereich in der unteren Etage. Weitere Ausstattungsmerkmale: Eleganter Fahrstuhl, der alle 4 Etagen bequem miteinander verbindet und ein Doppelstellplatz auf Strassenebene.
Camp de Mar liegt zwischen Paguera und Puerto Andratx und ist ein idyllischer und beschaulicher Badeort im Südwesten von Mallorca. Er ist eine touristische Enklave an der Küste von Andratx, verfügt über einen Strand von einzigartiger Schönheit, mit kristallklarem Wasser und weissem Sand. Ausserdem verfügt dieser Ort über eine kleine Insel und den bekannten Golfplatz Golf de Andratx.
Im Preis inbegriffen ist das Grundstück, das Projekt und die Lizenz. Der Bau dieser traumhaften Villa ist nicht inklusive.
Zögern Sie nicht, uns für weitere Informationen zu kontaktieren!
Camp de Mar liegt zwischen Paguera und Puerto Andratx und ist ein idyllischer und beschaulicher Badeort im Südwesten von Mallorca. Er ist eine touristische Enklave an der Küste von Andratx, verfügt über einen Strand von einzigartiger Schönheit, mit kristallklarem Wasser und weissem Sand. Ausserdem verfügt dieser Ort über eine kleine Insel und den bekannten Golfplatz Golf de Andratx.
Im Preis inbegriffen ist das Grundstück, das Projekt und die Lizenz. Der Bau dieser traumhaften Villa ist nicht inklusive.
Zögern Sie nicht, uns für weitere Informationen zu kontaktieren!
Ausstattungsmerkmale
| Anzahl der Etagen im Haus | 4 |
| Bad | 5 |
| Balkone | 1 |
| Garten | |
| Fahrstuhl | |
| Carport | 2 |
Sonstige Informationen
FALC – Ihre internationale Immobilienagentur mit dem Fokus auf Kundenzufriedenheit.
Zahlreiche Auszeichnungen belegen unseren Anspruch. Unsere kompetenten lokalen Makler kennen den Markt auf Mallorca bis ins Detail und freuen sich darauf, Sie persönlich kennenzulernen. Überzeugen Sie sich selbst – wir sind Ihr verlässlicher Partner, wenn es um den Kauf oder Verkauf Ihrer Traumimmobilie auf Mallorca geht.
Gerne lassen wir Sie von unserem weitreichenden Netzwerk professioneller Dienstleister profitieren – sei es in steuerlichen oder juristischen Fragen, bei administrativer Unterstützung oder der Betreuung Ihrer Ferienimmobilie.
Bitte beachten Sie, dass sämtliche Angaben teilweise oder vollständig auf Informationen des Eigentümers beruhen. Für deren Richtigkeit können wir keine Haftung übernehmen.
Die Inhalte und Bilder dieses Exposés können mit Unterstützung künstlicher Intelligenz (KI) erstellt worden sein.
Zahlreiche Auszeichnungen belegen unseren Anspruch. Unsere kompetenten lokalen Makler kennen den Markt auf Mallorca bis ins Detail und freuen sich darauf, Sie persönlich kennenzulernen. Überzeugen Sie sich selbst – wir sind Ihr verlässlicher Partner, wenn es um den Kauf oder Verkauf Ihrer Traumimmobilie auf Mallorca geht.
Gerne lassen wir Sie von unserem weitreichenden Netzwerk professioneller Dienstleister profitieren – sei es in steuerlichen oder juristischen Fragen, bei administrativer Unterstützung oder der Betreuung Ihrer Ferienimmobilie.
Bitte beachten Sie, dass sämtliche Angaben teilweise oder vollständig auf Informationen des Eigentümers beruhen. Für deren Richtigkeit können wir keine Haftung übernehmen.
Die Inhalte und Bilder dieses Exposés können mit Unterstützung künstlicher Intelligenz (KI) erstellt worden sein.
Karte wird geladen...
Objektstandort
07160 Camp De Mar
- Mallorca
Lage & Infrastruktur
Objektstandort
07160 Camp De Mar
- Mallorca
Die Immobilie liegt in Camp de Mar, einem ruhigen Küstenort im Südwesten Mallorcas. Hier verbindet sich entspanntes Inselleben mit einer Infrastruktur, die den Alltag angenehm unkompliziert macht.
Alltag und Versorgung
Für den täglichen Bedarf ist bestens gesorgt. Mehrere kleine Supermärkte wie Birgit, Torà und Onkar befinden sich in der Nähe und sind bequem zu Fuß erreichbar. Auch ein Postservice liegt in der direkten Umgebung. Wer gerne spontan essen geht, findet rundum eine gute Auswahl. Restaurants wie la Campana, El Mejillón und Lusia Music and Bar liegen ebenfalls in der Nähe.
Freizeit und Erholung
Die Umgebung bietet kurze Wege ins Grüne. Ein kleiner Park an der Carrer de Mercè Rodoreda liegt praktisch um die Ecke, weitere Plätze und Grünflächen sind in der näheren Umgebung vorhanden. Sportlich Aktive profitieren von Angeboten wie dem club tennístic sowie weiteren Sportmöglichkeiten in der Umgebung.
Mobilität und Anbindung
Die nächste Bushaltestelle Palmira 1 ist fußläufig erreichbar, ebenso Palmira 2 und Talaia. Damit sind Ausflüge in die Nachbarorte und Richtung Palma gut planbar. Die nächste Autobahnauffahrt zur Ma 1 liegt in der Nähe und sorgt für eine zügige Verbindung entlang der Südwestküste.
Auch die Anreise ist komfortabel. Der Flughafen Palma de Mallorca ist je nach Verkehr in etwa 30 Minuten mit dem Auto erreichbar. Damit eignet sich die Lage sowohl für den dauerhaften Lebensmittelpunkt als auch als Zweitwohnsitz mit guter Erreichbarkeit.
Vier Highlights in der direkten Umgebung
Palmira 1 als nahegelegene Bushaltestelle, die Autobahnauffahrt zur Ma 1, das Restaurant la Campana sowie der Park an der Carrer de Mercè Rodoreda prägen die Lage mit kurzen Wegen und angenehmer Alltagstauglichkeit.
Alltag und Versorgung
Für den täglichen Bedarf ist bestens gesorgt. Mehrere kleine Supermärkte wie Birgit, Torà und Onkar befinden sich in der Nähe und sind bequem zu Fuß erreichbar. Auch ein Postservice liegt in der direkten Umgebung. Wer gerne spontan essen geht, findet rundum eine gute Auswahl. Restaurants wie la Campana, El Mejillón und Lusia Music and Bar liegen ebenfalls in der Nähe.
Freizeit und Erholung
Die Umgebung bietet kurze Wege ins Grüne. Ein kleiner Park an der Carrer de Mercè Rodoreda liegt praktisch um die Ecke, weitere Plätze und Grünflächen sind in der näheren Umgebung vorhanden. Sportlich Aktive profitieren von Angeboten wie dem club tennístic sowie weiteren Sportmöglichkeiten in der Umgebung.
Mobilität und Anbindung
Die nächste Bushaltestelle Palmira 1 ist fußläufig erreichbar, ebenso Palmira 2 und Talaia. Damit sind Ausflüge in die Nachbarorte und Richtung Palma gut planbar. Die nächste Autobahnauffahrt zur Ma 1 liegt in der Nähe und sorgt für eine zügige Verbindung entlang der Südwestküste.
Auch die Anreise ist komfortabel. Der Flughafen Palma de Mallorca ist je nach Verkehr in etwa 30 Minuten mit dem Auto erreichbar. Damit eignet sich die Lage sowohl für den dauerhaften Lebensmittelpunkt als auch als Zweitwohnsitz mit guter Erreichbarkeit.
Vier Highlights in der direkten Umgebung
Palmira 1 als nahegelegene Bushaltestelle, die Autobahnauffahrt zur Ma 1, das Restaurant la Campana sowie der Park an der Carrer de Mercè Rodoreda prägen die Lage mit kurzen Wegen und angenehmer Alltagstauglichkeit.
Kontaktanfrage senden
Über den Anbieter
FALC Immobilien GmbH & Co. KG
Humperdickstr. 3
53773 Hennef (Sieg)
Kontakt
| Telefon | +34 601 902783 |
| Mobil | +34 670 708797 |
| Fax | +49 2242 9010319 |
| Website | www.falcimmo.de |
Ansprechpartner/in
Frau Anna Petrova