Beeindruckendes Baugrundstück mit Meerblick, Baulizenz und Projekt in Camp de Mar
1.600.000 €
Kaufpreis
410 m²
Wohnfläche
4
Zimmer
immobilien.de Nr.: 9418389
Objektnummer: FALC-Nep-62773
Kaufpreis
| Kaufpreis | 1.600.000 € |
Wohnfläche, Grundstück & Bausubstanz
| Wohnfläche | 410 m² |
| Gesamtfläche | 602 m² |
| Grundstücksfläche | 1.201 m² |
| Zimmer | 4 |
| Verfügbar ab | keine Angabe |
Beschreibung der Immobilie
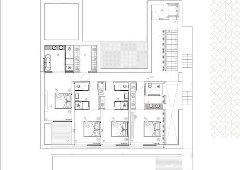
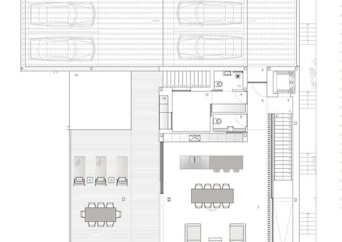
Dieses sensationelle Baugrundstück in Camp de Mar, mit einer Fläche von ca. 1.201 m2 und südwestlicher Ausrichtung, wird mit einem exklusiven Projekt und einer vorhandenen Baugenehmigung für die Konstruktion einer luxuriösen Villa mit Meerblick und ca. 602 m2 bebauter Fläche angeboten. Das Projekt dieser einzigartigen, modernen Immobilie besteht aus einem spektakulären Wohn-/Essbereich und einer offenen Küche, 4 Schlafzimmern und 5 Bädern, sowie einem Fitnessbereich in der unteren Etage. Weitere Ausstattungsmerkmale: Ein wunderschöner Pool umgeben von Grunflächen, ein eleganter Fahrstuhl, der alle 4 Etagen bequem miteinander verbindet und 4 überdachte Stellplätze auf Strassenebene.
Camp de Mar liegt zwischen Paguera und Puerto Andratx und ist ein idyllischer und beschaulicher Badeort im Südwesten von Mallorca. Er ist eine touristische Enklave an der Küste von Andratx, verfügt über einen Strand von einzigartiger Schönheit, mit kristallklarem Wasser und weissem Sand. Ausserdem verfügt dieser Ort über eine kleine Insel und den bekannten Golfplatz Golf de Andratx.
Im Preis inbegriffen ist das Grundstück, das Projekt und die Lizenz. Der Bau dieser traumhaften Villa ist nicht inklusive.
Zögern Sie nicht, uns für weitere Informationen zu kontaktieren!
Camp de Mar liegt zwischen Paguera und Puerto Andratx und ist ein idyllischer und beschaulicher Badeort im Südwesten von Mallorca. Er ist eine touristische Enklave an der Küste von Andratx, verfügt über einen Strand von einzigartiger Schönheit, mit kristallklarem Wasser und weissem Sand. Ausserdem verfügt dieser Ort über eine kleine Insel und den bekannten Golfplatz Golf de Andratx.
Im Preis inbegriffen ist das Grundstück, das Projekt und die Lizenz. Der Bau dieser traumhaften Villa ist nicht inklusive.
Zögern Sie nicht, uns für weitere Informationen zu kontaktieren!
Ausstattungsmerkmale
| Anzahl der Etagen im Haus | 4 |
| Bad | 5 |
| Balkone | 1 |
| Garten | |
| Fahrstuhl | |
| Carport | 4 |
Sonstige Informationen
FALC – Ihre internationale Immobilienagentur mit dem Fokus auf Kundenzufriedenheit.
Zahlreiche Auszeichnungen belegen unseren Anspruch. Unsere kompetenten lokalen Makler kennen den Markt auf Mallorca bis ins Detail und freuen sich darauf, Sie persönlich kennenzulernen. Überzeugen Sie sich selbst – wir sind Ihr verlässlicher Partner, wenn es um den Kauf oder Verkauf Ihrer Traumimmobilie auf Mallorca geht.
Gerne lassen wir Sie von unserem weitreichenden Netzwerk professioneller Dienstleister profitieren – sei es in steuerlichen oder juristischen Fragen, bei administrativer Unterstützung oder der Betreuung Ihrer Ferienimmobilie.
Bitte beachten Sie, dass sämtliche Angaben teilweise oder vollständig auf Informationen des Eigentümers beruhen. Für deren Richtigkeit können wir keine Haftung übernehmen.
Die Inhalte und Bilder dieses Exposés können mit Unterstützung künstlicher Intelligenz (KI) erstellt worden sein.
Zahlreiche Auszeichnungen belegen unseren Anspruch. Unsere kompetenten lokalen Makler kennen den Markt auf Mallorca bis ins Detail und freuen sich darauf, Sie persönlich kennenzulernen. Überzeugen Sie sich selbst – wir sind Ihr verlässlicher Partner, wenn es um den Kauf oder Verkauf Ihrer Traumimmobilie auf Mallorca geht.
Gerne lassen wir Sie von unserem weitreichenden Netzwerk professioneller Dienstleister profitieren – sei es in steuerlichen oder juristischen Fragen, bei administrativer Unterstützung oder der Betreuung Ihrer Ferienimmobilie.
Bitte beachten Sie, dass sämtliche Angaben teilweise oder vollständig auf Informationen des Eigentümers beruhen. Für deren Richtigkeit können wir keine Haftung übernehmen.
Die Inhalte und Bilder dieses Exposés können mit Unterstützung künstlicher Intelligenz (KI) erstellt worden sein.
Karte wird geladen...
Objektstandort
07160 Camp De Mar
- Mallorca
Lage & Infrastruktur
Objektstandort
07160 Camp De Mar
- Mallorca
Die Immobilie liegt in Camp de Mar im begehrten Südwesten Mallorcas und verbindet ruhiges Küstenflair mit einer alltagstauglichen Infrastruktur. Die Umgebung ist geprägt von kurzen Wegen, mediterraner Landschaft und einer angenehmen Mischung aus Erholung und guter Erreichbarkeit.
Nahversorgung und Alltag
Für den täglichen Bedarf ist bestens gesorgt. Mehrere Supermärkte befinden sich in der Nähe und sind bequem zu Fuß erreichbar. Auch ein medizinisches Angebot ist schnell erreichbar, darunter ein Medical center in der Umgebung. Praktisch im Alltag ist zudem ein Post beziehungsweise Paketservice in der Nähe.
Gastronomie und Freizeit
Camp de Mar steht für entspanntes Ausgehen ohne lange Wege. Restaurants wie la Campana und El Mejillón sowie die Bar Harri’s liegen in der Nähe und bieten eine gute Auswahl für den Abend oder den spontanen Kaffee. Für Bewegung und Freizeit gibt es Sportangebote in der Umgebung, darunter der club tennístic sowie weitere Sportmöglichkeiten. Grünflächen und kleine Plätze wie die Plaza Pedro Ozoup sorgen für zusätzliche Aufenthaltsqualität.
Mobilität und Anbindung
Die nächste Bushaltestelle Palmira 1 (Peguera) liegt in der Nähe und bietet eine unkomplizierte Anbindung in die Umgebung. Mit dem Auto erreichen Sie die nächste Autobahnauffahrt in wenigen Minuten, was Fahrten entlang der Südwestküste besonders komfortabel macht. Der Flughafen Palma de Mallorca ist je nach Verkehr in etwa 30 Minuten erreichbar und damit auch für regelmäßige An und Abreisen sehr gut angebunden.
Kurzfazit
Eine Lage, die Ruhe und Küstennähe mit kurzen Wegen zu Einkauf, Gastronomie und Freizeit verbindet und gleichzeitig durch Bus, Autobahn und Flughafen eine überzeugende Erreichbarkeit bietet.
Nahversorgung und Alltag
Für den täglichen Bedarf ist bestens gesorgt. Mehrere Supermärkte befinden sich in der Nähe und sind bequem zu Fuß erreichbar. Auch ein medizinisches Angebot ist schnell erreichbar, darunter ein Medical center in der Umgebung. Praktisch im Alltag ist zudem ein Post beziehungsweise Paketservice in der Nähe.
Gastronomie und Freizeit
Camp de Mar steht für entspanntes Ausgehen ohne lange Wege. Restaurants wie la Campana und El Mejillón sowie die Bar Harri’s liegen in der Nähe und bieten eine gute Auswahl für den Abend oder den spontanen Kaffee. Für Bewegung und Freizeit gibt es Sportangebote in der Umgebung, darunter der club tennístic sowie weitere Sportmöglichkeiten. Grünflächen und kleine Plätze wie die Plaza Pedro Ozoup sorgen für zusätzliche Aufenthaltsqualität.
Mobilität und Anbindung
Die nächste Bushaltestelle Palmira 1 (Peguera) liegt in der Nähe und bietet eine unkomplizierte Anbindung in die Umgebung. Mit dem Auto erreichen Sie die nächste Autobahnauffahrt in wenigen Minuten, was Fahrten entlang der Südwestküste besonders komfortabel macht. Der Flughafen Palma de Mallorca ist je nach Verkehr in etwa 30 Minuten erreichbar und damit auch für regelmäßige An und Abreisen sehr gut angebunden.
Kurzfazit
Eine Lage, die Ruhe und Küstennähe mit kurzen Wegen zu Einkauf, Gastronomie und Freizeit verbindet und gleichzeitig durch Bus, Autobahn und Flughafen eine überzeugende Erreichbarkeit bietet.
Kontaktanfrage senden
Über den Anbieter
FALC Immobilien GmbH & Co. KG
Humperdickstr. 3
53773 Hennef (Sieg)
Kontakt
| Telefon | +34 601 902783 |
| Mobil | +34 670 708797 |
| Fax | +49 2242 9010319 |
| Website | www.falcimmo.de |
Ansprechpartner/in
Frau Anna Petrova