RIJEKA, KOSTRENA – exklusive Wohnung 141,72 m2 Neubau mit wunderschönem Meerblick + Garten 59,94 m2 – S1-A
595.300 €
Kaufpreis
4
Zimmer
immobilien.de Nr.: 9417959
Objektnummer: 44543
Kaufpreis
| Kaufpreis | 595.300 € |
Wohnfläche, Grundstück & Bausubstanz
| Gesamtfläche | 141 m² |
| Zimmer | 4 |
| Verfügbar ab | keine Angabe |
Beschreibung der Immobilie
RIJEKA, KOSTRENA – Exklusive Wohnung (141,72 m²) im Neubau mit herrlichem Meerblick + Garten (59,94 m²) – S1-A
Wir bieten Ihnen eine Immobilie mit modernem Design und Eleganz, hohem Komfort und erstklassiger Ausstattung in ruhiger, schöner Lage in der Nähe von öffentlichen Verkehrsmitteln, Schulen, Kindergärten und Einkaufszentren. Rijeka ist nur zehn Autominuten entfernt.
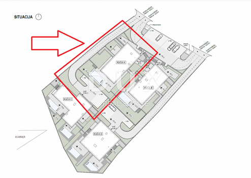
Der Komplex besteht aus vier Wohngebäuden mit insgesamt acht Wohnungen und befindet sich nördlich der Adria-Autobahn im Gebiet „Zelena Kostrena“. Von hier aus genießen Sie einen wunderschönen Blick über die gesamte Kvarner-Region.
In unmittelbarer Nähe verlaufen zehn Kilometer gut ausgebaute Wander-, Rad- und Fitnesswege durch die höchsten Lagen von Kostrena, vom Solin-Gipfel bis zum Sopalj-Gipfel.
Die Zufahrt zu den Häusern erfolgt über die obere Straße, deren Ausbau geplant ist.
Jedes Haus verfügt über vier Außenstellplätze, bzw. zwei Stellplätze pro Wohneinheit. Jedes Haus besteht aus zwei Wohnungen.
Die Wohnungen auf den beiden oberen Grundstücken liegen übereinander, während die Wohnungen auf den beiden unteren Grundstücken nebeneinander liegen.
Jede Wohnung hat einen eigenen Gartenbereich.
Wohnung S1 - A (Haus A):
WOHNRÄUME:
- Wohn-/Esszimmer 27,81
- Küche 9,84
- Schlafzimmer 11,99
- Schlafzimmer 11,99
- Schlafzimmer 16,41
- Badezimmer 3,71
- Flur 11,30
- Abstellraum 2,63
- WC 2,11
- Badezimmer 4,59
- Waschküche 2,37
- Eingang 5,96
- überdachte Terrasse 26,42
- überdachter Eingang 4,59
GESAMTWOHNFLÄCHE: 141,72 m²
ZUBEHÖRIGE RÄUME:
- Abstellraum 6,48
- Grünfläche 8,00
- Terrasse 12,34
- Grünfläche 5,16
- Parkplatz 1 13,89
- Parkplatz 2 14.07
GESAMTFUSSFLÄCHE DER ZUGEHÖRIGEN FLÄCHEN: 59,94 m²
WOHNUNG S1-A GESAMTFLÄCHE (m²): 201,66 m²
Dieses luxuriöse Apartment ist auf maximalen Komfort ausgelegt.
AUSSTATTUNG:
Das Haus, in dem sich das Apartment befindet, ist hochwertig gebaut und luxuriös ausgestattet. Alle verwendeten Materialien sowie Boden- und Wandbeläge entsprechen höchsten Standards.
- 10 cm dicke Fassadendämmung
- Fußbodenheizung - Wärmepumpen
- Hochwertige Aluminiumfenster und -türen.
Das Apartment verfügt über einen eigenen Garten und 2 Parkplätze.
PREIS:
Der angegebene Preis bezieht sich auf eine komplett bezugsfertige Wohnung ohne Möbel.
Der Preis beinhaltet die Mehrwertsteuer. Der Käufer ist von der Grunderwerbsteuer befreit.
Bei Kauf von einem in Kroatien registrierten Unternehmen ist eine vollständige Mehrwertsteuerrückerstattung nach dem Verkauf möglich.
Sauberes und gepflegtes Objekt. Ein wunderschönes Anwesen, ideal für ein luxuriöses Familienleben, aber auch als Investition im Bereich gehobener Tourismus geeignet.
EINZIGARTIGES ANWESEN IN TOPLAGE – UNBEDINGT ANSEHEN!
KOSTRENA
Kostrena ist ein traditionsreicher, beliebter Badeort, der erstmals im frühen 15. Jahrhundert urkundlich erwähnt wurde. 1874 erlangte er seine erste kommunale Unabhängigkeit, die er jedoch nur zwei Jahre lang behielt. Der Ort ist in zwei Teile gegliedert: St. Lucia und St. Barbara, benannt nach den beiden Kirchen, die sich in der Gegend befinden.
Kostrena liegt in unmittelbarer Nähe von Rijeka, eingebettet zwischen der Martinšćica-Bucht und der Bakar-Bucht. Die Halbinsel Kostrena ist etwa 10 Kilometer lang und fällt sanft zur Küste ab. Entlang ihrer gesamten Länge erstrecken sich wunderschöne Strände, die im Sommer von Tausenden von Badegästen besucht werden. Die bekanntesten und meistbesuchten Orte liegen in der Bucht von Žurkovo, gefolgt von Smokvinovo, Svežanj, Spužvina, Podražica, Nova voda und Perilo. Kostrena besteht aus etwa zwanzig Siedlungen, von denen viele nach Familien benannt wurden. Die heute bevölkerungsreichsten sind Vrh Martinšćice, Glavani, Sv. Lucija, Rožmanići, Doričići und Paveki. Charakteristisch für diese Region ist eine Karstlandschaft mit mediterraner Vegetation, die berühmte Kostrena-Gromača und ein mildes Klima, das gelegentlich von kräftigen Bora-Böen begleitet wird.
Sehr geehrte Kunden, die Maklerprovision wird gemäß den Allgemeinen Geschäftsbedingungen berechnet:
www.dux-nekretnine.hr/opci-uvjeti-poslovanja
Sehr geehrte Kauf-, Miet- und Pachtinteressenten,
die Besichtigung der Immobilie, die Sie interessiert, ist ausschließlich nach Unterzeichnung eines Maklervertrags möglich. Dies dient dem Schutz des Eigentümers vor unberechtigten Besuchen und entspricht dem Datenschutzgesetz und dem Maklergesetz.
Bei jeder Besichtigung ist der Kauf-, Miet- oder Pachtinteressent verpflichtet, einen Maklervertrag auszufüllen und zu unterzeichnen. Dieser enthält folgende Angaben:
- grundlegende Informationen zum Kauf-, Miet- oder Pachtinteressenten
- grundlegende Informationen zum Maklerbüro
- Höhe der Maklerprovision
Die Maklerprovision für den Kauf beträgt 3 % (+ 25 % MwSt.) des vereinbarten Kaufpreises.
Die Maklerprovision für den Pachtinteressenten beträgt eine Monatsmiete (+ 25 % MwSt.).
ID CODE: 44543
Wir bieten Ihnen eine Immobilie mit modernem Design und Eleganz, hohem Komfort und erstklassiger Ausstattung in ruhiger, schöner Lage in der Nähe von öffentlichen Verkehrsmitteln, Schulen, Kindergärten und Einkaufszentren. Rijeka ist nur zehn Autominuten entfernt.
Der Komplex besteht aus vier Wohngebäuden mit insgesamt acht Wohnungen und befindet sich nördlich der Adria-Autobahn im Gebiet „Zelena Kostrena“. Von hier aus genießen Sie einen wunderschönen Blick über die gesamte Kvarner-Region.
In unmittelbarer Nähe verlaufen zehn Kilometer gut ausgebaute Wander-, Rad- und Fitnesswege durch die höchsten Lagen von Kostrena, vom Solin-Gipfel bis zum Sopalj-Gipfel.
Die Zufahrt zu den Häusern erfolgt über die obere Straße, deren Ausbau geplant ist.
Jedes Haus verfügt über vier Außenstellplätze, bzw. zwei Stellplätze pro Wohneinheit. Jedes Haus besteht aus zwei Wohnungen.
Die Wohnungen auf den beiden oberen Grundstücken liegen übereinander, während die Wohnungen auf den beiden unteren Grundstücken nebeneinander liegen.
Jede Wohnung hat einen eigenen Gartenbereich.
Wohnung S1 - A (Haus A):
WOHNRÄUME:
- Wohn-/Esszimmer 27,81
- Küche 9,84
- Schlafzimmer 11,99
- Schlafzimmer 11,99
- Schlafzimmer 16,41
- Badezimmer 3,71
- Flur 11,30
- Abstellraum 2,63
- WC 2,11
- Badezimmer 4,59
- Waschküche 2,37
- Eingang 5,96
- überdachte Terrasse 26,42
- überdachter Eingang 4,59
GESAMTWOHNFLÄCHE: 141,72 m²
ZUBEHÖRIGE RÄUME:
- Abstellraum 6,48
- Grünfläche 8,00
- Terrasse 12,34
- Grünfläche 5,16
- Parkplatz 1 13,89
- Parkplatz 2 14.07
GESAMTFUSSFLÄCHE DER ZUGEHÖRIGEN FLÄCHEN: 59,94 m²
WOHNUNG S1-A GESAMTFLÄCHE (m²): 201,66 m²
Dieses luxuriöse Apartment ist auf maximalen Komfort ausgelegt.
AUSSTATTUNG:
Das Haus, in dem sich das Apartment befindet, ist hochwertig gebaut und luxuriös ausgestattet. Alle verwendeten Materialien sowie Boden- und Wandbeläge entsprechen höchsten Standards.
- 10 cm dicke Fassadendämmung
- Fußbodenheizung - Wärmepumpen
- Hochwertige Aluminiumfenster und -türen.
Das Apartment verfügt über einen eigenen Garten und 2 Parkplätze.
PREIS:
Der angegebene Preis bezieht sich auf eine komplett bezugsfertige Wohnung ohne Möbel.
Der Preis beinhaltet die Mehrwertsteuer. Der Käufer ist von der Grunderwerbsteuer befreit.
Bei Kauf von einem in Kroatien registrierten Unternehmen ist eine vollständige Mehrwertsteuerrückerstattung nach dem Verkauf möglich.
Sauberes und gepflegtes Objekt. Ein wunderschönes Anwesen, ideal für ein luxuriöses Familienleben, aber auch als Investition im Bereich gehobener Tourismus geeignet.
EINZIGARTIGES ANWESEN IN TOPLAGE – UNBEDINGT ANSEHEN!
KOSTRENA
Kostrena ist ein traditionsreicher, beliebter Badeort, der erstmals im frühen 15. Jahrhundert urkundlich erwähnt wurde. 1874 erlangte er seine erste kommunale Unabhängigkeit, die er jedoch nur zwei Jahre lang behielt. Der Ort ist in zwei Teile gegliedert: St. Lucia und St. Barbara, benannt nach den beiden Kirchen, die sich in der Gegend befinden.
Kostrena liegt in unmittelbarer Nähe von Rijeka, eingebettet zwischen der Martinšćica-Bucht und der Bakar-Bucht. Die Halbinsel Kostrena ist etwa 10 Kilometer lang und fällt sanft zur Küste ab. Entlang ihrer gesamten Länge erstrecken sich wunderschöne Strände, die im Sommer von Tausenden von Badegästen besucht werden. Die bekanntesten und meistbesuchten Orte liegen in der Bucht von Žurkovo, gefolgt von Smokvinovo, Svežanj, Spužvina, Podražica, Nova voda und Perilo. Kostrena besteht aus etwa zwanzig Siedlungen, von denen viele nach Familien benannt wurden. Die heute bevölkerungsreichsten sind Vrh Martinšćice, Glavani, Sv. Lucija, Rožmanići, Doričići und Paveki. Charakteristisch für diese Region ist eine Karstlandschaft mit mediterraner Vegetation, die berühmte Kostrena-Gromača und ein mildes Klima, das gelegentlich von kräftigen Bora-Böen begleitet wird.
Sehr geehrte Kunden, die Maklerprovision wird gemäß den Allgemeinen Geschäftsbedingungen berechnet:
www.dux-nekretnine.hr/opci-uvjeti-poslovanja
Sehr geehrte Kauf-, Miet- und Pachtinteressenten,
die Besichtigung der Immobilie, die Sie interessiert, ist ausschließlich nach Unterzeichnung eines Maklervertrags möglich. Dies dient dem Schutz des Eigentümers vor unberechtigten Besuchen und entspricht dem Datenschutzgesetz und dem Maklergesetz.
Bei jeder Besichtigung ist der Kauf-, Miet- oder Pachtinteressent verpflichtet, einen Maklervertrag auszufüllen und zu unterzeichnen. Dieser enthält folgende Angaben:
- grundlegende Informationen zum Kauf-, Miet- oder Pachtinteressenten
- grundlegende Informationen zum Maklerbüro
- Höhe der Maklerprovision
Die Maklerprovision für den Kauf beträgt 3 % (+ 25 % MwSt.) des vereinbarten Kaufpreises.
Die Maklerprovision für den Pachtinteressenten beträgt eine Monatsmiete (+ 25 % MwSt.).
ID CODE: 44543
Ausstattungsmerkmale
| Anzahl der Etagen im Haus | 1 |
| Inserat befindet sich im Stockwerk | 1 |
| Bad | 2 |
Karte wird geladen...
Objektstandort
51221 Kostrena
- Kvarner Region [Primorsko-Goranska]
Kontaktanfrage senden
Über den Anbieter
DUX Nekretnine d.o.o.
Tizianova
51000 Rijeka
Kontakt
| Telefon | +385 91 480 8808 |
| Mobil | +385 91 480 8808 |
Ansprechpartner/in
Patrik Hrštić