RIJEKA, KOSTRENA – exklusive Maisonette-Wohnung 210,50 m2 Neubau mit wunderschönem Meerblick und Swimmingpool + Garten 350,93 m2 – S2-B
884.100 €
Kaufpreis
5
Zimmer
immobilien.de Nr.: 9417951
Objektnummer: 44548
Kaufpreis
| Kaufpreis | 884.100 € |
Wohnfläche, Grundstück & Bausubstanz
| Gesamtfläche | 210 m² |
| Zimmer | 5 |
| Verfügbar ab | keine Angabe |
Beschreibung der Immobilie
RIJEKA, KOSTRENA – Exklusive Maisonette-Wohnung (210,50 m²) im Neubau mit herrlichem Meerblick und Pool + Garten (350,93 m²) – S2-B
Wir bieten Ihnen eine Immobilie mit modernem Design und Eleganz, hohem Komfort und erstklassiger Ausstattung in ruhiger, schöner Lage. Öffentliche Verkehrsmittel, Schulen, Kindergärten und Einkaufszentren sind in unmittelbarer Nähe, und Rijeka ist nur zehn Autominuten entfernt.
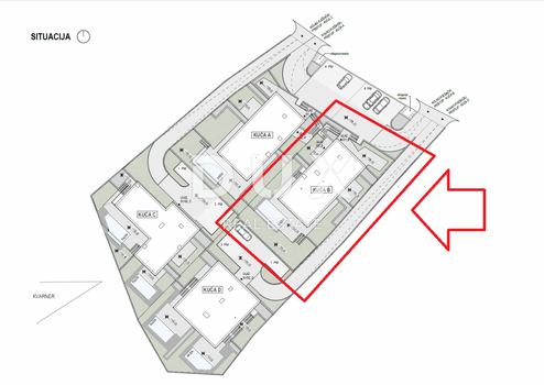
Der Komplex besteht aus vier Wohngebäuden mit insgesamt acht Wohnungen und befindet sich nördlich der Adria-Autobahn im Gebiet „Zelena Kostrena“. Von hier aus genießen Sie einen wunderschönen Blick über die gesamte Kvarner-Region.
In unmittelbarer Nähe verlaufen zehn Kilometer gut ausgebaute Wander-, Rad- und Fitnesswege durch die höchsten Lagen von Kostrena, vom Solin-Gipfel bis zum Sopalj-Gipfel.
Die Zufahrt zu den Häusern erfolgt über die obere Straße, deren Ausbau geplant ist.
Jedes Haus verfügt über vier Außenstellplätze, bzw. zwei Stellplätze pro Wohneinheit. Jedes Haus besteht aus zwei Wohnungen. Die Wohnungen auf den beiden oberen Grundstücken liegen übereinander, während die Wohnungen auf den beiden unteren Grundstücken nebeneinander liegen. Jede Wohnung hat einen eigenen Gartenbereich.
Wohnung S2 - B, Haus B:
WOHNRÄUME:
- Wohn-/Esszimmer 40,92
- Küche 7,79
- Speisekammer 3,26
- Arbeitszimmer 9,17
- Zimmer 19,20
- Badezimmer 6,59
- Eingang 6,63
- Flur 4,04
- WC 3,01
- Treppenhaus 7,52
- Flur 5,46
- Badezimmer 4,38
- Badezimmer 4,38
- Zimmer 14,36
- Zimmer 18,35
- Zimmer 14,60
- Waschküche 4,87
- Abstellraum 5,77
- Terrasse 25,74
- überdachter Eingang 4,46 GESAMTWOHNFLÄCHE: 210,50 m²
ZUGEHÖRIGE RÄUME:
- Abstellraum 6,48
- Grünfläche 3,40
- Eingangshalle 16,27
- Grünfläche 17,48
- Grünfläche 3,59
- Grünfläche 37,24
- Terrasse 53,85
- Swimmingpool 27,30
- Grünfläche 83,19
- Grünfläche 30,59
- Grünfläche 8,95
- Terrasse 14,03
- Grünfläche 11,37
- Grünfläche 6,98
- Parkplatz 3 15,01
- Parkplatz 4 15,20 GESAMTFLÄCHE DER ZUGEHÖRIGEN FLÄCHEN: 350,93 m²
WOHNUNG S2-B GESAMTFLÄCHE: 561,43 m²
Dieses luxuriöse Apartment ist auf maximalen Komfort ausgelegt.
AUSSTATTUNG:
Das Haus, in dem sich die Wohnung befindet, ist solide gebaut und luxuriös ausgestattet. Alle verwendeten Materialien sowie Boden- und Wandbeläge entsprechen höchsten Standards.
- 10 cm dicke Fassadenisolierung
- Fußbodenheizung - Wärmepumpen
- Hochwertige Aluminiumfenster und -türen
Die Wohnung verfügt über einen eigenen Garten und 2 Parkplätze.
PREIS:
Der angegebene Preis bezieht sich auf eine komplett bezugsfertige Immobilie ohne Möbel.
Der Preis beinhaltet die Mehrwertsteuer. Der Käufer ist von der Grundsteuer befreit.
Bei Kauf von einem in Kroatien registrierten Unternehmen ist eine vollständige Mehrwertsteuerrückerstattung nach dem Kauf möglich.
Saubere und gepflegte Immobilie.
Eine wunderschöne Immobilie für ein luxuriöses Familienleben, aber auch als Investition im Bereich gehobener Tourismus geeignet.
EINZIGARTIGE IMMOBILIE IN TOP-LAGE, DIE IHRE AUFMERKSAMKEIT VERDIENT!!!
KOSTRENA
Kostrena ist ein alter, beliebter Badeort, der erstmals im frühen 15. Jahrhundert erwähnt wurde. Kostrena erlangte 1874 erstmals kommunale Unabhängigkeit, behielt diese jedoch nur für kurze Zeit, nämlich zwei Jahre. Die Stadt ist in zwei Teile gegliedert: St. Lucia und St. Barbara, benannt nach den beiden Kirchen in ihrem Gebiet.
Kostrena liegt in unmittelbarer Nähe der Stadt Rijeka, eingebettet zwischen der Martinšćica-Bucht und der Bakar-Bucht. Die Halbinsel Kostrena ist etwa 10 Kilometer lang und fällt sanft zur Küste ab. Entlang ihrer gesamten Länge erstrecken sich wunderschöne Strände, die im Sommer von Tausenden von Badegästen besucht werden. Die bekanntesten und meistbesuchten Strände befinden sich in der Žurkovo-Bucht, gefolgt von Smokvinovo, Svežanj, Spužvina, Podražica, Nova voda und Perilo.
Kostrena besteht aus etwa zwanzig Ortschaften, von denen viele nach Familien benannt wurden. Die heute bevölkerungsreichsten sind Vrh Martinšćice, Glavani und Sv. Lucija, Rožmanići, Doričići und Paveki.
Die charakteristische Karstlandschaft mit mediterraner Vegetation und der berühmten Kostrena gromača sowie das milde Klima, das gelegentlich von kräftigen Bora-Böen unterbrochen wird, prägen diese Region.
Sehr geehrte Kunden, die Maklerprovision wird gemäß den Allgemeinen Geschäftsbedingungen berechnet:
www.dux-nekretnine.hr/opci-uvjeti-poslovanja
Sehr geehrte Kauf-, Miet- und Pachtinteressenten,
die Besichtigung der Immobilie, die Sie interessiert, ist ausschließlich nach Unterzeichnung eines Maklervertrags möglich. Dies dient dem Schutz des Eigentümers vor unberechtigten Besuchen und erfolgt in Übereinstimmung mit dem Datenschutzgesetz und dem Maklergesetz. Bei der Besichtigung jeder Immobilie muss der potenzielle Käufer/Mieter/Pächter den Maklervertrag ausfüllen und unterschreiben. Dieser enthält folgende Angaben:
- Grundlegende Informationen zum potenziellen Käufer/Mieter/Pächter
- Grundlegende Informationen zum Maklerbüro
- Höhe der Maklerprovision
Die Maklerprovision für den Käufer beträgt 3 % (+ 25 % MwSt.) des vereinbarten Kaufpreises.
Die Maklerprovision für den Pächter beträgt eine Monatsmiete (+ 25 % MwSt.).
ID CODE: 44548
Wir bieten Ihnen eine Immobilie mit modernem Design und Eleganz, hohem Komfort und erstklassiger Ausstattung in ruhiger, schöner Lage. Öffentliche Verkehrsmittel, Schulen, Kindergärten und Einkaufszentren sind in unmittelbarer Nähe, und Rijeka ist nur zehn Autominuten entfernt.
Der Komplex besteht aus vier Wohngebäuden mit insgesamt acht Wohnungen und befindet sich nördlich der Adria-Autobahn im Gebiet „Zelena Kostrena“. Von hier aus genießen Sie einen wunderschönen Blick über die gesamte Kvarner-Region.
In unmittelbarer Nähe verlaufen zehn Kilometer gut ausgebaute Wander-, Rad- und Fitnesswege durch die höchsten Lagen von Kostrena, vom Solin-Gipfel bis zum Sopalj-Gipfel.
Die Zufahrt zu den Häusern erfolgt über die obere Straße, deren Ausbau geplant ist.
Jedes Haus verfügt über vier Außenstellplätze, bzw. zwei Stellplätze pro Wohneinheit. Jedes Haus besteht aus zwei Wohnungen. Die Wohnungen auf den beiden oberen Grundstücken liegen übereinander, während die Wohnungen auf den beiden unteren Grundstücken nebeneinander liegen. Jede Wohnung hat einen eigenen Gartenbereich.
Wohnung S2 - B, Haus B:
WOHNRÄUME:
- Wohn-/Esszimmer 40,92
- Küche 7,79
- Speisekammer 3,26
- Arbeitszimmer 9,17
- Zimmer 19,20
- Badezimmer 6,59
- Eingang 6,63
- Flur 4,04
- WC 3,01
- Treppenhaus 7,52
- Flur 5,46
- Badezimmer 4,38
- Badezimmer 4,38
- Zimmer 14,36
- Zimmer 18,35
- Zimmer 14,60
- Waschküche 4,87
- Abstellraum 5,77
- Terrasse 25,74
- überdachter Eingang 4,46 GESAMTWOHNFLÄCHE: 210,50 m²
ZUGEHÖRIGE RÄUME:
- Abstellraum 6,48
- Grünfläche 3,40
- Eingangshalle 16,27
- Grünfläche 17,48
- Grünfläche 3,59
- Grünfläche 37,24
- Terrasse 53,85
- Swimmingpool 27,30
- Grünfläche 83,19
- Grünfläche 30,59
- Grünfläche 8,95
- Terrasse 14,03
- Grünfläche 11,37
- Grünfläche 6,98
- Parkplatz 3 15,01
- Parkplatz 4 15,20 GESAMTFLÄCHE DER ZUGEHÖRIGEN FLÄCHEN: 350,93 m²
WOHNUNG S2-B GESAMTFLÄCHE: 561,43 m²
Dieses luxuriöse Apartment ist auf maximalen Komfort ausgelegt.
AUSSTATTUNG:
Das Haus, in dem sich die Wohnung befindet, ist solide gebaut und luxuriös ausgestattet. Alle verwendeten Materialien sowie Boden- und Wandbeläge entsprechen höchsten Standards.
- 10 cm dicke Fassadenisolierung
- Fußbodenheizung - Wärmepumpen
- Hochwertige Aluminiumfenster und -türen
Die Wohnung verfügt über einen eigenen Garten und 2 Parkplätze.
PREIS:
Der angegebene Preis bezieht sich auf eine komplett bezugsfertige Immobilie ohne Möbel.
Der Preis beinhaltet die Mehrwertsteuer. Der Käufer ist von der Grundsteuer befreit.
Bei Kauf von einem in Kroatien registrierten Unternehmen ist eine vollständige Mehrwertsteuerrückerstattung nach dem Kauf möglich.
Saubere und gepflegte Immobilie.
Eine wunderschöne Immobilie für ein luxuriöses Familienleben, aber auch als Investition im Bereich gehobener Tourismus geeignet.
EINZIGARTIGE IMMOBILIE IN TOP-LAGE, DIE IHRE AUFMERKSAMKEIT VERDIENT!!!
KOSTRENA
Kostrena ist ein alter, beliebter Badeort, der erstmals im frühen 15. Jahrhundert erwähnt wurde. Kostrena erlangte 1874 erstmals kommunale Unabhängigkeit, behielt diese jedoch nur für kurze Zeit, nämlich zwei Jahre. Die Stadt ist in zwei Teile gegliedert: St. Lucia und St. Barbara, benannt nach den beiden Kirchen in ihrem Gebiet.
Kostrena liegt in unmittelbarer Nähe der Stadt Rijeka, eingebettet zwischen der Martinšćica-Bucht und der Bakar-Bucht. Die Halbinsel Kostrena ist etwa 10 Kilometer lang und fällt sanft zur Küste ab. Entlang ihrer gesamten Länge erstrecken sich wunderschöne Strände, die im Sommer von Tausenden von Badegästen besucht werden. Die bekanntesten und meistbesuchten Strände befinden sich in der Žurkovo-Bucht, gefolgt von Smokvinovo, Svežanj, Spužvina, Podražica, Nova voda und Perilo.
Kostrena besteht aus etwa zwanzig Ortschaften, von denen viele nach Familien benannt wurden. Die heute bevölkerungsreichsten sind Vrh Martinšćice, Glavani und Sv. Lucija, Rožmanići, Doričići und Paveki.
Die charakteristische Karstlandschaft mit mediterraner Vegetation und der berühmten Kostrena gromača sowie das milde Klima, das gelegentlich von kräftigen Bora-Böen unterbrochen wird, prägen diese Region.
Sehr geehrte Kunden, die Maklerprovision wird gemäß den Allgemeinen Geschäftsbedingungen berechnet:
www.dux-nekretnine.hr/opci-uvjeti-poslovanja
Sehr geehrte Kauf-, Miet- und Pachtinteressenten,
die Besichtigung der Immobilie, die Sie interessiert, ist ausschließlich nach Unterzeichnung eines Maklervertrags möglich. Dies dient dem Schutz des Eigentümers vor unberechtigten Besuchen und erfolgt in Übereinstimmung mit dem Datenschutzgesetz und dem Maklergesetz. Bei der Besichtigung jeder Immobilie muss der potenzielle Käufer/Mieter/Pächter den Maklervertrag ausfüllen und unterschreiben. Dieser enthält folgende Angaben:
- Grundlegende Informationen zum potenziellen Käufer/Mieter/Pächter
- Grundlegende Informationen zum Maklerbüro
- Höhe der Maklerprovision
Die Maklerprovision für den Käufer beträgt 3 % (+ 25 % MwSt.) des vereinbarten Kaufpreises.
Die Maklerprovision für den Pächter beträgt eine Monatsmiete (+ 25 % MwSt.).
ID CODE: 44548
Ausstattungsmerkmale
| Anzahl der Etagen im Haus | 1 |
| Bad | 2 |
Karte wird geladen...
Objektstandort
51221 Kostrena
- Kvarner Region [Primorsko-Goranska]
Kontaktanfrage senden
Über den Anbieter
DUX Nekretnine d.o.o.
Tizianova
51000 Rijeka
Kontakt
| Telefon | +385 91 480 8808 |
| Mobil | +385 91 480 8808 |
Ansprechpartner/in
Patrik Hrštić