Exklusive Villa im Bau in Portals Nous, nur 100 m vom Hafen und vom Strand entfernt
8.500.000 €
Kaufpreis
640 m²
Wohnfläche
6
Zimmer
immobilien.de Nr.: 9389159
Objektnummer: 25-250
Preise & Kosten
| Kaufpreis | 8.500.000 € |
| Nebenkosten | keine Angabe |
| Stellplatz Garage Kaufpreis | 0 € |
Größe & Zustand
| Wohnfläche | 640 m² |
| Grundstücksfläche | 974 m² |
| Zimmer | 6 |
| Verfügbar ab | nach Fertigstellung |
| Zustand | Projektiert |
Energie
| Heizungsart | Fußbodenheizung |
Objektbeschreibung
Wir präsentieren eine spektakuläre Villa im zeitgenössischen Design, die sich derzeit in der frühen Bauphase befindet und nur 100 Meter vom Yachthafen von Portals Nous sowie vom Strand entfernt liegt. Die Immobilie bietet beeindruckende Panoramablicke auf die Berge sowie teilweise Meerblick und vereint Privatsphäre, Luxus und eine erstklassige Lage.
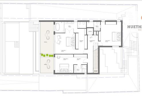
Die Villa wird auf einem großzügigen Grundstück von ca. 1.000 m² errichtet und verfügt über eine bebaute Fläche von 640 m², verteilt auf zwei Etagen sowie ein Untergeschoss mit Aufzug. Dank der Südwest-Ausrichtung genießt das Haus den ganzen Tag über optimale Sonneneinstrahlung.
Im Inneren entstehen fünf großzügige Schlafzimmer mit Bad en suite, alle mit privater Terrasse und spektakulärer Aussicht. Das Erdgeschoss öffnet sich zu einem weitläufigen, offenen Wohnbereich mit direkter Verbindung zu einer modernen italienischen Küche von „Cucine“, ausgestattet mit hochwertigen Gaggenau-Geräten inklusive Weinkühlschrank. Zusätzlich befindet sich auf dieser Ebene ein multifunktionaler Raum, der als weiteres Schlafzimmer, Heimkino, Büro oder Freizeitraum genutzt werden kann, sowie ein eigenes Bad und ein Gäste-WC. Die überdachten und offenen Terrassen führen zum 40 m² großen Pool mit Salzwasseranlage – ideal, um das mediterrane Klima zu genießen.
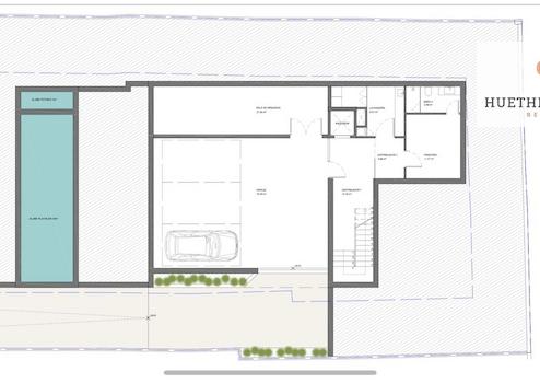
Im Untergeschoss befinden sich eine Garage für drei Fahrzeuge, der Technikraum, eine Waschküche mit Wäscheabwurfschacht von allen Etagen sowie ein weiterer Raum mit eigenem Bad, der flexibel als Fitnessraum, Sauna, Spa oder Gästezimmer genutzt werden kann.
Insgesamt handelt es sich um eine Immobilie mit einzigartigem Lifestyle, die Luxus, Design und Komfort auf höchstem Qualitätsniveau vereint – perfekt als exklusive Hauptresidenz oder prestigeträchtige Zweitwohnsitzvilla auf Mallorca.
Die Villa wird auf einem großzügigen Grundstück von ca. 1.000 m² errichtet und verfügt über eine bebaute Fläche von 640 m², verteilt auf zwei Etagen sowie ein Untergeschoss mit Aufzug. Dank der Südwest-Ausrichtung genießt das Haus den ganzen Tag über optimale Sonneneinstrahlung.
Im Inneren entstehen fünf großzügige Schlafzimmer mit Bad en suite, alle mit privater Terrasse und spektakulärer Aussicht. Das Erdgeschoss öffnet sich zu einem weitläufigen, offenen Wohnbereich mit direkter Verbindung zu einer modernen italienischen Küche von „Cucine“, ausgestattet mit hochwertigen Gaggenau-Geräten inklusive Weinkühlschrank. Zusätzlich befindet sich auf dieser Ebene ein multifunktionaler Raum, der als weiteres Schlafzimmer, Heimkino, Büro oder Freizeitraum genutzt werden kann, sowie ein eigenes Bad und ein Gäste-WC. Die überdachten und offenen Terrassen führen zum 40 m² großen Pool mit Salzwasseranlage – ideal, um das mediterrane Klima zu genießen.
Im Untergeschoss befinden sich eine Garage für drei Fahrzeuge, der Technikraum, eine Waschküche mit Wäscheabwurfschacht von allen Etagen sowie ein weiterer Raum mit eigenem Bad, der flexibel als Fitnessraum, Sauna, Spa oder Gästezimmer genutzt werden kann.
Insgesamt handelt es sich um eine Immobilie mit einzigartigem Lifestyle, die Luxus, Design und Komfort auf höchstem Qualitätsniveau vereint – perfekt als exklusive Hauptresidenz oder prestigeträchtige Zweitwohnsitzvilla auf Mallorca.
Ausstattung
| Anzahl der Etagen im Haus | 2 |
| Küche | Einbauküche |
| Bad | 6 |
| Fahrstuhl | |
| Garage/Stellplätze | 1 |
| Haustiere |
- im Bau
- mit Garten
- Klimaanlage
- Fußbodenheizung
- Heizung
- Kamin
- Aufzug
- Fitnessraum
- Swimmingpool
- Überdachte Terrasse
- Meerblick
- Garage für 3 Fahrzeuge
- mit Garten
- Klimaanlage
- Fußbodenheizung
- Heizung
- Kamin
- Aufzug
- Fitnessraum
- Swimmingpool
- Überdachte Terrasse
- Meerblick
- Garage für 3 Fahrzeuge
Sonstige Informationen
Das Grundstück kann auch ohne Villa für 4.500.000 € erworben werden.
Lage des Objektes
Die Lage ist außergewöhnlich: nur 100 Meter vom Yachthafen von Portals Nous entfernt, einem der exklusivsten Häfen Mallorcas, umgeben von Luxus-Boutiquen, renommierten Restaurants und internationalen Schulen. Palma ist in nur 10 Minuten erreichbar, der Flughafen in etwa 15 Minuten.
Anbieter kontaktieren
Anbieter
HUETHER & PARTNER SL
Ronda del Oeste 76
07680 Porto Cristo
Kontakt
| Telefon | 004915118474105 |
| Mobil | 004915118474105 |
