ISTRIEN, SVETI LOVREČ - Doppelhaushälfte mit Pool
350.000 €
Kaufpreis
4
Zimmer
immobilien.de Nr.: 9372510
Objektnummer: 42700
Preise & Kosten
| Kaufpreis | 350.000 € |
| Nebenkosten | keine Angabe |
Größe & Zustand
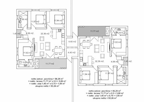
| Gesamtfläche | 93 m² |
| Grundstücksfläche | 500 m² |
| Zimmer | 4 |
| Baujahr | 2026 |
| Verfügbar ab | keine Angabe |
Objektbeschreibung
ISTRIEN, SVETI LOVREČ – Doppelhaushälfte mit Pool
Auf einem Hügel mit herrlichem Blick auf sanfte Felder, Weinberge, Olivenhaine und das Meer in der Ferne liegt Sveti Lovreč. Sveti Lovreč liegt inmitten üppiger Lavendelfelder im Westen der istrischen Halbinsel, im unmittelbaren Hinterland von Vrsar, Poreč und Rovinj und ist eine der am besten erhaltenen mittelalterlichen Festungsstädte Istriens.
Die Lage der Stadt auf einem sanften Hügel, der das Gebiet dominiert, in dem sich 22 Siedlungen, Dörfer und Weiler befinden, zeugt von ihrer bedeutenden Rolle im Laufe der Geschichte.
Entlang der sanft gegliederten Westküste Istriens ragen mehrere tiefe Buchten hervor, von denen die Lim-Bucht teilweise zur Gemeinde Sveti Lovreč gehört. Die Lim-Bucht ist ein Naturphänomen von großem wissenschaftlichen und ästhetischen Wert und wurde zum besonderen Meeresschutzgebiet erklärt.
In einer ruhigen Wohngegend in der Nähe von Sveti Lovreč steht eine Doppelhaushälfte mit Swimmingpool zum Verkauf.
Die Mikrolage bietet das authentische Erlebnis einer istrischen Kleinstadt, Intimität, Erholung von Hektik und Lärm und liegt gleichzeitig nah genug an dynamischen istrischen Städten mit zahlreichen Annehmlichkeiten.
Neben der günstigen Lage zeichnet sich die Immobilie auch durch die hochwertige Bauausführung aus, die langfristige Zufriedenheit und Lebensqualität garantiert.
Das Haus mit seiner zeitlosen Architektur fügt sich in Form und Farbe in die Siedlung und Landschaft ein und ist als eine Wohneinheit konzipiert, die sich über eine Etage erstreckt.
Es besteht aus einem offenen Raumkonzept, das Küche, Esszimmer und Wohnzimmer mit Zugang zu einer überdachten Terrasse, drei Schlafzimmern, zwei Badezimmern und einem Abstellraum vereint.
Der Garten ist stimmungsvoll und gärtnerisch gestaltet und eingezäunt und verfügt über einen Swimmingpool mit Liegewiese.
Die hervorragende Lage und die räumliche Aufteilung des Innen- und Außenbereichs dieser Immobilie bieten die Möglichkeit für ein komfortables Familienleben oder eine Investition in ein touristisches Vermietungsgeschäft.
Der angegebene Preis der Immobilie bezieht sich auf den Endausbau ohne Möbel, sodass Sie die endgültige Einrichtung nach Ihren Wünschen und Vorlieben gestalten können.
Sehr geehrte Kunden, die Vermittlungsprovision wird gemäß den Allgemeinen Geschäftsbedingungen berechnet:
www.dux-nekretnine.hr/opci-uvjeti-poslovanja
ID CODE: 42700
Auf einem Hügel mit herrlichem Blick auf sanfte Felder, Weinberge, Olivenhaine und das Meer in der Ferne liegt Sveti Lovreč. Sveti Lovreč liegt inmitten üppiger Lavendelfelder im Westen der istrischen Halbinsel, im unmittelbaren Hinterland von Vrsar, Poreč und Rovinj und ist eine der am besten erhaltenen mittelalterlichen Festungsstädte Istriens.
Die Lage der Stadt auf einem sanften Hügel, der das Gebiet dominiert, in dem sich 22 Siedlungen, Dörfer und Weiler befinden, zeugt von ihrer bedeutenden Rolle im Laufe der Geschichte.
Entlang der sanft gegliederten Westküste Istriens ragen mehrere tiefe Buchten hervor, von denen die Lim-Bucht teilweise zur Gemeinde Sveti Lovreč gehört. Die Lim-Bucht ist ein Naturphänomen von großem wissenschaftlichen und ästhetischen Wert und wurde zum besonderen Meeresschutzgebiet erklärt.
In einer ruhigen Wohngegend in der Nähe von Sveti Lovreč steht eine Doppelhaushälfte mit Swimmingpool zum Verkauf.
Die Mikrolage bietet das authentische Erlebnis einer istrischen Kleinstadt, Intimität, Erholung von Hektik und Lärm und liegt gleichzeitig nah genug an dynamischen istrischen Städten mit zahlreichen Annehmlichkeiten.
Neben der günstigen Lage zeichnet sich die Immobilie auch durch die hochwertige Bauausführung aus, die langfristige Zufriedenheit und Lebensqualität garantiert.
Das Haus mit seiner zeitlosen Architektur fügt sich in Form und Farbe in die Siedlung und Landschaft ein und ist als eine Wohneinheit konzipiert, die sich über eine Etage erstreckt.
Es besteht aus einem offenen Raumkonzept, das Küche, Esszimmer und Wohnzimmer mit Zugang zu einer überdachten Terrasse, drei Schlafzimmern, zwei Badezimmern und einem Abstellraum vereint.
Der Garten ist stimmungsvoll und gärtnerisch gestaltet und eingezäunt und verfügt über einen Swimmingpool mit Liegewiese.
Die hervorragende Lage und die räumliche Aufteilung des Innen- und Außenbereichs dieser Immobilie bieten die Möglichkeit für ein komfortables Familienleben oder eine Investition in ein touristisches Vermietungsgeschäft.
Der angegebene Preis der Immobilie bezieht sich auf den Endausbau ohne Möbel, sodass Sie die endgültige Einrichtung nach Ihren Wünschen und Vorlieben gestalten können.
Sehr geehrte Kunden, die Vermittlungsprovision wird gemäß den Allgemeinen Geschäftsbedingungen berechnet:
www.dux-nekretnine.hr/opci-uvjeti-poslovanja
ID CODE: 42700
Ausstattung
| Anzahl der Etagen im Haus | 0 |
| Bad | 2 |
