ZAGREB, OBERSTADT - Einzigartiges Haus inmitten der Natur
1.600.000 €
Kaufpreis
6
Zimmer
immobilien.de Nr.: 9365372
Objektnummer: 43239
Preise & Kosten
| Kaufpreis | 1.600.000 € |
| Nebenkosten | keine Angabe |
Größe & Zustand
| Gesamtfläche | 350 m² |
| Grundstücksfläche | 690 m² |
| Zimmer | 6 |
| Letzte Modernisierung | 2020 |
| Verfügbar ab | keine Angabe |
Objektbeschreibung
ZAGREB, OBERSTADT – Einzigartiges Haus inmitten der Natur
Mitten im Grünen, nur 12 Gehminuten von Ilica und dem Zentrum Zagrebs entfernt, bietet dieses einzigartige Haus absolute Ruhe und Privatsphäre – ohne Nachbarn und mit Blick auf die Naturlandschaft von Dubravkin put und Tuškanac. Neben dem Haus befindet sich ein Gewerberaum.
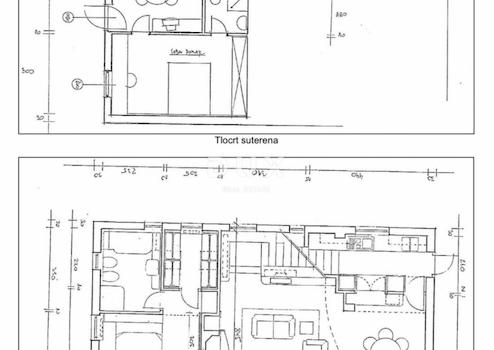
Das Wohngebäude erstreckt sich über drei Etagen und hat eine Gesamtfläche von 262 m². Im Erdgeschoss befinden sich zwei Schlafzimmer, ein Arbeitszimmer und zwei Badezimmer. Der Eingang zum ersten Obergeschoss führt zum Wohnzimmer. Das geräumige Wohnzimmer ist mit einer großen Terrasse verbunden, die sich harmonisch in die Natur einfügt und so eine perfekte Verbindung zwischen Innen und Außen schafft. Ergänzt wird der Grundriss des ersten Obergeschosses durch eine Küche, ein Esszimmer und das Hauptschlafzimmer mit eigenem Bad. Das zweite Obergeschoss ist als separate Zweizimmerwohnung gestaltet. Diese Wohnung ist über eine Innentreppe mit dem Rest des Hauses verbunden und verfügt zudem über einen separaten Eingang.
Neben dem Wohnhaus befindet sich ein separates Gebäude mit 112 m² Geschäftsfläche, ideal für ein zehnköpfiges Team. Die Geschäftsräume gliedern sich in einen großen, offenen Eingangsbereich, zwei kleinere, separate Galerien sowie ein Badezimmer mit WC.
Die Lage an der bekannten Promenade Dubravkin put bietet eine außergewöhnliche Kombination aus Privatsphäre und guter Erreichbarkeit. Alle Annehmlichkeiten der Stadt sind in unmittelbarer Nähe, und die Buslinie 105 sorgt für schnelle Verbindungen in den Rest der Stadt.
Der Entwurf für Wohnhaus und Geschäftsgebäude stammt von einem renommierten Zagreber Architekten und Professor, der auch die gesamte Bauleitung innehatte. Das Gebäude wurde in Pfahlgründung mit Stahlbetonkonstruktionen errichtet. Die Zugangstreppen bestehen aus Stahl und Holz und sind ebenfalls auf Pfahlgründungen gelagert. Dank dieser Bauweise blieb das Gebäude bei den Erdbeben in Zagreb unbeschädigt – ein Beweis für die außergewöhnliche Qualität und Stabilität der Konstruktion.
Dank seiner einzigartigen Lage inmitten der Natur und dennoch in unmittelbarer Nähe zum Zentrum ist dieses Anwesen die perfekte Wahl zum Wohnen, als Sommerresidenz oder als Kapitalanlage.
Sehr geehrte Kunden, die Maklerprovision wird gemäß den Allgemeinen Geschäftsbedingungen berechnet.
www.dux-nekretnine.hr/opci-uvjeti-poslovanja
ID CODE: 43239
Mitten im Grünen, nur 12 Gehminuten von Ilica und dem Zentrum Zagrebs entfernt, bietet dieses einzigartige Haus absolute Ruhe und Privatsphäre – ohne Nachbarn und mit Blick auf die Naturlandschaft von Dubravkin put und Tuškanac. Neben dem Haus befindet sich ein Gewerberaum.
Das Wohngebäude erstreckt sich über drei Etagen und hat eine Gesamtfläche von 262 m². Im Erdgeschoss befinden sich zwei Schlafzimmer, ein Arbeitszimmer und zwei Badezimmer. Der Eingang zum ersten Obergeschoss führt zum Wohnzimmer. Das geräumige Wohnzimmer ist mit einer großen Terrasse verbunden, die sich harmonisch in die Natur einfügt und so eine perfekte Verbindung zwischen Innen und Außen schafft. Ergänzt wird der Grundriss des ersten Obergeschosses durch eine Küche, ein Esszimmer und das Hauptschlafzimmer mit eigenem Bad. Das zweite Obergeschoss ist als separate Zweizimmerwohnung gestaltet. Diese Wohnung ist über eine Innentreppe mit dem Rest des Hauses verbunden und verfügt zudem über einen separaten Eingang.
Neben dem Wohnhaus befindet sich ein separates Gebäude mit 112 m² Geschäftsfläche, ideal für ein zehnköpfiges Team. Die Geschäftsräume gliedern sich in einen großen, offenen Eingangsbereich, zwei kleinere, separate Galerien sowie ein Badezimmer mit WC.
Die Lage an der bekannten Promenade Dubravkin put bietet eine außergewöhnliche Kombination aus Privatsphäre und guter Erreichbarkeit. Alle Annehmlichkeiten der Stadt sind in unmittelbarer Nähe, und die Buslinie 105 sorgt für schnelle Verbindungen in den Rest der Stadt.
Der Entwurf für Wohnhaus und Geschäftsgebäude stammt von einem renommierten Zagreber Architekten und Professor, der auch die gesamte Bauleitung innehatte. Das Gebäude wurde in Pfahlgründung mit Stahlbetonkonstruktionen errichtet. Die Zugangstreppen bestehen aus Stahl und Holz und sind ebenfalls auf Pfahlgründungen gelagert. Dank dieser Bauweise blieb das Gebäude bei den Erdbeben in Zagreb unbeschädigt – ein Beweis für die außergewöhnliche Qualität und Stabilität der Konstruktion.
Dank seiner einzigartigen Lage inmitten der Natur und dennoch in unmittelbarer Nähe zum Zentrum ist dieses Anwesen die perfekte Wahl zum Wohnen, als Sommerresidenz oder als Kapitalanlage.
Sehr geehrte Kunden, die Maklerprovision wird gemäß den Allgemeinen Geschäftsbedingungen berechnet.
www.dux-nekretnine.hr/opci-uvjeti-poslovanja
ID CODE: 43239
Ausstattung
| Anzahl der Etagen im Haus | 0 |
| Bad | 4 |
