RIJEKA, PEHLIN, PODMURVICE – Maisonette-Wohnung (101,24 m²) in einem Neubau mit Meerblick, Wohnzimmer und 2 Schlafzimmern. – Wohnung 3L
415.000 €
Kaufpreis
3
Zimmer
immobilien.de Nr.: 9335838
Objektnummer: 43393
Kaufpreis
| Kaufpreis | 415.000 € |
Wohnfläche, Grundstück & Bausubstanz
| Gesamtfläche | 101 m² |
| Zimmer | 3 |
| Baujahr | 2025 |
| Verfügbar ab | keine Angabe |
Beschreibung der Immobilie
RIJEKA, PEHLIN, PODMURVICE – Maisonette-Wohnung (101,24 m²) in einem Neubau mit Meerblick, 1. OG + 2. OG – Wohnung 3L
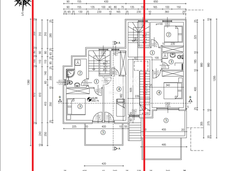
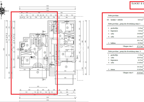
Wohnung 3L, Maisonette, 1. OG + 2. OG, 101,24 m²:
1. OG:
- Wohnzimmer + Küche
- Treppenhaus
- Abstellraum
- Badezimmer
- Balkon
2. OG:
- 2 Schlafzimmer
- Badezimmer
- Flur
- Balkon
Wohnungsbeschreibung:
Die Wohnungen strahlen Luxus aus und sind mit hochwertigen Materialien und Geräten ausgestattet. Große Glasflächen sorgen für viel Tageslicht und bieten einen wunderschönen Blick auf das Meer und die Inseln. - Große Glasflächen mit Blick auf Meer und Inseln
- Hochwertige Aluminiumfenster und -türen
- Rollläden mit Elektromotoren
- Insektenschutznetze
- Dreischichtparkett in großen Formaten
- Fußbodenheizung mit Wärmepumpen
- Hochwertige Fliesen
- Hochwertige Sanitärausstattung und Badezimmerausstattung
- Heizung und Kühlung über Wärmepumpen mit Gebläsekonvektoren
- Massivbauweise
- 10 cm Wärmedämmung der Außenwände
- Vorbereitung zum Laden von Elektroautos auf dem Parkplatz
PANORAMA
Wunderschöner Blick auf Meer, Inseln und die gesamte Kvarner-Bucht
SICHERHEIT:
Erdbeben- und Brandschutz, umzäuntes Gelände und Zugangskontrolle
ENERGIEEFFIZIENZ:
Die Gebäude sind mit Aluminiumfenstern und einer 10 cm dicken, wärmegedämmten Fassade ausgestattet.
Heizung und Kühlung erfolgen über Wärmepumpen. Durch die Verwendung hochwertiger Materialien und Geräte wird ein niedriger Energieverbrauch gewährleistet und die Energieeffizienzklasse A erreicht.
LAGE:
Die Gebäude befinden sich in ruhiger Lage in Hosti am Ende einer Sackgasse und wurden exklusiv für unsere Siedlung neu errichtet.
Sie liegen nur wenige Autominuten oberhalb des Rujevica-Stadions und eines großen Supermarkts, 10 Minuten vom Zentrum Rijekas und 15 Minuten von Opatija entfernt.
Hervorragende Infrastruktur im Umkreis von 150 m bis 750 m:
- Auf- und Abfahrt zur Umgehungsstraße, Bushaltestelle, Post, Bank, Sportzentrum, Klinik, Apotheke, Restaurant, Schule, Kindergarten, Universität, Einkaufszentrum, Tankstelle...
EIN EINZIGARTIGES IMMOBILIE IN TOP-LAGE, DAS IHRE BESICHTIGUNG VERDIENT!!!
Für weitere Informationen kontaktieren Sie bitte die Makler.
Sehr geehrte Kunden, die Maklerprovision wird gemäß den Allgemeinen Geschäftsbedingungen berechnet:
www.dux-nekretnine.hr/opci-uvjeti-poslovanja
Sehr geehrte Kauf-, Miet- und Pachtinteressenten,
die Besichtigung der Immobilie, die Sie interessiert, ist ausschließlich nach Unterzeichnung eines Maklervertrags möglich. Dies dient dem Schutz des Eigentümers vor unberechtigten Besuchen und entspricht dem Datenschutzgesetz und dem Maklergesetz.
Bei jeder Besichtigung ist der Kauf-, Miet- oder Pachtinteressent verpflichtet, einen Maklervertrag auszufüllen und zu unterzeichnen. Dieser enthält folgende Angaben:
- grundlegende Informationen zum Kauf-, Miet- oder Pachtinteressenten
- grundlegende Informationen zum Maklerbüro
- Höhe der Maklerprovision
Die Maklerprovision für den Kauf beträgt 3 % (+ 25 % MwSt.) des vereinbarten Kaufpreises.
Die Maklerprovision für den Pachtinteressenten beträgt eine Monatsmiete (+ 25 % MwSt.).
ID CODE: 43393
Wohnung 3L, Maisonette, 1. OG + 2. OG, 101,24 m²:
1. OG:
- Wohnzimmer + Küche
- Treppenhaus
- Abstellraum
- Badezimmer
- Balkon
2. OG:
- 2 Schlafzimmer
- Badezimmer
- Flur
- Balkon
Wohnungsbeschreibung:
Die Wohnungen strahlen Luxus aus und sind mit hochwertigen Materialien und Geräten ausgestattet. Große Glasflächen sorgen für viel Tageslicht und bieten einen wunderschönen Blick auf das Meer und die Inseln. - Große Glasflächen mit Blick auf Meer und Inseln
- Hochwertige Aluminiumfenster und -türen
- Rollläden mit Elektromotoren
- Insektenschutznetze
- Dreischichtparkett in großen Formaten
- Fußbodenheizung mit Wärmepumpen
- Hochwertige Fliesen
- Hochwertige Sanitärausstattung und Badezimmerausstattung
- Heizung und Kühlung über Wärmepumpen mit Gebläsekonvektoren
- Massivbauweise
- 10 cm Wärmedämmung der Außenwände
- Vorbereitung zum Laden von Elektroautos auf dem Parkplatz
PANORAMA
Wunderschöner Blick auf Meer, Inseln und die gesamte Kvarner-Bucht
SICHERHEIT:
Erdbeben- und Brandschutz, umzäuntes Gelände und Zugangskontrolle
ENERGIEEFFIZIENZ:
Die Gebäude sind mit Aluminiumfenstern und einer 10 cm dicken, wärmegedämmten Fassade ausgestattet.
Heizung und Kühlung erfolgen über Wärmepumpen. Durch die Verwendung hochwertiger Materialien und Geräte wird ein niedriger Energieverbrauch gewährleistet und die Energieeffizienzklasse A erreicht.
LAGE:
Die Gebäude befinden sich in ruhiger Lage in Hosti am Ende einer Sackgasse und wurden exklusiv für unsere Siedlung neu errichtet.
Sie liegen nur wenige Autominuten oberhalb des Rujevica-Stadions und eines großen Supermarkts, 10 Minuten vom Zentrum Rijekas und 15 Minuten von Opatija entfernt.
Hervorragende Infrastruktur im Umkreis von 150 m bis 750 m:
- Auf- und Abfahrt zur Umgehungsstraße, Bushaltestelle, Post, Bank, Sportzentrum, Klinik, Apotheke, Restaurant, Schule, Kindergarten, Universität, Einkaufszentrum, Tankstelle...
EIN EINZIGARTIGES IMMOBILIE IN TOP-LAGE, DAS IHRE BESICHTIGUNG VERDIENT!!!
Für weitere Informationen kontaktieren Sie bitte die Makler.
Sehr geehrte Kunden, die Maklerprovision wird gemäß den Allgemeinen Geschäftsbedingungen berechnet:
www.dux-nekretnine.hr/opci-uvjeti-poslovanja
Sehr geehrte Kauf-, Miet- und Pachtinteressenten,
die Besichtigung der Immobilie, die Sie interessiert, ist ausschließlich nach Unterzeichnung eines Maklervertrags möglich. Dies dient dem Schutz des Eigentümers vor unberechtigten Besuchen und entspricht dem Datenschutzgesetz und dem Maklergesetz.
Bei jeder Besichtigung ist der Kauf-, Miet- oder Pachtinteressent verpflichtet, einen Maklervertrag auszufüllen und zu unterzeichnen. Dieser enthält folgende Angaben:
- grundlegende Informationen zum Kauf-, Miet- oder Pachtinteressenten
- grundlegende Informationen zum Maklerbüro
- Höhe der Maklerprovision
Die Maklerprovision für den Kauf beträgt 3 % (+ 25 % MwSt.) des vereinbarten Kaufpreises.
Die Maklerprovision für den Pachtinteressenten beträgt eine Monatsmiete (+ 25 % MwSt.).
ID CODE: 43393
Ausstattungsmerkmale
| Anzahl der Etagen im Haus | 2 |
| Inserat befindet sich im Stockwerk | 2 |
| Bad | 2 |
Karte wird geladen...
Objektstandort
51000 Rijeka
- Kvarner Region [Primorsko-Goranska]
Kontaktanfrage senden
Über den Anbieter
DUX Nekretnine d.o.o.
Tizianova
51000 Rijeka
Kontakt
| Telefon | +385 91 480 8808 |
| Mobil | +385 91 480 8808 |
Ansprechpartner/in
Patrik Hrštić