Grundstück mit Baugenehmigung für zwei Doppelheuser
350.000 €
Kaufpreis
16
Zimmer
immobilien.de Nr.: 9312940
Objektnummer: TRI-4+
Kaufpreis
| Kaufpreis | 350.000 € |
Wohnfläche, Grundstück & Bausubstanz
| Gesamtfläche | 603 m² |
| Zimmer | 16 |
| Verfügbar ab | keine Angabe |
Beschreibung der Immobilie
Baugrundstück zum verkaufen, mit Baugenehmigung für den Bau von zwei Doppelhaushälften in Tribunj. Insgesamt 4 Wohneinheiten.
Ausgezeichnete Lage, im weiteren Stadtzentrum, nur 500 m vom Strand Zamalin und 450 m vom Zentrum von Tribunj entfernt.
Das Grundstück wird mit vollständiger Projektdokumentation und Baugenehmigung für zwei Doppelhaushälften mit jeweils zwei Wohneinheiten verkauft.
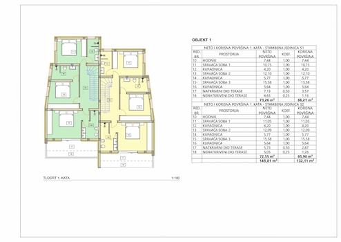
Gebäude 1 besteht aus einem Erdgeschoss und einem Obergeschoss. Die Gesamtfläche der beiden Wohneinheiten in Gebäude 1 beträgt 293,00 m².
Gebäude 2 besteht aus einem Erdgeschoss und zwei Obergeschossen. Die Gesamtfläche der beiden Wohneinheiten in Gebäude 2 beträgt 310,00 m².
Jedes Gebäude verfügt über einen eigenen Garten, Hof und Parkplätze.
Das Grundstück ist sehr gut angebunden, liegt an der asphaltierten Straße, wo sich die notwendigen Anschlüsse (Kanalisation, Wasser, Strom, Telefon) befinden.
Völlig geordnete Eigentums- und Katasterdokumentation, ohne Hypotheken oder sonstige Belastungen.
ID CODE: TRI-4+
Ausgezeichnete Lage, im weiteren Stadtzentrum, nur 500 m vom Strand Zamalin und 450 m vom Zentrum von Tribunj entfernt.
Das Grundstück wird mit vollständiger Projektdokumentation und Baugenehmigung für zwei Doppelhaushälften mit jeweils zwei Wohneinheiten verkauft.
Gebäude 1 besteht aus einem Erdgeschoss und einem Obergeschoss. Die Gesamtfläche der beiden Wohneinheiten in Gebäude 1 beträgt 293,00 m².
Gebäude 2 besteht aus einem Erdgeschoss und zwei Obergeschossen. Die Gesamtfläche der beiden Wohneinheiten in Gebäude 2 beträgt 310,00 m².
Jedes Gebäude verfügt über einen eigenen Garten, Hof und Parkplätze.
Das Grundstück ist sehr gut angebunden, liegt an der asphaltierten Straße, wo sich die notwendigen Anschlüsse (Kanalisation, Wasser, Strom, Telefon) befinden.
Völlig geordnete Eigentums- und Katasterdokumentation, ohne Hypotheken oder sonstige Belastungen.
ID CODE: TRI-4+
Ausstattungsmerkmale
| Anzahl der Etagen im Haus | 0 |
Karte wird geladen...
Objektstandort
22211 Tribunj
- Dalmatien-Sibenik [Sibensko-Kninska]