ISTRIEN, MEDULIN – Luxuriöses Penthouse mit Blick auf die Bucht von Medulin
520.000 €
Kaufpreis
3
Zimmer
immobilien.de Nr.: 9292212
Objektnummer: 42673
Kaufpreis
| Kaufpreis | 520.000 € |
Wohnfläche, Grundstück & Bausubstanz
| Gesamtfläche | 94 m² |
| Zimmer | 3 |
| Baujahr | 2025 |
| Verfügbar ab | keine Angabe |
Beschreibung der Immobilie
ISTRIEN, MEDULIN – Luxuriöses Penthouse mit Blick auf die Bucht von Medulin
Medulin – einst ein kleines Fischerdorf, hat sich dank seiner attraktiven Lage zu einem der bekanntesten Touristenziele Istriens entwickelt. Genießen Sie die Vielfalt der Fels-, Kies- und Sandstrände und lassen Sie sich vom Charme der Natur verzaubern. Der Ort eignet sich für einen ruhigen und romantischen Urlaub, aber auch Sportbegeisterte kommen auf ihre Kosten. Fußball, Reiten, Tennis, Segeln, Minigolf, Fliegen, Bowling, Beachvolleyball oder Tauchen – Medulin bietet für jeden Geschmack das Richtige.
Die Lage des Gebäudes und der Wohnung selbst sorgt durch die Glaswände, die die gesamte Wohnung umgeben, für viel Tageslicht und bietet einen unvergesslichen Blick auf die Bucht von Medulin.
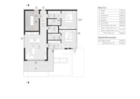
Ein durchdachter Grundriss und eine durchdachte Raumaufteilung trennen den privaten vom geselligen Teil der Wohnung. Am Eingang der Wohnung befindet sich ein Flur, von dem aus man in das geräumige, offene Wohnzimmer gelangt, das mit der modernen Küche und dem Esszimmer verbunden ist. Von jedem Winkel des Raumes aus hat man einen Blick auf das Meer.
Der private Teil der Wohnung beherbergt zwei Schlafzimmer mit eigenem Bad und ein Gäste-WC.
Vom Wohnzimmer aus gelangt man auf eine großzügige, von einem Glaszaun umgebene Terrasse, von der zukünftige Eigentümer einen einzigartigen Panoramablick auf das Meer und die Bucht von Medulin genießen können.
Im Innenhof des Gebäudes befinden sich zwei private Parkplätze.
Die Wohnung wird mit hochwertigen Materialien renommierter internationaler Hersteller ausgestattet. Im Innenbereich kommt Travertinstein zum Einsatz, der mit seinen natürlichen, warmen Erdtönen den Räumen und Außenbereichen eine mediterrane und rustikale Atmosphäre verleiht.
Das moderne Design der Wohnungen mit hohen Schüco-Fenstern und einem Glasbalkon sorgt für viel Licht. Es sind elektrische Jalousien aus Aluminium installiert.
Die Klimaanlagen sind in die abgehängte Decke integriert, sodass nur dezente Lüftungsöffnungen sichtbar sind. Dies sorgt für ein ästhetisch klares Raumkonzept.
Die Luft wird über mehrere Lüftungsöffnungen verteilt, was für eine angenehme Kühlung oder Heizung ohne Zugluft sorgt.
Da das Hauptgerät in die Decke integriert ist, arbeitet es leiser als Wandgeräte.
Der Kauf einer Immobilie in dieser Phase ermöglicht es zukünftigen Eigentümern, die Keramik auszuwählen und sie nach ihren Wünschen zu personalisieren.
Diese besondere Immobilie in Medulin ist ein wahres Juwel und eine kluge Investition für ein komfortables Leben und Wohnen sowie für eine Rendite durch Tourismus.
Sehr geehrte Kunden, die Agenturprovision wird gemäß den Allgemeinen Geschäftsbedingungen berechnet.
www.dux-nekretnine.hr/opci-uvjeti-poslovanja
ID CODE: 42673
Medulin – einst ein kleines Fischerdorf, hat sich dank seiner attraktiven Lage zu einem der bekanntesten Touristenziele Istriens entwickelt. Genießen Sie die Vielfalt der Fels-, Kies- und Sandstrände und lassen Sie sich vom Charme der Natur verzaubern. Der Ort eignet sich für einen ruhigen und romantischen Urlaub, aber auch Sportbegeisterte kommen auf ihre Kosten. Fußball, Reiten, Tennis, Segeln, Minigolf, Fliegen, Bowling, Beachvolleyball oder Tauchen – Medulin bietet für jeden Geschmack das Richtige.
Die Lage des Gebäudes und der Wohnung selbst sorgt durch die Glaswände, die die gesamte Wohnung umgeben, für viel Tageslicht und bietet einen unvergesslichen Blick auf die Bucht von Medulin.
Ein durchdachter Grundriss und eine durchdachte Raumaufteilung trennen den privaten vom geselligen Teil der Wohnung. Am Eingang der Wohnung befindet sich ein Flur, von dem aus man in das geräumige, offene Wohnzimmer gelangt, das mit der modernen Küche und dem Esszimmer verbunden ist. Von jedem Winkel des Raumes aus hat man einen Blick auf das Meer.
Der private Teil der Wohnung beherbergt zwei Schlafzimmer mit eigenem Bad und ein Gäste-WC.
Vom Wohnzimmer aus gelangt man auf eine großzügige, von einem Glaszaun umgebene Terrasse, von der zukünftige Eigentümer einen einzigartigen Panoramablick auf das Meer und die Bucht von Medulin genießen können.
Im Innenhof des Gebäudes befinden sich zwei private Parkplätze.
Die Wohnung wird mit hochwertigen Materialien renommierter internationaler Hersteller ausgestattet. Im Innenbereich kommt Travertinstein zum Einsatz, der mit seinen natürlichen, warmen Erdtönen den Räumen und Außenbereichen eine mediterrane und rustikale Atmosphäre verleiht.
Das moderne Design der Wohnungen mit hohen Schüco-Fenstern und einem Glasbalkon sorgt für viel Licht. Es sind elektrische Jalousien aus Aluminium installiert.
Die Klimaanlagen sind in die abgehängte Decke integriert, sodass nur dezente Lüftungsöffnungen sichtbar sind. Dies sorgt für ein ästhetisch klares Raumkonzept.
Die Luft wird über mehrere Lüftungsöffnungen verteilt, was für eine angenehme Kühlung oder Heizung ohne Zugluft sorgt.
Da das Hauptgerät in die Decke integriert ist, arbeitet es leiser als Wandgeräte.
Der Kauf einer Immobilie in dieser Phase ermöglicht es zukünftigen Eigentümern, die Keramik auszuwählen und sie nach ihren Wünschen zu personalisieren.
Diese besondere Immobilie in Medulin ist ein wahres Juwel und eine kluge Investition für ein komfortables Leben und Wohnen sowie für eine Rendite durch Tourismus.
Sehr geehrte Kunden, die Agenturprovision wird gemäß den Allgemeinen Geschäftsbedingungen berechnet.
www.dux-nekretnine.hr/opci-uvjeti-poslovanja
ID CODE: 42673
Ausstattungsmerkmale
| Anzahl der Etagen im Haus | 0 |
| Inserat befindet sich im Stockwerk | 3 |
| Bad | 2 |
Karte wird geladen...
Objektstandort
52203 Medulin
- Istrien
Kontaktanfrage senden
Über den Anbieter
DUX Nekretnine d.o.o.
Tizianova
51000 Rijeka
Kontakt
| Telefon | +385 91 480 8808 |
| Mobil | +385 91 480 8808 |
Ansprechpartner/in
Deniro Osmanović