Grundstück mit großem Potenzial, gültiger Genehmigung und bezahlten Versorgungsbeiträgen
719.996 €
Kaufpreis
immobilien.de Nr.: 9284581
Objektnummer: 103
Kaufpreis
| Kaufpreis | 719.996 € |
Wohnfläche, Grundstück & Bausubstanz
| Gesamtfläche | 2.799 m² |
| Verfügbar ab | keine Angabe |
Beschreibung der Immobilie
In zentraler Lage in Zagreb stehen vier Baugrundstücke mit gültiger Baugenehmigung für die Bebauung mit 3-4 Wohneinheiten zum Verkauf.
Das Grundstück ist gerodet und eingezäunt und verfügt über eine genehmigte Zufahrtsstraße.
Die gesamte notwendige Infrastruktur, inklusive eines neuen Umspannwerks, befindet sich in unmittelbarer Nähe.
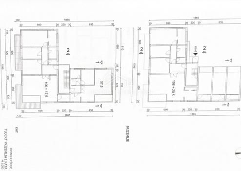
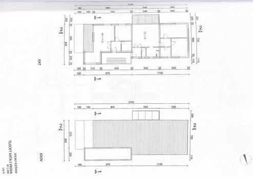
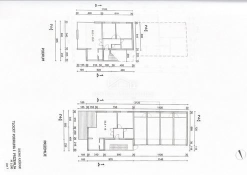
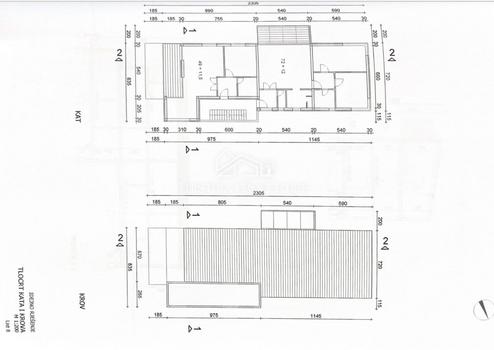
Für die Grundstücke liegt eine gültige Baugenehmigung vor, die bei Bedarf angepasst werden kann. Jedes Grundstück hat eine Grundfläche von 400 m² (BGF). Die Nettoverkaufsfläche der Gebäude beträgt ca. 420 m².
Alle Nebenkosten sind bezahlt.
Der erwartete Verkaufspreis der Wohnungen liegt bei ca. 3.500,00 €/m² (inkl. MwSt.).
Die Grundstücke können auch einzeln erworben und nach Wunsch des zukünftigen Investors für den Bau von Einfamilienhäusern mit Swimmingpool umgestaltet werden.
Der Preis für ein einzelnes Grundstück beträgt ,00 € zzgl. MwSt.
Für ernsthafte Investoren ist der Endpreis verhandelbar. Sollten die bestehenden Projekte nicht den Vorstellungen potenzieller Investoren entsprechen, ist der Verkäufer bereit, die Entwicklung neuer Projekte zu finanzieren und die erforderlichen Baugenehmigungen für alle vier Grundstücke einzuholen.
Die erhöhte Lage mit Blick auf die Stadt und die Vorbereitungen für einen reibungslosen Baubeginn bieten eine hervorragende Investitionsmöglichkeit. Kontaktieren Sie uns gerne, um die vollständigen Unterlagen und weitere Informationen einzusehen.
Die Immobilie kann ausschließlich nach Unterzeichnung eines Vermittlungsvertrags besichtigt werden, der die Grundlage für das weitere Verfahren im Zusammenhang mit dem Kauf und Verkauf sowie der Provisionserhebung gemäß dem Gesetz über die Immobilienvermittlung bildet.
Im Falle eines Kaufvertrags beträgt die Vermittlungsgebühr 3% ohne Mehrwertsteuer und wird sowohl vom Käufer als auch vom Verkäufer bei der Unterzeichnung des Vorvertrags/Kaufvertrags erhoben.
ID CODE: 103
Das Grundstück ist gerodet und eingezäunt und verfügt über eine genehmigte Zufahrtsstraße.
Die gesamte notwendige Infrastruktur, inklusive eines neuen Umspannwerks, befindet sich in unmittelbarer Nähe.
Für die Grundstücke liegt eine gültige Baugenehmigung vor, die bei Bedarf angepasst werden kann. Jedes Grundstück hat eine Grundfläche von 400 m² (BGF). Die Nettoverkaufsfläche der Gebäude beträgt ca. 420 m².
Alle Nebenkosten sind bezahlt.
Der erwartete Verkaufspreis der Wohnungen liegt bei ca. 3.500,00 €/m² (inkl. MwSt.).
Die Grundstücke können auch einzeln erworben und nach Wunsch des zukünftigen Investors für den Bau von Einfamilienhäusern mit Swimmingpool umgestaltet werden.
Der Preis für ein einzelnes Grundstück beträgt ,00 € zzgl. MwSt.
Für ernsthafte Investoren ist der Endpreis verhandelbar. Sollten die bestehenden Projekte nicht den Vorstellungen potenzieller Investoren entsprechen, ist der Verkäufer bereit, die Entwicklung neuer Projekte zu finanzieren und die erforderlichen Baugenehmigungen für alle vier Grundstücke einzuholen.
Die erhöhte Lage mit Blick auf die Stadt und die Vorbereitungen für einen reibungslosen Baubeginn bieten eine hervorragende Investitionsmöglichkeit. Kontaktieren Sie uns gerne, um die vollständigen Unterlagen und weitere Informationen einzusehen.
Die Immobilie kann ausschließlich nach Unterzeichnung eines Vermittlungsvertrags besichtigt werden, der die Grundlage für das weitere Verfahren im Zusammenhang mit dem Kauf und Verkauf sowie der Provisionserhebung gemäß dem Gesetz über die Immobilienvermittlung bildet.
Im Falle eines Kaufvertrags beträgt die Vermittlungsgebühr 3% ohne Mehrwertsteuer und wird sowohl vom Käufer als auch vom Verkäufer bei der Unterzeichnung des Vorvertrags/Kaufvertrags erhoben.
ID CODE: 103
Ausstattungsmerkmale
| Anzahl der Etagen im Haus | 0 |
Karte wird geladen...
Objektstandort
10000 Stenjevec
- Zagreb (Stadt) [Grad Zagreb]
Kontaktanfrage senden
Über den Anbieter
Nekretnine1 j.d.o.o.
Pomerio 27
51000 Rijeka
Kontakt
| Telefon | +385 95 714 8583 |
| Website | www.nekretnine1.hr |
Ansprechpartner/in
Nekretnine1.hr