ISTRIEN, ROVINJ - Drei-Zimmer-Wohnung in einem Neubau
292.000 €
Kaufpreis
4
Zimmer
immobilien.de Nr.: 9279651
Objektnummer: 42342
Kaufpreis
| Kaufpreis | 292.000 € |
Wohnfläche, Grundstück & Bausubstanz
| Gesamtfläche | 84 m² |
| Zimmer | 4 |
| Baujahr | 2027 |
| Verfügbar ab | keine Angabe |
Beschreibung der Immobilie
ISTRIEN, ROVINJ – Dreizimmerwohnung in einem Neubau
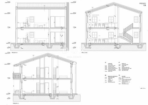
Die attraktivste und malerischste istrische Stadt Rovinj mit ihrer Altstadt unter UNESCO-Schutz ist eine ewige Inspiration für Romantiker und Künstler und eines der am weitesten entwickelten Touristenziele Kroatiens. Sie liegt an der Westküste Istriens und ist geschmückt mit einem stark gegliederten Archipel mit nicht weniger als 14 Inselchen und 6 Klippen entlang einer 67 Kilometer langen Küste, die zum geschützten Naturerbe gehört. Die wunderschöne gegliederte Küste, das spezifisch milde mediterrane Mikroklima, das ausgezeichnete gastronomische Angebot, ganzjährige kulturelle Veranstaltungen und freundliche und zuvorkommende Gastgeber machen diesen Ort magisch. In der Nähe der Stadt Rovinj steht eine Dreizimmerwohnung in einem Neubau zum Verkauf. Das Doppelhaushälfte-Familienhaus in zeitlosem Design mit zwei Wohneinheiten fügt sich in Form und Farbe in die Siedlung und Landschaft ein und erstreckt sich über das Erdgeschoss und den ersten Stock. Beim Bau wurden langlebige und zuverlässige Materialien verwendet, die langfristige Zufriedenheit und Sicherheit des Wohnsitzes garantieren. Die Raumplanung jeder Etage wurde detailliert durchgeführt, was zu einer hochwertigen Raumaufteilung führte, die eine vollständige Raumausnutzung gewährleistet. Gegenstand des Verkaufs ist eine Wohnung im ersten Stock des Gebäudes. Die Nettofläche mit berechneten Koeffizienten beträgt 84,08 m², während die Nettofläche ohne den berechneten Koeffizienten 90,07 m² beträgt und eine Wohnfläche von 78,09 m² und eine überdachte Terrasse von 11,98 m² umfasst. Sie besteht aus drei Schlafzimmern, einem Badezimmer, einer Gästetoilette, einem Flur und einem offenen Raum, der Wohnzimmer, Esszimmer und Küche mit Zugang zu einer überdachten Terrasse vereint. Zur Wohnung gehört ein Parkplatz. Diese Wohnung ist eine ideale Gelegenheit für ein angenehmes Familienleben sowie als Investition zur touristischen Vermietung. Die geplante Fertigstellung und Übergabe der Immobilie ist für Anfang 2027 geplant. Der angegebene Preis der Immobilie bezieht sich auf den endgültigen Ausbauzustand ohne Möbel, sodass Sie die endgültige Einrichtung nach Ihren Wünschen und Vorlieben vornehmen können. Verkäufer der Immobilie ist eine juristische Person.
Sehr geehrte Kunden, die Agenturprovision wird gemäß den Allgemeinen Geschäftsbedingungen berechnet: www.dux-nekretnine.hr/opci-uvjeti-poslovanja
ID CODE: 42342
Die attraktivste und malerischste istrische Stadt Rovinj mit ihrer Altstadt unter UNESCO-Schutz ist eine ewige Inspiration für Romantiker und Künstler und eines der am weitesten entwickelten Touristenziele Kroatiens. Sie liegt an der Westküste Istriens und ist geschmückt mit einem stark gegliederten Archipel mit nicht weniger als 14 Inselchen und 6 Klippen entlang einer 67 Kilometer langen Küste, die zum geschützten Naturerbe gehört. Die wunderschöne gegliederte Küste, das spezifisch milde mediterrane Mikroklima, das ausgezeichnete gastronomische Angebot, ganzjährige kulturelle Veranstaltungen und freundliche und zuvorkommende Gastgeber machen diesen Ort magisch. In der Nähe der Stadt Rovinj steht eine Dreizimmerwohnung in einem Neubau zum Verkauf. Das Doppelhaushälfte-Familienhaus in zeitlosem Design mit zwei Wohneinheiten fügt sich in Form und Farbe in die Siedlung und Landschaft ein und erstreckt sich über das Erdgeschoss und den ersten Stock. Beim Bau wurden langlebige und zuverlässige Materialien verwendet, die langfristige Zufriedenheit und Sicherheit des Wohnsitzes garantieren. Die Raumplanung jeder Etage wurde detailliert durchgeführt, was zu einer hochwertigen Raumaufteilung führte, die eine vollständige Raumausnutzung gewährleistet. Gegenstand des Verkaufs ist eine Wohnung im ersten Stock des Gebäudes. Die Nettofläche mit berechneten Koeffizienten beträgt 84,08 m², während die Nettofläche ohne den berechneten Koeffizienten 90,07 m² beträgt und eine Wohnfläche von 78,09 m² und eine überdachte Terrasse von 11,98 m² umfasst. Sie besteht aus drei Schlafzimmern, einem Badezimmer, einer Gästetoilette, einem Flur und einem offenen Raum, der Wohnzimmer, Esszimmer und Küche mit Zugang zu einer überdachten Terrasse vereint. Zur Wohnung gehört ein Parkplatz. Diese Wohnung ist eine ideale Gelegenheit für ein angenehmes Familienleben sowie als Investition zur touristischen Vermietung. Die geplante Fertigstellung und Übergabe der Immobilie ist für Anfang 2027 geplant. Der angegebene Preis der Immobilie bezieht sich auf den endgültigen Ausbauzustand ohne Möbel, sodass Sie die endgültige Einrichtung nach Ihren Wünschen und Vorlieben vornehmen können. Verkäufer der Immobilie ist eine juristische Person.
Sehr geehrte Kunden, die Agenturprovision wird gemäß den Allgemeinen Geschäftsbedingungen berechnet: www.dux-nekretnine.hr/opci-uvjeti-poslovanja
ID CODE: 42342
Ausstattungsmerkmale
| Anzahl der Etagen im Haus | 1 |
| Inserat befindet sich im Stockwerk | 1 |
| Bad | 1 |
Karte wird geladen...
Objektstandort
52210 Rovinj
- Istrien
Kontaktanfrage senden
Über den Anbieter
DUX Nekretnine d.o.o.
Tizianova
51000 Rijeka
Kontakt
| Telefon | +385 91 480 8808 |
| Mobil | +385 91 480 8808 |
Ansprechpartner/in
Iva Zajc