ISTRIEN, TAR - 3SS+DB Penthouse mit Dachterrasse, gelegen in einem hochwertigen Neubau nur 350m vom Meer entfernt
646.600 €
Kaufpreis
4
Zimmer
immobilien.de Nr.: 9279640
Objektnummer: 42359
Kaufpreis
| Kaufpreis | 646.600 € |
Wohnfläche, Grundstück & Bausubstanz
| Gesamtfläche | 181 m² |
| Zimmer | 4 |
| Baujahr | 2025 |
| Verfügbar ab | keine Angabe |
Beschreibung der Immobilie
ISTRIEN, TAR – Exklusive zweistöckige 3-Zimmer-Wohnung mit Dachterrasse und Panoramablick auf das Meer
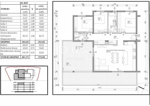
In der ruhigen Siedlung Tara, nur 350 m vom Meer und zehn Gehminuten von den gepflegten Stränden entfernt, befindet sich ein moderner Neubau in Spitzenqualität mit insgesamt 13 Wohnungen. Im dritten Stock des Gebäudes befindet sich dieses einzigartige zweistöckige Penthouse, das sich über 175,04 m² Wohnfläche erstreckt und eine Kombination aus Luxus, Komfort und einer herrlichen Aussicht darstellt. WOHNUNGSBESCHREIBUNG – B3 Erste Etage: * geräumige Eingangshalle mit eigener Garderobe * großer offener Raum von sage und schreibe 42,15 m² mit Wohnzimmer, Küche und Esszimmer und von dort auch Zugang zu einer geräumigen, teilweise überdachten Terrasse, die sich über die gesamte Breite der gesamten Wohnung erstreckt. * drei geräumige Schlafzimmer. * dann zwei moderne und komfortable Badezimmer. Zweiter Stock: Eine Innentreppe führt auf die 131,79 m² große Dachterrasse, die einen Panoramablick und unverbaubaren Blick auf das Meer und die istrische Landschaft bietet. Dieser Raum bietet unbegrenzte Anpassungsmöglichkeiten – zukünftige Eigentümer können ihre eigene Oase mit Whirlpool, Sommerbar, Loungebereich oder einem Raum zum geselligen Beisammensein und Spaß mit Familie und Freunden schaffen. ZUSÄTZLICHE INFORMATIONEN – Das Gebäude wird nach den höchsten Baustandards gebaut und die Wohnung ist ausgestattet mit: * erdbebensicherer Konstruktion * dreischichtiger PVC-Tischlerei mit Rollläden und Moskitonetzen * elektrischer Fußbodenheizung in allen Zimmern * Klimaanlage in jedem Zimmer * 10 cm hochwertiger Fassadenisolierung (Styropor und Wolle) * Sicherheitstüren * einem Aufzug, der alle Stockwerke des Gebäudes verbindet * die Wohnung verfügt über zwei eigene Parkplätze, die im Wohnungspreis inbegriffen sind, während Abstellräume gegen Aufpreis erhältlich sind. ZUSÄTZLICH: * Geplante Fertigstellung des Baus und Einzug: 12/2025. Jahre * Eigentum in Ordnung, natürliche Person (1/1) Ideale Gelegenheit für ein luxuriöses Familienhaus, eine Ferienwohnung oder eine Investition mit hoher Rendite durch touristische Vermietung. Diese Wohnung ist nicht nur eine Immobilie – sie ist eine echte Lifestyle-Wahl für diejenigen, die Luxus, Komfort und einen spektakulären Meerblick genießen möchten.
Sehr geehrte Kunden, die Agenturprovision wird gemäß den Allgemeinen Geschäftsbedingungen berechnet: www.dux-nekretnine.hr/opci-uvjeti-poslovanja
ID CODE: 42359
In der ruhigen Siedlung Tara, nur 350 m vom Meer und zehn Gehminuten von den gepflegten Stränden entfernt, befindet sich ein moderner Neubau in Spitzenqualität mit insgesamt 13 Wohnungen. Im dritten Stock des Gebäudes befindet sich dieses einzigartige zweistöckige Penthouse, das sich über 175,04 m² Wohnfläche erstreckt und eine Kombination aus Luxus, Komfort und einer herrlichen Aussicht darstellt. WOHNUNGSBESCHREIBUNG – B3 Erste Etage: * geräumige Eingangshalle mit eigener Garderobe * großer offener Raum von sage und schreibe 42,15 m² mit Wohnzimmer, Küche und Esszimmer und von dort auch Zugang zu einer geräumigen, teilweise überdachten Terrasse, die sich über die gesamte Breite der gesamten Wohnung erstreckt. * drei geräumige Schlafzimmer. * dann zwei moderne und komfortable Badezimmer. Zweiter Stock: Eine Innentreppe führt auf die 131,79 m² große Dachterrasse, die einen Panoramablick und unverbaubaren Blick auf das Meer und die istrische Landschaft bietet. Dieser Raum bietet unbegrenzte Anpassungsmöglichkeiten – zukünftige Eigentümer können ihre eigene Oase mit Whirlpool, Sommerbar, Loungebereich oder einem Raum zum geselligen Beisammensein und Spaß mit Familie und Freunden schaffen. ZUSÄTZLICHE INFORMATIONEN – Das Gebäude wird nach den höchsten Baustandards gebaut und die Wohnung ist ausgestattet mit: * erdbebensicherer Konstruktion * dreischichtiger PVC-Tischlerei mit Rollläden und Moskitonetzen * elektrischer Fußbodenheizung in allen Zimmern * Klimaanlage in jedem Zimmer * 10 cm hochwertiger Fassadenisolierung (Styropor und Wolle) * Sicherheitstüren * einem Aufzug, der alle Stockwerke des Gebäudes verbindet * die Wohnung verfügt über zwei eigene Parkplätze, die im Wohnungspreis inbegriffen sind, während Abstellräume gegen Aufpreis erhältlich sind. ZUSÄTZLICH: * Geplante Fertigstellung des Baus und Einzug: 12/2025. Jahre * Eigentum in Ordnung, natürliche Person (1/1) Ideale Gelegenheit für ein luxuriöses Familienhaus, eine Ferienwohnung oder eine Investition mit hoher Rendite durch touristische Vermietung. Diese Wohnung ist nicht nur eine Immobilie – sie ist eine echte Lifestyle-Wahl für diejenigen, die Luxus, Komfort und einen spektakulären Meerblick genießen möchten.
Sehr geehrte Kunden, die Agenturprovision wird gemäß den Allgemeinen Geschäftsbedingungen berechnet: www.dux-nekretnine.hr/opci-uvjeti-poslovanja
ID CODE: 42359
Ausstattungsmerkmale
| Anzahl der Etagen im Haus | 3 |
| Inserat befindet sich im Stockwerk | 3 |
| Bad | 2 |
Karte wird geladen...
Objektstandort
52440 Tar-Vabriga
- Istrien
Kontaktanfrage senden
Über den Anbieter
DUX Nekretnine d.o.o.
Tizianova
51000 Rijeka
Kontakt
| Telefon | +385 91 480 8808 |
| Mobil | +385 91 480 8808 |
Ansprechpartner/in
Loren Kečan