ISTRIEN, TAR – 3-Zimmer-Wohnung mit Terrasse in einem hochwertigen Neubau, nur 350 m vom Meer entfernt
328.700 €
Kaufpreis
4
Zimmer
immobilien.de Nr.: 9279637
Objektnummer: 42362
Kaufpreis
| Kaufpreis | 328.700 € |
Wohnfläche, Grundstück & Bausubstanz
| Gesamtfläche | 92 m² |
| Zimmer | 4 |
| Baujahr | 2025 |
| Verfügbar ab | keine Angabe |
Beschreibung der Immobilie
ISTRIEN, TAR – Exklusive 3-Zimmer-Wohnung mit 3 Schlafzimmern und Wohnzimmer im 1. Stock eines hochwertigen Neubaus, nur 350 m vom Meer entfernt
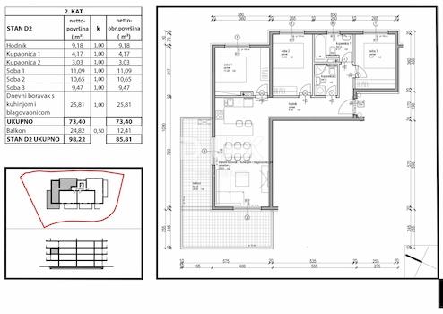
Im ruhigen Dorf Tara, nur 350 m vom Meer und 10 Gehminuten von den gepflegten Stränden entfernt, befindet sich ein moderner, hochwertiger Neubau mit insgesamt 13 Wohnungen. Diese einzigartige Wohnung befindet sich im zweiten Stock des Gebäudes, hat eine Wohnfläche von 85,81 m² und repräsentiert eine Kombination aus Luxus, Komfort und einer herrlichen Aussicht. WOHNUNGSBESCHREIBUNG Die Nettofläche der Wohnung D2 beträgt 85,81 m². Die Raumaufteilung ist auf maximale Geräumigkeit und natürliches Licht ausgelegt: * Eingangshalle mit ausgewiesenem Bereich für eine Garderobe * Offenes Wohnzimmer – ein modern gestalteter Raum, der Wohnzimmer, Küche und Esszimmer in einem vereint. * Großzügige Terrasse – die sich neben der Küche und dem Esszimmer erstreckt, ideal für geselliges Beisammensein und Entspannen mit Freunden und Familie. * Dann gibt es drei komfortable Schlafzimmer und zwei Badezimmer. TECHNISCHE MERKMALE DES GEBÄUDES - Das Gebäude wurde nach den höchsten Bau- und Energiestandards entworfen und gebaut: * Erdbebensichere Konstruktion * Dreischichtige PVC-Tischlerei * Geräuschlose Abwasserinstallationen * Elektrische Fußbodenheizung in allen Räumen der Wohnung * Klimaanlagen in jedem Zimmer * Hochwertige 10 cm Fassadenisolierung (Styropor und Wolle) * Aufzug im Gebäude * Sicherheitstüren in den Wohnungen * Hochwertiges Wasserversorgungssystem (deutsche TC-Rohre) ZUSÄTZLICH * Die Wohnung verfügt über zwei private Parkplätze, die im Wohnungspreis inbegriffen sind. * Lagerräume sind durch zusätzlichen Kauf erhältlich * Geplante Fertigstellung der Bauarbeiten und Einzug: 12/2025. WARUM DIESE WOHNUNG WÄHLEN? Diese Wohnung ist die perfekte Option für ein Familienleben, einen ruhigen Urlaub in Istrien, aber auch als sichere Investition angesichts der attraktiven Lage und der hochwertigen Bauweise. Für weitere Informationen oder um eine Besichtigung zu vereinbaren, wenden Sie sich bitte vertrauensvoll an uns.
Sehr geehrte Kunden, die Agenturprovision wird gemäß den Allgemeinen Geschäftsbedingungen berechnet: www.dux-nekretnine.hr/opci-uvjeti-poslovanja
ID CODE: 42362
Im ruhigen Dorf Tara, nur 350 m vom Meer und 10 Gehminuten von den gepflegten Stränden entfernt, befindet sich ein moderner, hochwertiger Neubau mit insgesamt 13 Wohnungen. Diese einzigartige Wohnung befindet sich im zweiten Stock des Gebäudes, hat eine Wohnfläche von 85,81 m² und repräsentiert eine Kombination aus Luxus, Komfort und einer herrlichen Aussicht. WOHNUNGSBESCHREIBUNG Die Nettofläche der Wohnung D2 beträgt 85,81 m². Die Raumaufteilung ist auf maximale Geräumigkeit und natürliches Licht ausgelegt: * Eingangshalle mit ausgewiesenem Bereich für eine Garderobe * Offenes Wohnzimmer – ein modern gestalteter Raum, der Wohnzimmer, Küche und Esszimmer in einem vereint. * Großzügige Terrasse – die sich neben der Küche und dem Esszimmer erstreckt, ideal für geselliges Beisammensein und Entspannen mit Freunden und Familie. * Dann gibt es drei komfortable Schlafzimmer und zwei Badezimmer. TECHNISCHE MERKMALE DES GEBÄUDES - Das Gebäude wurde nach den höchsten Bau- und Energiestandards entworfen und gebaut: * Erdbebensichere Konstruktion * Dreischichtige PVC-Tischlerei * Geräuschlose Abwasserinstallationen * Elektrische Fußbodenheizung in allen Räumen der Wohnung * Klimaanlagen in jedem Zimmer * Hochwertige 10 cm Fassadenisolierung (Styropor und Wolle) * Aufzug im Gebäude * Sicherheitstüren in den Wohnungen * Hochwertiges Wasserversorgungssystem (deutsche TC-Rohre) ZUSÄTZLICH * Die Wohnung verfügt über zwei private Parkplätze, die im Wohnungspreis inbegriffen sind. * Lagerräume sind durch zusätzlichen Kauf erhältlich * Geplante Fertigstellung der Bauarbeiten und Einzug: 12/2025. WARUM DIESE WOHNUNG WÄHLEN? Diese Wohnung ist die perfekte Option für ein Familienleben, einen ruhigen Urlaub in Istrien, aber auch als sichere Investition angesichts der attraktiven Lage und der hochwertigen Bauweise. Für weitere Informationen oder um eine Besichtigung zu vereinbaren, wenden Sie sich bitte vertrauensvoll an uns.
Sehr geehrte Kunden, die Agenturprovision wird gemäß den Allgemeinen Geschäftsbedingungen berechnet: www.dux-nekretnine.hr/opci-uvjeti-poslovanja
ID CODE: 42362
Ausstattungsmerkmale
| Anzahl der Etagen im Haus | 3 |
| Inserat befindet sich im Stockwerk | 2 |
| Bad | 2 |
Karte wird geladen...
Objektstandort
52440 Tar-Vabriga
- Istrien
Kontaktanfrage senden
Über den Anbieter
DUX Nekretnine d.o.o.
Tizianova
51000 Rijeka
Kontakt
| Telefon | +385 91 480 8808 |
| Mobil | +385 91 480 8808 |
Ansprechpartner/in
Loren Kečan