Geschäftsraum Virje, 19.800m2
700.000 €
Kaufpreis
20
Zimmer
immobilien.de Nr.: 9250738
Objektnummer: 117
Preise & Kosten
| Kaufpreis | 700.000 € |
| Nebenkosten | keine Angabe |
Größe & Zustand
| Gesamtfläche | 19.800 m² |
| Bürofläche | 19.800 m² |
| Zimmer | 20 |
| Baujahr | 1968 |
| Letzte Modernisierung | 2007 |
| Verfügbar ab | keine Angabe |
Objektbeschreibung
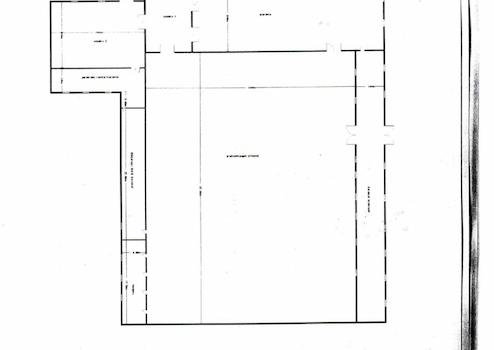
Eine Geschäfts- und Produktionshalle in Kroatien, Gespanschaft Koprivnica-Križevci, Gemeinde Virje, ist verkauft. Die Halle wurde auf einem m2 eingezäunten Grundstück errichtet, auf dem sich m2 Geschäfts- und Produktionshalle mit Nebenräumen und 500 m2 Verwaltungsgebäude mit Büro- und Sanitäranlagen befinden.
Zufahrt, Parkplatz und Geschäftshof sind gepflastert.
Die Halle befindet sich im Industriegebiet und eignet sich für Produktion und Lager. Die Gemeinde Virje befindet sich im Herzen von Podravina, zwischen dem Fluss Drau und den Hügeln von Bilogora. Das Grundstück befindet sich nördlich der Gemeinde, 16 km von der Grenze zu Ungarn entfernt. 40 km westlich befindet sich die Autobahn, so dass es eine ausgezeichnete Verbindung mit Slowenien gibt. Da es sich in der Geschäftszone befindet, eignet sich der Standort dieses Lagers für die Durchführung aller Tätigkeiten, von der Verarbeitung...
Das Anwesen verfügt über eine Baugenehmigung und eine ordentliche Eigentumsurkunde
Alle Versorgungseinrichtungen sind vorhanden (Wasser, Gas, Industriestrom).
Durch die unmittelbare Nähe zur Bahnlinie ist es möglich, Gleise zu machen
in seinem eigenen Geschäft.
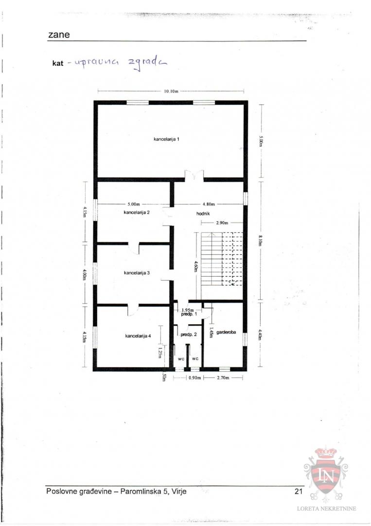
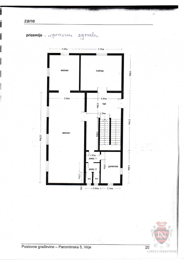
Das Verwaltungsgebäude besteht aus einem Untergeschoss, Erdgeschoss und 1. Obergeschoss. Im Erdgeschoss befinden sich 5 Büroräume, Küche und WC (Waschbecken und WC) sowie ein Flur. Im ersten Stock befinden sich drei Büroräume, ein komplettes Badezimmer und ein Flur. Es gibt auch einen größeren Raum, der früher als Klassenzimmer genutzt wurde und derzeit als Wohnzimmer genutzt wird, d.h. die gesamte Etage wurde zu einer Wohnung umgebaut.
Das Verwaltungsgebäude verfügt über eine Zentralheizung mit Gas und die Möglichkeit (es ist notwendig, einen Ofen zu installieren, es gibt bereits Installationen) von Holzheizungen, Pellets oder Hackschnitzeln.
Das gesamte Verwaltungsgebäude ist mit Kunststofftischlerei ausgestattet.
Es besteht auch die Möglichkeit, im Dachgeschoss eines Bürogebäudes zu wohnen.
Für alle Fragen wenden Sie sich bitte an
Telefon Ivan )
LORETA IMMOBILIEN
Loreta Büroservice: Tel:
Zagreb
www.loreta-nekretnine.com
ID CODE: 117
Zufahrt, Parkplatz und Geschäftshof sind gepflastert.
Die Halle befindet sich im Industriegebiet und eignet sich für Produktion und Lager. Die Gemeinde Virje befindet sich im Herzen von Podravina, zwischen dem Fluss Drau und den Hügeln von Bilogora. Das Grundstück befindet sich nördlich der Gemeinde, 16 km von der Grenze zu Ungarn entfernt. 40 km westlich befindet sich die Autobahn, so dass es eine ausgezeichnete Verbindung mit Slowenien gibt. Da es sich in der Geschäftszone befindet, eignet sich der Standort dieses Lagers für die Durchführung aller Tätigkeiten, von der Verarbeitung...
Das Anwesen verfügt über eine Baugenehmigung und eine ordentliche Eigentumsurkunde
Alle Versorgungseinrichtungen sind vorhanden (Wasser, Gas, Industriestrom).
Durch die unmittelbare Nähe zur Bahnlinie ist es möglich, Gleise zu machen
in seinem eigenen Geschäft.
Das Verwaltungsgebäude besteht aus einem Untergeschoss, Erdgeschoss und 1. Obergeschoss. Im Erdgeschoss befinden sich 5 Büroräume, Küche und WC (Waschbecken und WC) sowie ein Flur. Im ersten Stock befinden sich drei Büroräume, ein komplettes Badezimmer und ein Flur. Es gibt auch einen größeren Raum, der früher als Klassenzimmer genutzt wurde und derzeit als Wohnzimmer genutzt wird, d.h. die gesamte Etage wurde zu einer Wohnung umgebaut.
Das Verwaltungsgebäude verfügt über eine Zentralheizung mit Gas und die Möglichkeit (es ist notwendig, einen Ofen zu installieren, es gibt bereits Installationen) von Holzheizungen, Pellets oder Hackschnitzeln.
Das gesamte Verwaltungsgebäude ist mit Kunststofftischlerei ausgestattet.
Es besteht auch die Möglichkeit, im Dachgeschoss eines Bürogebäudes zu wohnen.
Für alle Fragen wenden Sie sich bitte an
Telefon Ivan )
LORETA IMMOBILIEN
Loreta Büroservice: Tel:
Zagreb
www.loreta-nekretnine.com
ID CODE: 117
Ausstattung
| Anzahl der Etagen im Haus | 1 |
| Bad | 1 |
