RIJEKA, KOSTRENA – exklusive zweistöckige Wohnung 163,89 m2 Neubau mit wunderschönem Meerblick und Swimmingpool + Garten 176,65 m2 – S1-D
688.500 €
Kaufpreis
4
Zimmer
immobilien.de Nr.: 9248754
Objektnummer: 41821
Kaufpreis
| Kaufpreis | 688.500 € |
Wohnfläche, Grundstück & Bausubstanz
| Gesamtfläche | 163 m² |
| Zimmer | 4 |
| Verfügbar ab | keine Angabe |
Beschreibung der Immobilie
RIJEKA, KOSTRENA – exklusive zweistöckige Wohnung 163,89 m2, Neubau mit wunderschönem Blick auf das Meer und Swimmingpool + Garten 176,65 m2 – S1-D
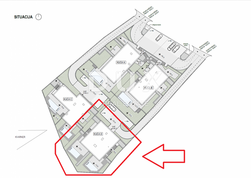
Wir bieten Ihnen eine Immobilie, die Ihnen modernes Design und Eleganz, Komfort und erstklassige Ausstattung bietet und sich in einer schönen, ruhigen Lage in der Nähe von öffentlichen Verkehrsmitteln, Schulen, Kindergärten, Einkaufszentren und zehn Autominuten von Rijeka befindet. Der Komplex aus 4 Wohnhäusern mit insgesamt 8 Wohnungen liegt nördlich der Adria-Autobahn im Gebiet „Zelena Kostrena“ von wo aus sich ein wunderschöner Ausblick auf die gesamte Kvarner Bucht bietet. In unmittelbarer Nähe gibt es 10 Kilometer gepflegte Wander-, Rad- und Fitnesswege, die durch die höchsten Teile von Kostrena vom Gipfel Solin bis zum Gipfel Sopalj führen. Die Zufahrt zu den Häusern erfolgt über die obere Straße, wobei eine Verbesserung und Erweiterung der bestehenden Straße geplant ist. Zu jedem Haus gehören vier Außenstellplätze, das heißt zwei Stellplätze pro Wohneinheit. Jedes Haus besteht aus zwei Wohnungen. Dabei liegen die Wohnungen der oberen beiden Grundstücke übereinander, während die Wohnungen der unteren beiden Grundstücke nebeneinander liegen. Zu jeder Wohnung gehört ein Gartenanteil. HAUS D Wohnung S1 - D: WOHNFLÄCHEN: - Eingang 9,45 - Flur 5,81 - Zimmer 10,01 - Zimmer 9,95 - Zimmer 14,30 - Badezimmer 5,17 - Badezimmer 4,08 - Waschküche / Abstellraum 3,98 - Treppenhaus 8,17 - Toilette 2,82 - Küche 9,22 - Schrank 3,18 - Wohnzimmer / Esszimmer 27,34 - Taverne 21,26 - Toilette 2,65 - Abstellraum 6,56 - Terrasse 19,94 GESAMTWOHNFLÄCHEN: 163,89 m² ZUGEHÖRIGE FLÄCHEN: - Abstellraum 4,1 8,06 - Stellplatz 1 12,50 - Stellplatz 2 12,50 - Grünfläche 6,85 - Grünfläche 18,23 - Außenterrasse 13,88 - Grünflächen 2,64 - Grünflächen 49,24 - Außenterrasse 34,75 - Swimmingpool 18,00 ZUGEWIESENE PLÄTZE GESAMT: 176,65 m² WOHNUNG S1-D GESAMT: 340,54 m² Diese luxuriöse Wohnung ist auf maximalen Komfort ausgelegt. AUSSTATTUNG: Das Haus, in dem sich die Wohnung befindet, ist gut gebaut und luxuriös ausgestattet, alle eingebauten Materialien, Boden- und Wandbeläge entsprechen den höchsten Standards. - 10 cm dicke Fassadendämmung - Fußbodenheizung - Wärmepumpen - hochwertige Aluminium-Tischlerei. Zur Wohnung gehört ein eigener Garten und 2 PKW-Stellplätze. PREIS: Der angegebene Preis bezieht sich auf eine komplett fertiggestellte schlüsselfertige Anlage, ohne Möblierung. Der Preis beinhaltet die gesetzliche Mehrwertsteuer, der Käufer ist von der Zahlung der Grundsteuer befreit. Bei einem Kauf von einem in Kroatien registrierten Unternehmen ist nach dem Verkauf eine volle Mehrwertsteuerrückerstattung möglich. Sauberes und ordentliches Anwesen. Sicherlich eine wunderschöne Immobilie für luxuriöses Familienleben, aber auch als Investition in Form von Elitetourismus geeignet. EINZIGARTIGES ANWESEN, DAS IHRE AUFMERKSAMKEIT UNBEDINGT WERT IST UND IN EINER TOLLEN LAGE LIEGT!!! KOSTRENA Kostrena ist eine alte, beliebte Küstenstadt, die erstmals zu Beginn des 15. Jahrhunderts erwähnt wurde. Im Jahr 1874 erlangte die Stadt erstmals ihre kommunale Unabhängigkeit, die sie jedoch nur für sehr kurze Zeit, nämlich nur zwei Jahre, behielt. Es ist in zwei Teile gegliedert, St. Lucia und St. Barbara, nach den Namen zweier Kirchen, die es in dieser Gegend gibt. Kostrena liegt in unmittelbarer Nähe der Stadt Rijeka, eingerahmt von der Bucht Martinšćica und der Bucht von Bakar. Die Halbinsel Kostrena ist etwa 10 Kilometer lang und fällt sanft zur Küste hin ab. Auf seiner gesamten Länge gibt es wunderschöne Strände, die im Sommer von Tausenden von Badegästen besucht werden. Die bekanntesten und am meisten besuchten sind jene in der Bucht von Žurkovo, gefolgt von Smokvinovo, Svežanj, Spužvina, Podražica, Nova voda und Perilo. Kostrena besteht aus etwa zwanzig Siedlungen, von denen viele nach Familien benannt wurden. Die bevölkerungsreichsten Orte sind heute Vrh Martinšćice, Glavani und Sv. Lucija, Rožmanići, Doričići und Paveki. Ein charakteristisches Karstgebiet mit mediterraner Vegetation und der berühmten Kostrena-Grotte sowie ein mildes Klima, das manchmal starken Bora-Böen weicht, sind die Merkmale dieser Region.
Sehr geehrte Kunden, die Agenturprovision wird gemäß den Allgemeinen Geschäftsbedingungen berechnet: www.dux-nekretnine.hr/opci-uvjeti-poslovanja
ID CODE: 41821
Wir bieten Ihnen eine Immobilie, die Ihnen modernes Design und Eleganz, Komfort und erstklassige Ausstattung bietet und sich in einer schönen, ruhigen Lage in der Nähe von öffentlichen Verkehrsmitteln, Schulen, Kindergärten, Einkaufszentren und zehn Autominuten von Rijeka befindet. Der Komplex aus 4 Wohnhäusern mit insgesamt 8 Wohnungen liegt nördlich der Adria-Autobahn im Gebiet „Zelena Kostrena“ von wo aus sich ein wunderschöner Ausblick auf die gesamte Kvarner Bucht bietet. In unmittelbarer Nähe gibt es 10 Kilometer gepflegte Wander-, Rad- und Fitnesswege, die durch die höchsten Teile von Kostrena vom Gipfel Solin bis zum Gipfel Sopalj führen. Die Zufahrt zu den Häusern erfolgt über die obere Straße, wobei eine Verbesserung und Erweiterung der bestehenden Straße geplant ist. Zu jedem Haus gehören vier Außenstellplätze, das heißt zwei Stellplätze pro Wohneinheit. Jedes Haus besteht aus zwei Wohnungen. Dabei liegen die Wohnungen der oberen beiden Grundstücke übereinander, während die Wohnungen der unteren beiden Grundstücke nebeneinander liegen. Zu jeder Wohnung gehört ein Gartenanteil. HAUS D Wohnung S1 - D: WOHNFLÄCHEN: - Eingang 9,45 - Flur 5,81 - Zimmer 10,01 - Zimmer 9,95 - Zimmer 14,30 - Badezimmer 5,17 - Badezimmer 4,08 - Waschküche / Abstellraum 3,98 - Treppenhaus 8,17 - Toilette 2,82 - Küche 9,22 - Schrank 3,18 - Wohnzimmer / Esszimmer 27,34 - Taverne 21,26 - Toilette 2,65 - Abstellraum 6,56 - Terrasse 19,94 GESAMTWOHNFLÄCHEN: 163,89 m² ZUGEHÖRIGE FLÄCHEN: - Abstellraum 4,1 8,06 - Stellplatz 1 12,50 - Stellplatz 2 12,50 - Grünfläche 6,85 - Grünfläche 18,23 - Außenterrasse 13,88 - Grünflächen 2,64 - Grünflächen 49,24 - Außenterrasse 34,75 - Swimmingpool 18,00 ZUGEWIESENE PLÄTZE GESAMT: 176,65 m² WOHNUNG S1-D GESAMT: 340,54 m² Diese luxuriöse Wohnung ist auf maximalen Komfort ausgelegt. AUSSTATTUNG: Das Haus, in dem sich die Wohnung befindet, ist gut gebaut und luxuriös ausgestattet, alle eingebauten Materialien, Boden- und Wandbeläge entsprechen den höchsten Standards. - 10 cm dicke Fassadendämmung - Fußbodenheizung - Wärmepumpen - hochwertige Aluminium-Tischlerei. Zur Wohnung gehört ein eigener Garten und 2 PKW-Stellplätze. PREIS: Der angegebene Preis bezieht sich auf eine komplett fertiggestellte schlüsselfertige Anlage, ohne Möblierung. Der Preis beinhaltet die gesetzliche Mehrwertsteuer, der Käufer ist von der Zahlung der Grundsteuer befreit. Bei einem Kauf von einem in Kroatien registrierten Unternehmen ist nach dem Verkauf eine volle Mehrwertsteuerrückerstattung möglich. Sauberes und ordentliches Anwesen. Sicherlich eine wunderschöne Immobilie für luxuriöses Familienleben, aber auch als Investition in Form von Elitetourismus geeignet. EINZIGARTIGES ANWESEN, DAS IHRE AUFMERKSAMKEIT UNBEDINGT WERT IST UND IN EINER TOLLEN LAGE LIEGT!!! KOSTRENA Kostrena ist eine alte, beliebte Küstenstadt, die erstmals zu Beginn des 15. Jahrhunderts erwähnt wurde. Im Jahr 1874 erlangte die Stadt erstmals ihre kommunale Unabhängigkeit, die sie jedoch nur für sehr kurze Zeit, nämlich nur zwei Jahre, behielt. Es ist in zwei Teile gegliedert, St. Lucia und St. Barbara, nach den Namen zweier Kirchen, die es in dieser Gegend gibt. Kostrena liegt in unmittelbarer Nähe der Stadt Rijeka, eingerahmt von der Bucht Martinšćica und der Bucht von Bakar. Die Halbinsel Kostrena ist etwa 10 Kilometer lang und fällt sanft zur Küste hin ab. Auf seiner gesamten Länge gibt es wunderschöne Strände, die im Sommer von Tausenden von Badegästen besucht werden. Die bekanntesten und am meisten besuchten sind jene in der Bucht von Žurkovo, gefolgt von Smokvinovo, Svežanj, Spužvina, Podražica, Nova voda und Perilo. Kostrena besteht aus etwa zwanzig Siedlungen, von denen viele nach Familien benannt wurden. Die bevölkerungsreichsten Orte sind heute Vrh Martinšćice, Glavani und Sv. Lucija, Rožmanići, Doričići und Paveki. Ein charakteristisches Karstgebiet mit mediterraner Vegetation und der berühmten Kostrena-Grotte sowie ein mildes Klima, das manchmal starken Bora-Böen weicht, sind die Merkmale dieser Region.
Sehr geehrte Kunden, die Agenturprovision wird gemäß den Allgemeinen Geschäftsbedingungen berechnet: www.dux-nekretnine.hr/opci-uvjeti-poslovanja
ID CODE: 41821
Ausstattungsmerkmale
| Anzahl der Etagen im Haus | 1 |
| Bad | 2 |
Karte wird geladen...
Objektstandort
51221 Kostrena
- Kvarner Region [Primorsko-Goranska]
Kontaktanfrage senden
Über den Anbieter
DUX Nekretnine d.o.o.
Tizianova
51000 Rijeka
Kontakt
| Telefon | +385 91 480 8808 |
| Mobil | +385 91 480 8808 |
Ansprechpartner/in
Patrik Hrštić